Type
Bien immobilierTarif
250 000 €Chambres
5Salles de bain
0Vente Maison traditionnelle 6 pièces
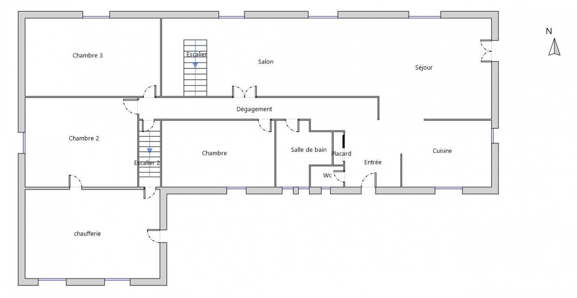
Iad France - Hervé Vacher vous propose : Maison de charme – 159 m² – 4 chambres + bureau – Terrain clos – Buellas Située au cOEur du village de Buellas, à 800 m de l’école, cette maison ancienne ayant profité de nombreux travaux développe 159 m² habitables sur un terrain de 844 m², entièrement clos de haies, avec dépendances. Le rez-de-chaussée offre une entrée, une cuisine ouverte aménagée et équipée, un salon-séjour chaleureux avec poêle à bois, un dégagement desservant deux chambres, un bureau traversant, une salle d’eau avec douche italienne et sèche-serviette (rénovée en 2018), un WC indépendant et une chaufferie avec accès extérieur. À l’étage, deux chambres mansardées sous rampants, une seconde salle d’eau avec WC et un accès à des combles aménageables. À l’extérieur, vous trouverez une terrasse couverte orientée ouest, un abri bois et un abri de jardin. Maison classée en DPE C (mise à jour janvier 2026), sans anomalie électrique ni amiante, offrant un bon niveau de performance énergétique grâce à sa pompe à chaleur hybride (PAC + fuel), poêle à bois et radiateurs en fonte. L’eau chaude est produite par la PAC et / ou un cumulus récent au choix. Électricité conforme. La toiture a été entièrement refaite en 2019-2020 (film sous toiture, zinguerie, charpente). Huisseries bois partiellement remplacées en 2007,2013 et 2021. Bien rare, alliant cachet de l’ancien et confort technique, à seulement 10 minutes de Bourg-en-Bresse. Honoraires d'agence à la charge du vendeur. Information d'affichage énergétique sur ce bien : classe ENERGIE C indice 172 et classe CLIMAT C indice 14. Les informations sur les risques auxquels ce bien est exposé, y compris l'obligation légale de débroussaillement, sont disponibles sur le site Géorisques : http://www.georisques.gouv.fr. La présente annonce immobilière a été rédigée sous la responsabilité éditoriale de M Hervé Vacher mandataire indépendant en immobilier (sans détention de fonds), agent commercial de la SAS I@D France immatriculé au RSAC de BOURG-EN BRESSE sous le numéro 920997947, titulaire de la carte de démarchage immobilier pour le compte de la société I@D France SAS.
Ce mois
Cette annonce est récente
À proximité
Recherche des commodités à proximité...
Détails de l'annonce
Localisation
Ville
Buellas
Pays
FR
Diagnostics / Énergie
Diagnostic DPE
172
Diagnostic GES
14
Surfaces / Pièces / Composition
Nombre d’étages
2
Chauffage et diagnostics
Diagnostic de performance énergétique (DPE)
a
b
c
d
e
f
g
Indice d'émission de gaz à effet de serre (GES)
a
b
c
d
e
f
g
