Type
Bien immobilierTarif
337 000 €Chambres
3Salles de bain
0Vente Maison traditionnelle 5 pièces
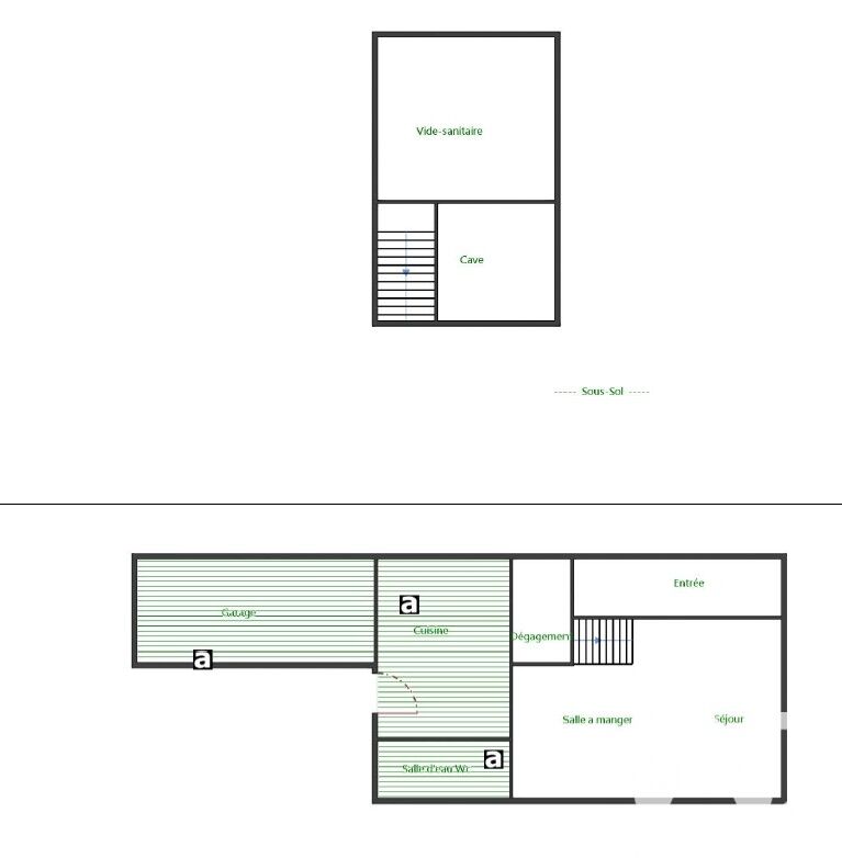
Iad France - Bruno Papin vous propose : ILE-SAINT-DENIS-CENTRE VILLE- GRAND PARIS Proche des bateaux appartements. - MAISON de 89 m² comprenant : - Au RDC : une entrée, un séjour / salle à manger, une cuisine, une salle d'eau et wc. - Au premier étage par l'escalier : un couloir, deux chambres. - Au deuxième étage : un couloir, une grande chambre familiale sous les toits. - Le bien immobilier comprend un garage fermé, et une terrasse ensoleillée, ainsi qu'une cave et un vide sanitaire. Taxe foncière : 978e / chauffage au gaz de ville (faible consommation) Proche des transports en communs à 5 mm du Tramway T1, à 10 minutes à pied de la gare de St-Denis RER H et D, T8, par le bus 237 10mm à St-Ouen Ligne 13 et 14. Des axes routiers N186, N14, A86, A15, A1. Magasins de proximité et des grandes surfaces, des écoles et des lycées ainsi que des crèches. Zone bleue gratuite - pas de vis-à-vis- Parc des Chanteraines, parcours sportif et détente, parc départementale de l'île Saint Denis, et proche du square à 10mm. Conseiller 7 / 7 jours de 9h à 21h. LIBRE DE SUITE ET DISPONIBLE 7 / 7JRS - IDEAL FAMILLIALE - DIMANCHE SUR RENDEZ-VOUS Honoraires d'agence à la charge du vendeur. Information d'affichage énergétique sur ce bien : classe ENERGIE F indice 357 et classe CLIMAT E indice 59. Les informations sur les risques auxquels ce bien est exposé, y compris l'obligation légale de débroussaillement, sont disponibles sur le site Géorisques : http://www.georisques.gouv.fr. La présente annonce immobilière a été rédigée sous la responsabilité éditoriale de M Bruno Papin mandataire indépendant en immobilier (sans détention de fonds), agent commercial de la SAS I@D France immatriculé au RSAC de BOBIGNY sous le numéro 827638818, titulaire de la carte de démarchage immobilier pour le compte de la société I@D France SAS.
À proximité
Recherche des commodités à proximité...
Détails de l'annonce
Localisation
Ville
L'Île-Saint-Denis
Pays
FR
Diagnostics / Énergie
Diagnostic DPE
357
Diagnostic GES
59
Chauffage et diagnostics
Diagnostic de performance énergétique (DPE)
a
b
c
d
e
f
g
Indice d'émission de gaz à effet de serre (GES)
a
b
c
d
e
f
g
