Trouver...

Language: FR

Devise: EUR

Vente Appartement 5 pièces

Publié le 19 July 2025
Type
Bien immobilier
Tarif
379 000 €
Chambres
3
Salles de bain
0

Vente Appartement 5 pièces

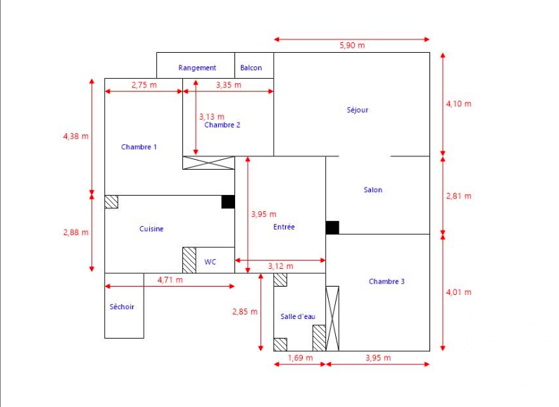
Iad France - Marie-Claude HARDY vous propose : NANTES-LAMORICIÈRE. Situé au 2ème étage avec ascenseur dans une résidence de bon standing, cet appartement séduit par ses beaux volumes et sa luminosité apportée par sa triple exposition Il se compose d'une entrée desservant un salon, un séjour, une cuisine avec loggia ainsi que trois chambres dont une avec balcon. Une salle d'eau et des toilettes séparées complètent le tout. Des travaux de rafraichissement permettront de redonner tout son éclat à ce bel appartement et de le personnaliser selon votre mode de vie. Vous bénéficierez également d'une place de stationnement sécurisée et d'une cave. Le tout dans un secteur recherché, à proximité immédiate des commerces, écoles et transports. Contactez-moi pour plus de renseignements ou organiser une visite. La presente annonce immobiliere vise 3 lots situés dans une copropriété de 250 lots au total et ne faisant l'objet d'aucune procédure en cours citée à l'article L. 721-1 du code de la construction et de l'habitation. Montant moyen mensuel de charges déclaré par le vendeur : 302€ par mois (soit 3624 € annuel). Honoraires d'agence à la charge de l'acquéreur. Prix honoraires inclus : 379000 euros. Prix hors honoraires : 365000 euros. Honoraires TTC à la charge de l'acquéreur (3,84% du prix du bien hors honoraires) : 14000 euros. Information d'affichage énergétique sur ce bien : classe ENERGIE D indice 171 et classe CLIMAT D indice 37. Les informations sur les risques auxquels ce bien est exposé, y compris l'obligation légale de débroussaillement, sont disponibles sur le site Géorisques : http://www.georisques.gouv.fr. La présente annonce immobilière a été rédigée sous la responsabilité éditoriale de Mme Marie-Claude HARDY mandataire indépendant en immobilier (sans détention de fonds), agent commercial de la SAS I@D France immatriculé au RSAC de nantes sous le numéro 832 940 563, titulaire de la carte de démarchage immobilier pour le compte de la société I@D France SAS.

À proximité

Recherche des commodités à proximité...

Détails de l'annonce

Localisation

Ville
Nantes
Pays
FR

Diagnostics / Énergie

Diagnostic DPE
171
Diagnostic GES
37

Surfaces / Pièces / Composition

Nombre d’étages
6
Étage
2

Chauffage et diagnostics

Diagnostic de performance énergétique (DPE)
a
b
c
d
e
f
g
Indice d'émission de gaz à effet de serre (GES)
a
b
c
d
e
f
g
Rappelez-moi