Type
Bien immobilierTarif
157 000 €Chambres
5Salles de bain
0Vente Maison de village 7 pièces
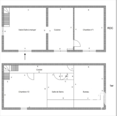
Iad France - Virginie Muller vous propose : ENSEMBLE de DEUX MAISONS, libres, dans le cadre buccolique de la campagne de Néons, non loin de la Creuse. Maison 1 habitable de suite (quelques menus travaux) + maison 2 avec grange à rénover pour projet perso ou locatif. Maison 1 : 89 m² habitables distibués en rez-de-chaussée : entrée / cuisine, salon / salle à manger avec poêle à bois et accès terrasse, chambre avec placard (pouvant être ouverture sur maison 2) donnant vue sur jardin.(510 m² ici) A l'étage en sous pente : couloir, 2 chambres, salle de bains, WC indépendant. Beau jardin, grange appentis, cellier, grenier, abri de jardin viennent compléter ce bien. Technique : Quelques petits travaux de rénovation intérieure nécessaires pour s'approprier les lieux. Chauffage électrique + insert bois. Fosse septique Maison 2 accolée (possède son entrée indépendante) d'environ 68 m² habitables, avec grange de 90 m² et jardinet. En rez-de-chaussée actuellement : entrée / cuisine, chambre avec salle d'eau attenante et WC, salon. À l'étage : palier, grande chambre en sous pente, WC attenant. Sur cette maison : rénovation totale nécessaire : absence de système de chauffage - électricité à revoir - toiture bon état général pour la maison, à revoir pour la grange - Menuiseries partiellement en double vitrage bois / PVC. Fosse septique Trouvez ici VOTRE maison ainsi qu'un projet locatif possible ou agrandissement de la surface habitable jusqu'à 157 m² N'hésitez-pas à me contacter pour de plus amples renseignements. À bientôt Honoraires d'agence à la charge du vendeur. Information d'affichage énergétique sur ce bien : classe ENERGIE D indice 240 et classe CLIMAT B indice 7. Les informations sur les risques auxquels ce bien est exposé, y compris l'obligation légale de débroussaillement, sont disponibles sur le site Géorisques : http://www.georisques.gouv.fr. La présente annonce immobilière a été rédigée sous la responsabilité éditoriale de Mme Virginie Muller mandataire indépendant en immobilier (sans détention de fonds), agent commercial de la SAS I@D France immatriculé au RSAC de CHATEAUROUX sous le numéro 948424593, titulaire de la carte de démarchage immobilier pour le compte de la société I@D France SAS.
À proximité
Recherche des commodités à proximité...
Détails de l'annonce
Localisation
Ville
Néons-sur-Creuse
Pays
FR
Diagnostics / Énergie
Diagnostic DPE
240
Diagnostic GES
7
Surfaces / Pièces / Composition
Nombre d’étages
2
Chauffage et diagnostics
Diagnostic de performance énergétique (DPE)
a
b
c
d
e
f
g
Indice d'émission de gaz à effet de serre (GES)
a
b
c
d
e
f
g
