Trouver...

Language: FR

Devise: EUR

T3 avec balcon et garage 100m métro Saxe

Publié le 2 March 2026
Type
Bien immobilier
Tarif
493 000 €
Chambres
2
Salles de bain
1

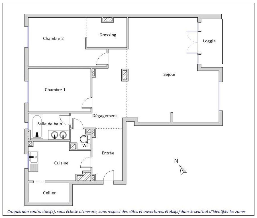
T3 avec balcon et garage 100m métro Saxe

CALME - LUMINEUX - BALCON - GARAGE - 100m METRO Exclusivité - A 100m du métro Saxe-Gambetta dans une rue calme, au 4ème étage avec ascenseur, cet appartement traversant Est/Ouest de 95m2 en très bon état dispose d'un balcon et d'un garage fermé. Il est composé d'une entrée avec placard, d'un salon/salle à manger en parquet (33m2), 2 chambres en parquet dont une avec dressing (possibilité de créer une 3ème chambre), cuisine équipée séparée avec un cellier attenant, salle de bains et wc séparé. En annexe se trouvent un garage fermé et une cave. Menuiserie double vitrage récente Porte entrée sécurisée 7 points Façade refaite en 2024 Chauffage collectif mais consommation individualisée via répartiteurs Copropriété bénéficiant des services appréciés d'un gardien Charges mensuelles : 212 € (eau froide, espaces verts, ascenseur, chauffage, gardien, syndic) Taxe foncière : 1382 € Commerces à 50m, métro B et D à 100m Gare Part-Dieu 10 min porte à porte en métro Les informations sur les risques auxquels ce bien est exposé sont disponibles sur le site Géorisques : www.georisques.gouv.fr. Honoraires à la charge du vendeur. Bien soumis au statut juridique de la Copropriété. Nb de lots : 299. Charges annuelles de copropriété (Montant moyen annuel quote-part du budget prévisionnel vendeur) : 2 552 €. Pas de procédure en cours. Loïc PAPILLON - Tél : 06 83 86 17 07 - Agent commercial en immobilier (EI). Immatriculé au registre spécial des agents commerciaux. Ville du greffe : LYON. RSAC N° 809 056 138 - Réseau Casarèse. Mandat N° 5896. D'autres biens sur www casarese com ! Surface CARREZ : 95 m²
Ce mois Cette annonce est récente

À proximité

Recherche des commodités à proximité...

Détails de l'annonce

Localisation

Ville
LYON 7EME METRO SAXE
Pays
France

Surfaces / Pièces / Composition

Surface du terrain

Chauffage / Énergie

Nature de chauffage
Non renseigné

Chauffage et diagnostics

Diagnostic de performance énergétique (DPE)
a
b
c
d
e
f
g
Indice d'émission de gaz à effet de serre (GES)
a
b
c
d
e
f
g
Documents
Rappelez-moi