Type
Bien immobilierTarif
629 000 €Chambres
5Salles de bain
0Vente Maison/villa 7 pièces
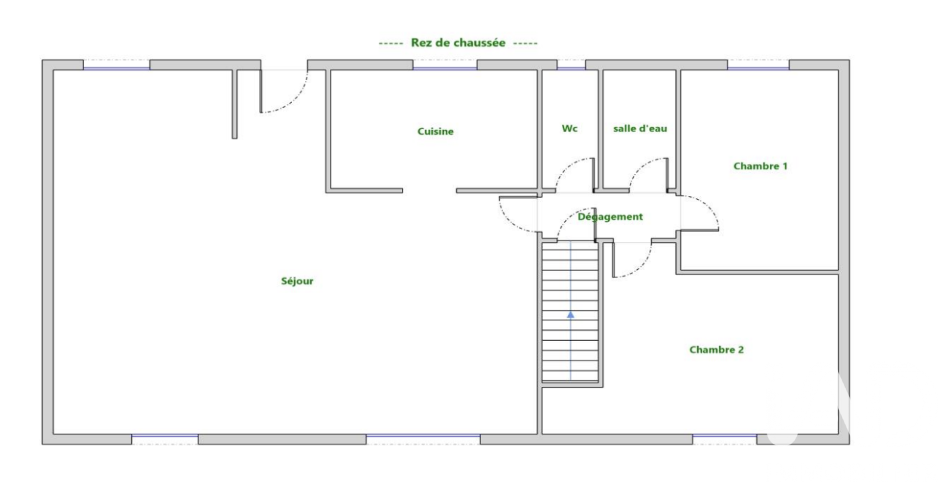
Iad France - Fabienne Le Chartier De Sédouy vous propose : Idéalement située à moins de 10 minutes à pieds de la gare de la Celle Saint Cloud, maison familiale de 1950 érigée sur terrain de 637 m² environ. Proposant une surface habitable de 139 m² sur deux niveaux, le bien se compose d'un rez-de-chaussée surélevé offrant un vaste double séjour traversant avec cheminée et balcon, une cuisine équipée avec verrière, une salle d'eau, un WC et deux chambres. Au niveau inférieur, 2 à 3 chambres, une buanderie, une salle de bains avec WC et un garage. Extension de 80 m² possible. Bien immédiatement disponible à la vente. Honoraires d'agence à la charge du vendeur. Information d'affichage énergétique sur ce bien : classe ENERGIE E indice 287 et classe CLIMAT E indice 54. Les informations sur les risques auxquels ce bien est exposé, y compris l'obligation légale de débroussaillement, sont disponibles sur le site Géorisques : http://www.georisques.gouv.fr..
À proximité
Recherche des commodités à proximité...
Détails de l'annonce
Localisation
Ville
La Celle-Saint-Cloud
Pays
FR
Diagnostics / Énergie
Diagnostic DPE
287
Diagnostic GES
54
Surfaces / Pièces / Composition
Nombre d’étages
2
Chauffage et diagnostics
Diagnostic de performance énergétique (DPE)
a
b
c
d
e
f
g
Indice d'émission de gaz à effet de serre (GES)
a
b
c
d
e
f
g
