Type
Bien immobilierTarif
189 000 €Chambres
4Salles de bain
0Vente Maison/villa 6 pièces
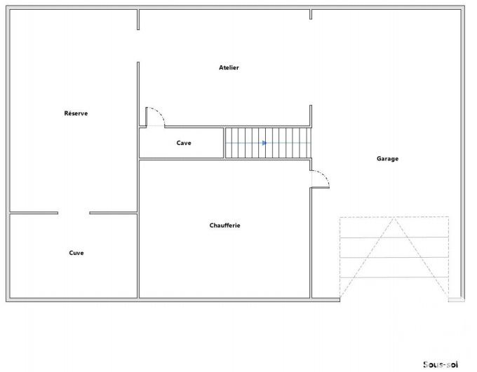
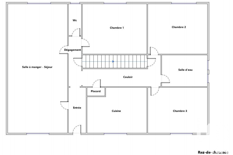
Iad France - Sylvie Clement vous propose : Dans un environnement calme et verdoyant, cette maison individuelle de plain-pied, avec sous-sol complet comprenant un garage, offre un cadre de vie idéal pour une famille. L’entrée mène à un séjour traversant lumineux, ainsi qu’à une cuisine indépendante à moderniser. Le rez-de-chaussée dispose de trois chambres, d’une salle d’eau et de toilettes séparées. À l’étage, une quatrième chambre est déjà aménagée, avec un potentiel d’aménagement complémentaire. La maison est équipée d’une chaudière fioul Atlantic neuve, de volets en aluminium, et est raccordée au tout-à-l’égout sur une parcelle de 610 m². Des travaux de rafraîchissement sont à prévoir pour révéler tout le potentiel de ce bien. À proximité immédiate : centre commercial, écoles, professionnels de santé, commerces de proximité et transports. Une maison bien située, à personnaliser selon vos envies. Honoraires d'agence à la charge du vendeur. Information d'affichage énergétique sur ce bien : classe ENERGIE F indice 286 et classe CLIMAT F indice 76. Les informations sur les risques auxquels ce bien est exposé, y compris l'obligation légale de débroussaillement, sont disponibles sur le site Géorisques : http://www.georisques.gouv.fr. La présente annonce immobilière a été rédigée sous la responsabilité éditoriale de Mme Sylvie Clement mandataire indépendant en immobilier (sans détention de fonds), agent commercial de la SAS I@D France immatriculé au RSAC de CHÂLONS-EN-CHAMPAGNE sous le numéro 894026251, titulaire de la carte de démarchage immobilier pour le compte de la société I@D France SAS.
À proximité
Recherche des commodités à proximité...
Détails de l'annonce
Localisation
Ville
Fagnières
Pays
FR
Diagnostics / Énergie
Diagnostic DPE
286
Diagnostic GES
76
Chauffage et diagnostics
Diagnostic de performance énergétique (DPE)
a
b
c
d
e
f
g
Indice d'émission de gaz à effet de serre (GES)
a
b
c
d
e
f
g
