Type
Bien immobilierTarif
239 000 €Chambres
3Salles de bain
0Maison
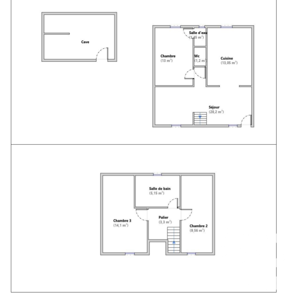
Fiche Id-SUP175173 : Située dans un charmant village à seulement 10 km de Carcassonne dans un environnement calme découvrez cette agréable villa d'environ 105 m2 de plain-pied implantée sur une parcelle plate, arborée et piscinable de 1000 m2.Elle se compose d'un vaste séjour lumineux avec cheminée d'une cuisine ouverte équipée et aménagée, ainsi que d'un grand garage de 24 m2 avec mezzanine. Le coin nuit dispose de 3 chambres et d'une salle d'eau . Cuisine d'éte avec barbecue.Equipée d'un chauffage central au gaz de ville ainsi que de volets roulants solaires et de double vitrage. A visiter sans tarder - Mentions légales : Proposé à la vente à 239000 Euros (honoraires à la charge du vendeur) - Classe Energie C : 122 kWh.m2.an - (DPE ancienne version) - Montant estimé des dépenses annuelles d'énergie pour un usage standard compris entre 1230 et 1710 Euros - Affaire suivie par Mr Mohamed MAMOU (Agent commercial independant) - Reseau Immo-Diffusion Agde - Pour plus d'informations, contactez notre secrétariat au 09 74 53 13 81 (Appel gratuit ou prix d'une communication locale)
À proximité
Recherche des commodités à proximité...
Détails de l'annonce
Localisation
Ville
CAUX ET SAUZENS
Pays
FRANCE
Diagnostics / Énergie
Diagnostic DPE
D
Diagnostic GES
D
Finances / Mandat / Références
Charge des honoraires
239000 €
Numéro de mandat
001481
Chauffage et diagnostics
Diagnostic de performance énergétique (DPE)
a
b
c
d
e
f
g
Indice d'émission de gaz à effet de serre (GES)
a
b
c
d
e
f
g
