Type
Bien immobilierTarif
219 000 €Chambres
1Salles de bain
0Vente Appartement 2 pièces
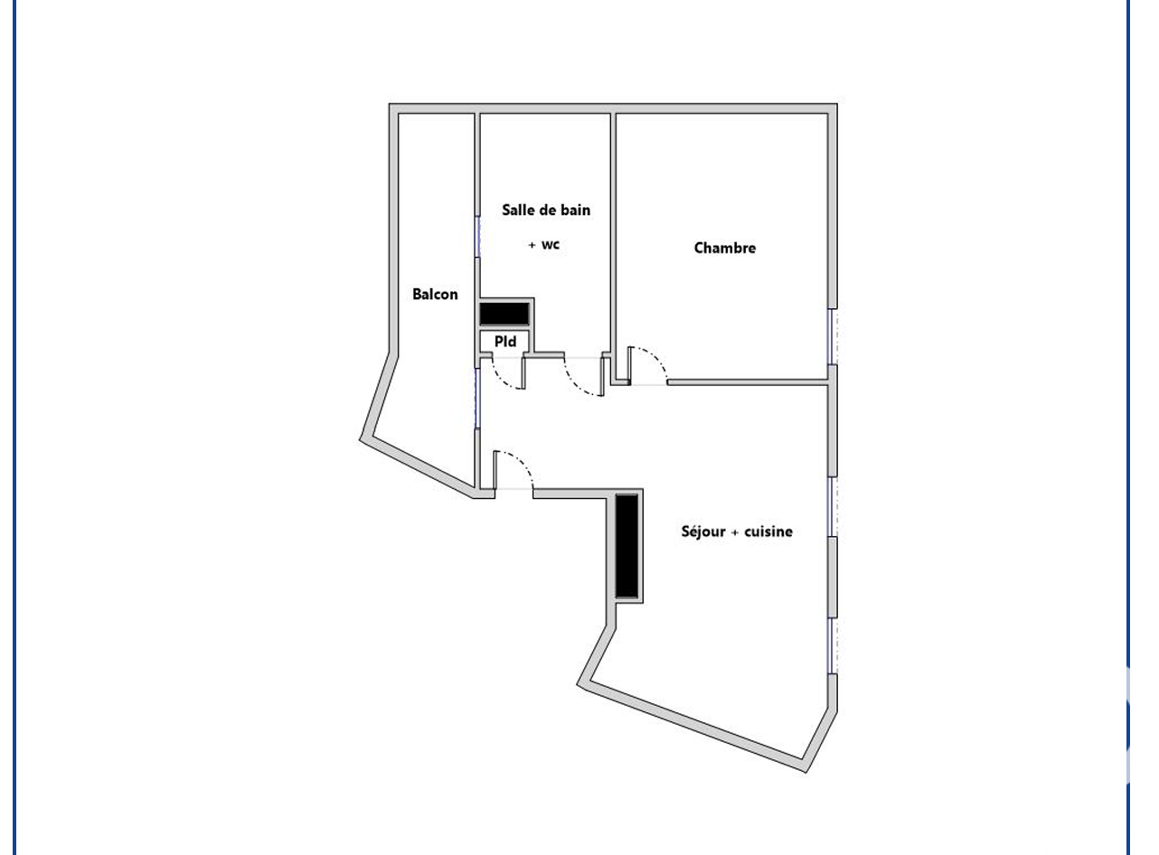
Iad France - Sandrine Bihoreau vous propose : * Appartement Moderne avec Balcon dans Résidence Récente à Bois-d'Arcy * Bienvenue dans ce charmant appartement situé dans le quartier recherché de La Croix Bonnet, dans une résidence édifiée en 2021 et toujours sous garantie décennale, vous offrant ainsi un cadre de vie paisible et moderne. Idéal pour un premier achat, un investissement locatif ou pour ceux cherchant un pied-à-terre à proximité de Paris, cet appartement saura vous séduire par ses caractéristiques et son emplacement idéal. À votre disposition, un appartement de 2 pièces avec une surface de 42.29 m², comprenant : une chambre avec dressing, une salle d'eau avec WC, une cuisine entièrement équipée avec des matériaux de qualité et donnant sur un agréable salon et son balcon avec une vue dégagée. Vous apprécierez les finitions de qualité ainsi que la disposition fonctionnelle de cet espace de vie. La résidence est équipée d'ascenseur et accessible aux personnes à mobilité réduite. Votre sécurité est assurée grâce à un accès à la résidence par un digicode, un local vélo et des espaces communs sécurisés. Vous pourrez également profiter de la fibre optique pour rester connecté en tout confort et une porte blindée pour plus de sécurité. Le quartier offre un cadre de vie agréable à proximité des commerces (boulangerie, superette, coiffeur, restaurant. ), d'une crèche, des écoles maternelle et primaire, d'un cabinet médical, d'une forêt et d'un canal pour des balades en plein air. Les accès routiers (N12, N10, A12, A13) et les arrêts de bus sont également accessibles à moins de 5 minutes, facilitant vos déplacements au quotidien. Enfin, vous bénéficierez de deux places de parking en extérieur dans la résidence fermée, pour stationner facilement vos véhicules en toute sécurité. Son plus, de faibles charges de copropriétés qui comprennent l'eau en compteur individuel et l'entretien de la copropriété. Le chauffage est en individuel électrique et dispose d'un chauffe-eau électrique pour plus d'optimisation dans vos dépenses annuelles. Ne manquez pas l'opportunité de devenir propriétaire de ce bel appartement moderne, idéalement situé et prêt à vous accueillir. Contactez moi pour organiser une visite et laissez-vous séduire par ce havre de paix à Bois-d'Arcy. La presente annonce immobiliere vise 3 lots situés dans une copropriété de 35 lots au total et ne faisant l'objet d'aucune procédure en cours citée à l'article L. 721-1 du code de la construction et de l'habitation. Montant moyen mensuel de charges déclaré par le vendeur : 129.88€ par mois (soit 1558.6 € annuel). Honoraires d'agence à la charge du vendeur. Information d'affichage énergétique sur ce bien : classe ENERGIE C indice 132 et classe CLIMAT A indice 5. Les informations sur les risques auxquels ce bien est exposé, y compris l'obligation légale de débroussaillement, sont disponibles sur le site Géorisques : http://www.georisques.gouv.fr. La présente annonce immobilière a été rédigée sous la responsabilité éditoriale de Mme Sandrine Bihoreau mandataire indépendant en immobilier (sans détention de fonds), agent commercial de la SAS I@D France immatriculé au RSAC de VERSAILLES sous le numéro 898908199, titulaire de la carte de démarchage immobilier pour le compte de la société I@D France SAS.
Nouveau
Cette annonce est récente
À proximité
Recherche des commodités à proximité...
Détails de l'annonce
Localisation
Ville
Bois-d'Arcy
Pays
FR
Diagnostics / Énergie
Diagnostic DPE
132
Diagnostic GES
5
Surfaces / Pièces / Composition
Nombre d’étages
2
Chauffage et diagnostics
Diagnostic de performance énergétique (DPE)
a
b
c
d
e
f
g
Indice d'émission de gaz à effet de serre (GES)
a
b
c
d
e
f
g
