Vente Maison traditionnelle 5 pièces
Type
Bien immobilierTarif
200 000 €Chambres
4Salles de bain
0Vente Maison traditionnelle 5 pièces
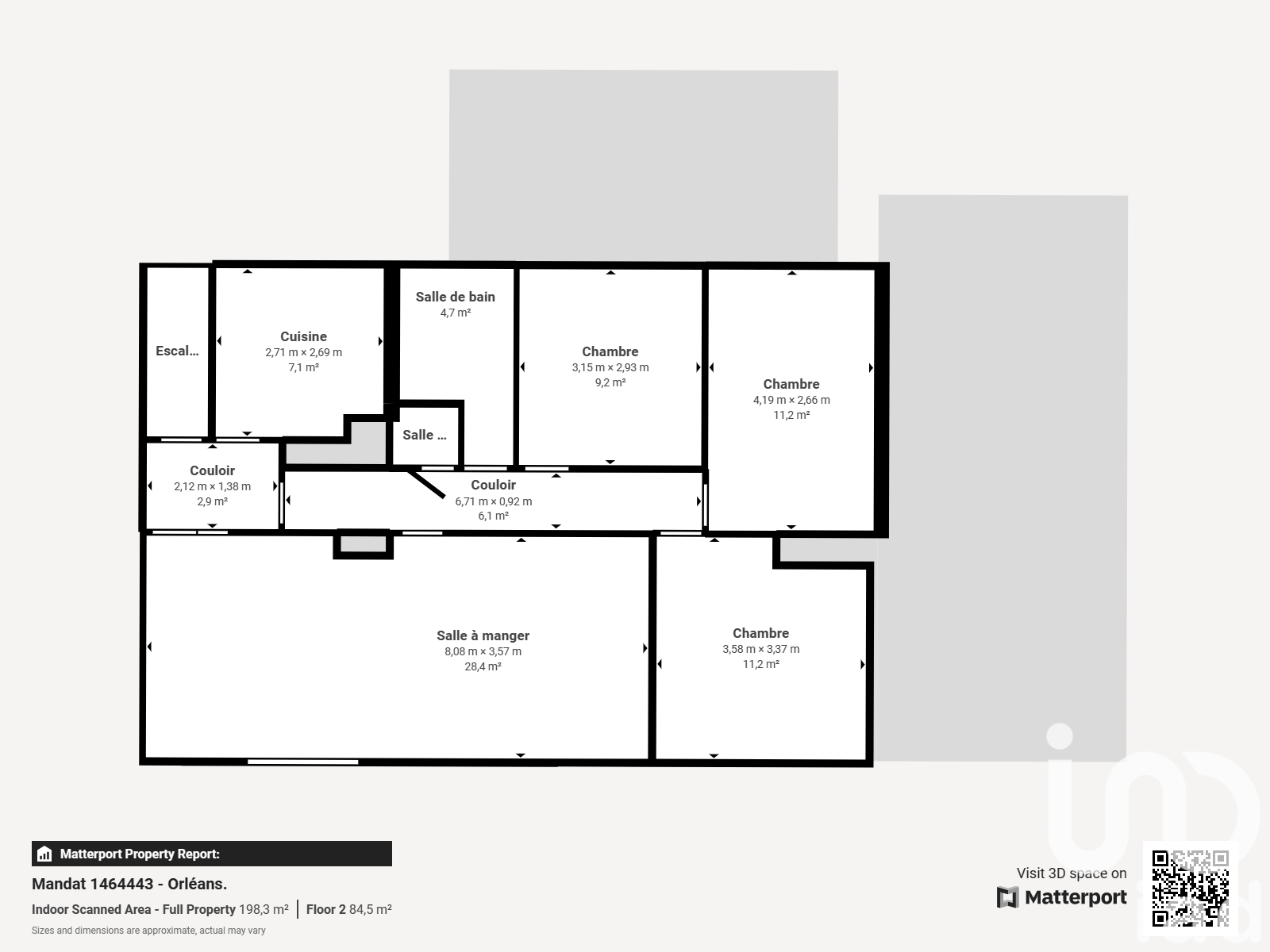
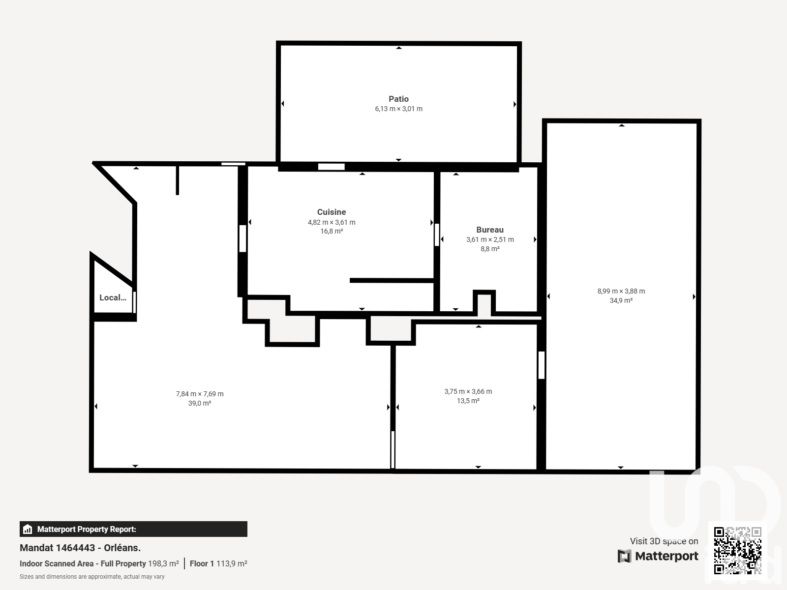
Iad France - Pierre-Yves Charrier vous propose : Maison sur sous-sol total offrant 3 / 4 chambres sur une parcelle de 400 m² environ. Photos et visite virtuelle sur demande. Honoraires d'agence à la charge du vendeur. Information d'affichage énergétique sur ce bien : classe ENERGIE E indice 274 et classe CLIMAT E indice 69. Les informations sur les risques auxquels ce bien est exposé, y compris l'obligation légale de débroussaillement, sont disponibles sur le site Géorisques : www.georisques.gouv.fr. La présente annonce immobilière a été rédigée sous la responsabilité éditoriale de M Pierre-Yves Charrier mandataire indépendant en immobilier (sans détention de fonds), agent commercial de la SAS I@D France immatriculé au RSAC de ORLEANS sous le numéro 518 923 313, titulaire de la carte de démarchage immobilier pour le compte de la société I@D France SAS.
Détails de l'annonce
Localisation
Ville
Orléans
Pays
FR
Diagnostics / Énergie
Diagnostic DPE
274
Diagnostic GES
69
Surfaces / Pièces / Composition
Nombre d’étages
2
Chauffage et diagnostics
Diagnostic de performance énergétique (DPE)
a
b
c
d
e
f
g
Indice d'émission de gaz à effet de serre (GES)
a
b
c
d
e
f
g
