Trouver...

Language: FR

Devise: EUR

Vente Appartement 4 pièces

Publié le 21 January 2026
Type
Bien immobilier
Tarif
485 000 €
Chambres
0
Salles de bain
0

Vente Appartement 4 pièces

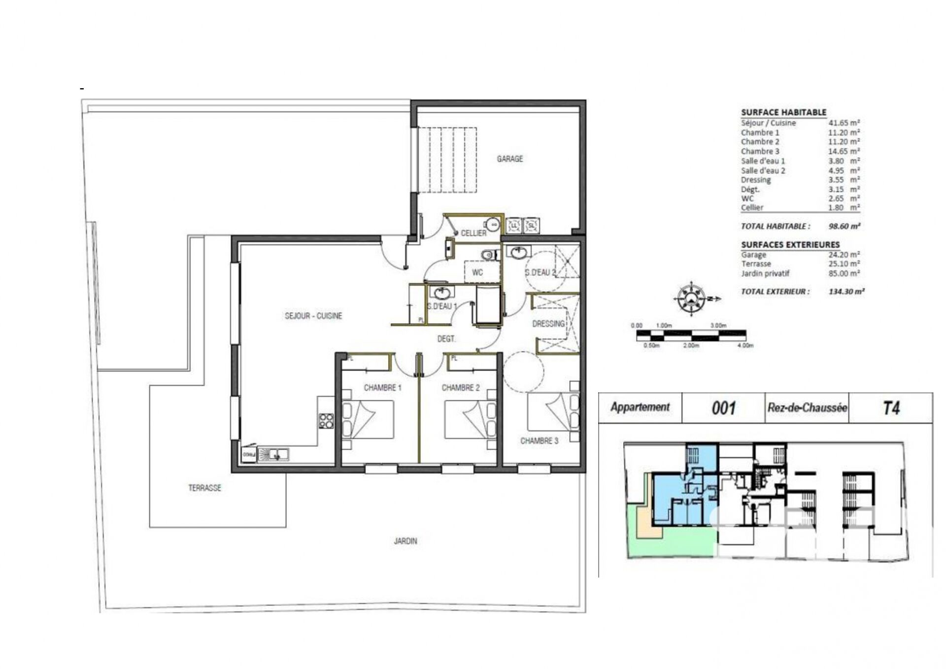
Iad France - Rémi Perez vous propose : Nouveauté sur Latour-Bas-Elne ! BIEN LIRE L’ANNONCE, L’appartement sera livré premier trimestre 2027, bénéficiant des dernières normes de construction RT 2020, avec garanties décennales et dommage ouvrage ! Frais de notaire réduits. Magnifique appartement T4 (Lot 1) de 98,60 m² habitables en rez-de-chaussée, avec un magnifique jardin de 85 m², une terrasse de 25,10 m², un garage de 24,20 m² ainsi que deux places de stationnement privatives. Il se composera d’une lumineuse pièce de vie de 42 m², trois belles chambres dont une suite parentale avec dressing et salle d’eau privative totalisant 23,15 m², une seconde salle d’eau indépendante ainsi qu’un cellier attenant au garage. Idéalement située, à proximité de l’ensemble des commodités utiles au quotidien. 6 lots d'appartements à vendre avec extérieurs - garages et stationnements privatifs, me contacter pour plus d'informations. Honoraires d'agence à la charge du vendeur. Bien non soumis au DPE. Les informations sur les risques auxquels ce bien est exposé, y compris l'obligation légale de débroussaillement, sont disponibles sur le site Géorisques : http://www.georisques.gouv.fr. La présente annonce immobilière a été rédigée sous la responsabilité éditoriale de M Rémi Perez mandataire indépendant en immobilier (sans détention de fonds), agent commercial de la SAS I@D France immatriculé au RSAC de PERPIGNAN sous le numéro 905014379, titulaire de la carte de démarchage immobilier pour le compte de la société I@D France SAS.
Cette semaine Cette annonce est récente

À proximité

Recherche des commodités à proximité...

Détails de l'annonce

Localisation

Ville
Latour-Bas-Elne
Pays
FR

Surfaces / Pièces / Composition

Nombre d’étages
2

Chauffage et diagnostics

Diagnostic de performance énergétique (DPE)
a
b
c
d
e
f
g
Indice d'émission de gaz à effet de serre (GES)
a
b
c
d
e
f
g
Rappelez-moi