Type
Bien immobilierTarif
391 000 €Chambres
1Salles de bain
0Vente Appartement 2 pièces
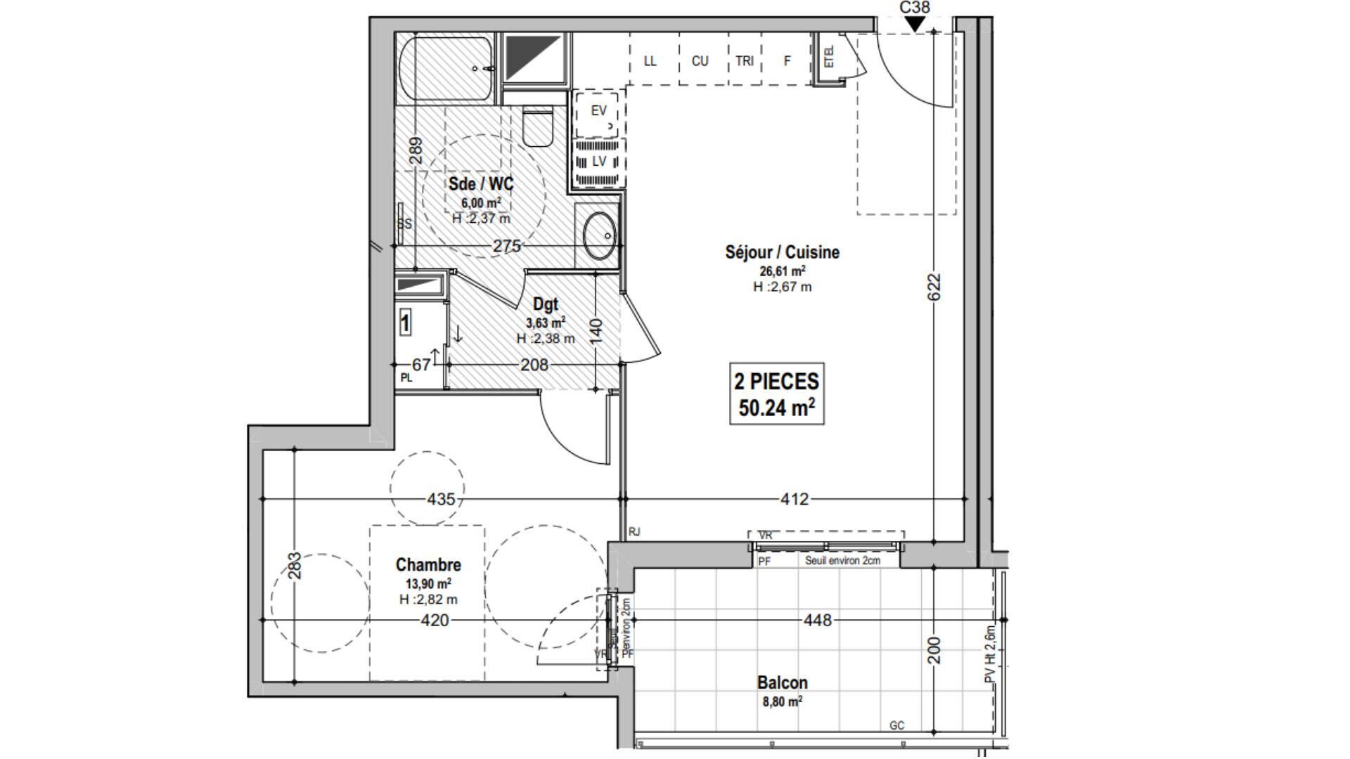
Iad France - Sarah Rozière (06 99 86 19 42) vous propose : Appartement T2 avec balcon à Marseille. Idéalement située boulevard Joseph Vernet, au cOEur du très prisé 8 ème arrondissement de Marseille, la résidence contemporaine L’Orée Borély conjugue élégance architecturale et qualité de vie préservée. À seulement quelques minutes du Parc Borély et des plages du Prado, cette adresse offre un cadre de vie verdoyant et apaisé. Disponible 2027. Un appartement raffiné : Situé au 3 ème étage, cet appartement T2 de 50 m² environ habitables se prolonge par un balcon de 9 m² environ. - Séjour / cuisine de 27 m² environ. - Une chambre confortable. - Salle d'eau moderne. - Annexe incluse : un parking intérieur. De belles prestations : - Chauffage et rafraîchissement collectif par pompe à chaleur thermodynamique. - Volets roulants motorisés et menuiseries aluminium. - Résidence sécurisée avec ascenseur et visiophone. L’art de vivre à Marseille 8 : - À proximité immédiate du Parc Borély, du bord de mer et des plages du Prado. - Commerces, écoles et transports accessibles à pied. - Accès rapide à l’A50 et au centre-ville de Marseille. - Quartier calme, résidentiel et verdoyant, prisé pour sa qualité de vie. N’hésitez pas à me contacter pour plus d’informations ou pour un accompagnement sur mesure. Honoraires d’agence à la charge du vendeur. Bien non soumis au DPE. Les informations sur les risques auxquels ce bien est exposé sont disponibles sur le site Géorisques : www.georisques.gouv.fr. La présente annonce immobilière a été rédigée sous la responsabilité éditoriale de Mlle Sarah Rozière EI (ID 83696), mandataire indépendant en immobilier (sans détention de fonds), agent commercial de la SAS I@D France immatriculé au RSAC de Clermont-Ferrand sous le numéro 978616993, titulaire de la carte de démarchage immobilier pour le compte de la société I@D France SAS. Retrouvez tous nos biens sur notre site internet. www.iadfrance.fr.
À proximité
Recherche des commodités à proximité...
Détails de l'annonce
Localisation
Ville
Marseille
Pays
FR
Surfaces / Pièces / Composition
Nombre d’étages
4
Étage
3
Chauffage et diagnostics
Diagnostic de performance énergétique (DPE)
a
b
c
d
e
f
g
Indice d'émission de gaz à effet de serre (GES)
a
b
c
d
e
f
g
