Type
Bien immobilierTarif
289 000 €Chambres
0Salles de bain
0Vente Appartement 2 pièces
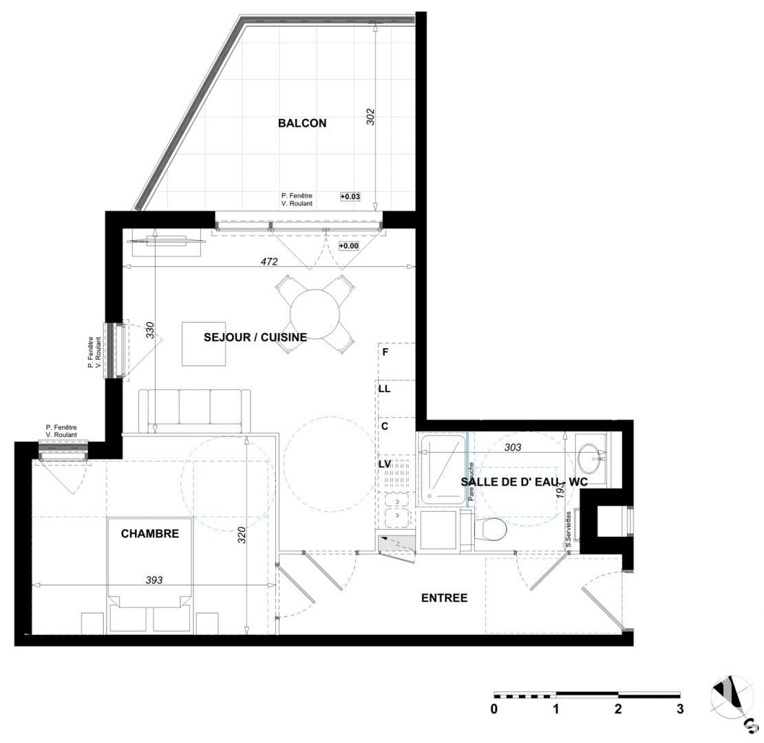
Iad France - Alexandre Rachel (07 83 42 76 10) vous propose : Charmant 2 pièces avec balcon et parking – Antibes (06600) Situé dans un environnement paisible à proximité des commodités et des axes principaux, cet appartement de 2 pièces au 2 ? étage séduit par sa configuration fonctionnelle et sa luminosité. Idéal pour un investissement locatif ou une résidence principale confortable. L’appartement développe une surface habitable de 44,2 m² environ, à laquelle s’ajoute un balcon de 10,5 m² environ, orienté nord-ouest, parfait pour profiter d’une belle lumière en fin de journée. L’espace intérieur comprend : •Un séjour-cuisine convivial de 19,5 m² environ, facilement aménageable, •Une chambre spacieuse de 12,05 m² environ, •Une entrée avec rangements de 7,15 m² environ, •Une salle d’eau moderne avec WC de 4,75 m² environ. Un stationnement privatif en sous-sol est inclus dans le prix. Le logement bénéficie d’un chauffage électrique individuel pour une gestion simple et économique. ________________________________________ ? Informations financières •Prix de vente : 289 000 € •Frais de notaire à la charge du vendeur •Surface habitable : 44,2 m² environ •Surface extérieure : 10,5 m² environ (balcon) •Stationnement : 1 place privative en sous-sol ________________________________________ ? Rentabilité locative Le bien présente une rentabilité potentielle d’environ 3,5 %, avec un loyer de marché estimé à 770 € par mois, conforme aux références locatives du secteur (zone A). Un excellent rapport qualité / prix pour un investissement à Antibes, ville très demandée pour sa proximité avec Sophia-Antipolis, les plages et les transports. ________________________________________ ? Les atouts du bien •Agencement optimal sans perte d’espace •Grand séjour lumineux ouvrant sur le balcon •Chambre confortable de plus de 12 m² environ •Balcon de 10,5 m² environ agréable et sans vis-à-vis •Parking sécurisé inclus •Faibles frais de notaire (à la charge du vendeur) •Secteur recherché, idéal pour location étudiante ou saisonnière Honoraires d’agence à la charge du vendeur. Bien non soumis au DPE. Les informations sur les risques auxquels ce bien est exposé sont disponibles sur le site Géorisques : www.georisques.gouv.fr. La présente annonce immobilière a été rédigée sous la responsabilité éditoriale de M. Alexandre Rachel EI (ID 57750), mandataire indépendant en immobilier (sans détention de fonds), agent commercial de la SAS I@D France immatriculé au RSAC de DRAGUIGNAN sous le numéro 880748447, titulaire de la carte de démarchage immobilier pour le compte de la société I@D France SAS. Retrouvez tous nos biens sur notre site internet. www.iadfrance.fr.
À proximité
Recherche des commodités à proximité...
Détails de l'annonce
Localisation
Ville
Antibes
Pays
FR
Surfaces / Pièces / Composition
Nombre d’étages
Chauffage et diagnostics
Diagnostic de performance énergétique (DPE)
a
b
c
d
e
f
g
Indice d'émission de gaz à effet de serre (GES)
a
b
c
d
e
f
g
