Type
Bien immobilierTarif
297 900 €Chambres
2Salles de bain
0Vente Appartement 3 pièces
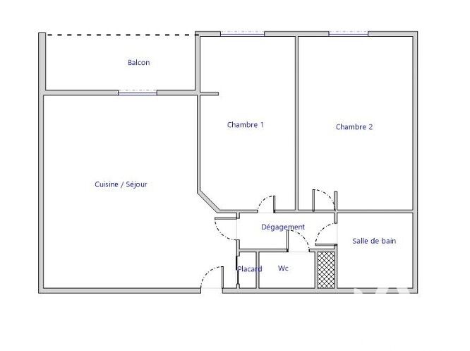
Iad France - Nina Jurko vous propose : Appartement neuf T3 avec 2 terrasses au cOEur de Breuillet – étage 2 / 3 Découvrez cet appartement lumineux et moderne dans un immeuble de construction 2024. Il comprend un séjour spacieux, deux chambres confortables, une cuisine ouverte non équipée et une salle d’eau avec WC. Deux terrasses viennent compléter ce bien, offrant un espace extérieur agréable pour se détendre. Idéalement situé à seulement 2–3 minutes du centre-ville et de la gare RER C, cet appartement bénéficie d’une exposition plein sud qui garantit une belle luminosité naturelle tout au long de la journée. Possibilité d’avoir un parking privatif. Ne laissez pas passer cette opportunité de devenir propriétaire d’un appartement neuf, moderne et confortable à Breuillet. Contactez nous dès maintenant pour organiser une visite ! La presente annonce immobiliere vise 2 lots situés dans une copropriété de 27 lots au total et ne faisant l'objet d'aucune procédure en cours citée à l'article L. 721-1 du code de la construction et de l'habitation. Montant moyen mensuel de charges déclaré par le vendeur : 120€ par mois (soit 1440 € annuel). Honoraires d'agence à la charge du vendeur. Information d'affichage énergétique sur ce bien : classe ENERGIE B indice 106 et classe CLIMAT A indice 3. Les informations sur les risques auxquels ce bien est exposé, y compris l'obligation légale de débroussaillement, sont disponibles sur le site Géorisques : http://www.georisques.gouv.fr. La présente annonce immobilière a été rédigée sous la responsabilité éditoriale de Mme Nina Jurko mandataire indépendant en immobilier (sans détention de fonds), agent commercial de la SAS I@D France immatriculé au RSAC de EVRY-COURCOURONNES sous le numéro 991557539, titulaire de la carte de démarchage immobilier pour le compte de la société I@D France SAS.
Cette semaine
Cette annonce est récente
À proximité
Recherche des commodités à proximité...
Détails de l'annonce
Localisation
Ville
Breuillet
Pays
FR
Diagnostics / Énergie
Diagnostic DPE
106
Diagnostic GES
3
Surfaces / Pièces / Composition
Nombre d’étages
3
Étage
2
Chauffage et diagnostics
Diagnostic de performance énergétique (DPE)
a
b
c
d
e
f
g
Indice d'émission de gaz à effet de serre (GES)
a
b
c
d
e
f
g
