Type
Bien immobilierTarif
335 000 €Chambres
3Salles de bain
0Vente Maison/villa 4 pièces
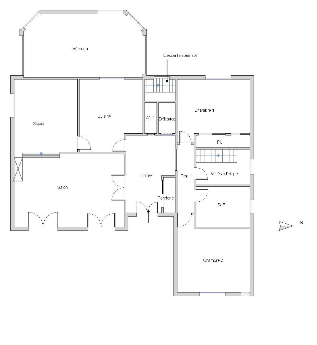
Iad France - Benoît Carette vous propose : iad France – Benoît CARETTE vous propose : à Saint-Laurent-de-la-Salanque Située dans l’une des communes les plus prisées du littoral catalan, dans un quartier calme et paisible, à proximité de toutes les commodités et à seulement quelques minutes des plages, cette superbe villa de style provençal, construite en 2000 de 4 faces, allie le charme de l’ancien à une touche de modernité. La villa de plain-pied offre environ 105 m², édifiée sur une parcelle de 586 m², a été entièrement rénovée aux normes PMR. Vous serez séduit par sa vaste pièce de vie de 55 m² baignée de lumière, prolongée par une terrasse conviviale. La cuisine semi-ouverte et fonctionnelle s’intègre harmonieusement à l’espace de réception. Vous trouverez également une petite arrière-cuisine avec un espace de rangement sur mesure. Coté nuit, la villa offre trois chambres confortables avec chacune placards intégrés, une salle d’eau élégante et deux WC. Côté jardin, la villa est exposée plein sud et tout est pensé pour le confort et le bien-être de tous. Vous profiterez d'une terrasse de plus de 30 m² sans vis-à-vis, véritable prolongement des pièces de vie, pour profiter pleinement des beaux jours et de notre doux climat méditerranéen. Le jardin entièrement clos et joliment arboré offre un cadre intimiste et la parcelle est piscinable, idéale pour concrétiser vos envies. Nous trouvons également un abri de jardin en dur qui abrite forage, ainsi qu’un espace de rangement supplémentaire. Un garage de 20 m² attenant et communiquant complète l’ensemble. Les prestations de la Villa : - Climatisation réversible neuve - Aspiration centralisée - Visiophone - Adoucisseur d’eau - Volets électriques - Double vitrage - Forage - Abri de jardin Contactez-moi idéalement par téléphone pour avoir d'éventuelles informations complémentaires afin de programmer une visite dans les meilleurs délais. Un bien 'COUP DE COEUR' rare et de qualité à visiter sans tarder ! VISITE RAPIDE - AVIS DE VALEUR OFFERT SOUS 48H - BENOIT CARETTE CONSEILLER IMMOBILIER. Honoraires d'agence à la charge de l'acquéreur. Prix honoraires inclus : 335000 euros. Prix hors honoraires : 320000 euros. Honoraires TTC à la charge de l'acquéreur (4,69% du prix du bien hors honoraires) : 15000 euros. Information d'affichage énergétique sur ce bien : classe ENERGIE C indice 173 et classe CLIMAT A indice 5. Les informations sur les risques auxquels ce bien est exposé, y compris l'obligation légale de débroussaillement, sont disponibles sur le site Géorisques : http://www.georisques.gouv.fr. La présente annonce immobilière a été rédigée sous la responsabilité éditoriale de M Benoît Carette mandataire indépendant en immobilier (sans détention de fonds), agent commercial de la SAS I@D France immatriculé au RSAC de PERPIGNAN sous le numéro 827878067, titulaire de la carte de démarchage immobilier pour le compte de la société I@D France SAS.
À proximité
Recherche des commodités à proximité...
Détails de l'annonce
Localisation
Ville
Saint-Laurent-de-la-Salanque
Pays
FR
Diagnostics / Énergie
Diagnostic DPE
173
Diagnostic GES
5
Surfaces / Pièces / Composition
Nombre d’étages
Chauffage et diagnostics
Diagnostic de performance énergétique (DPE)
a
b
c
d
e
f
g
Indice d'émission de gaz à effet de serre (GES)
a
b
c
d
e
f
g
