Type
Bien immobilierTarif
125 000 €Chambres
2Salles de bain
0Vente Appartement 3 pièces
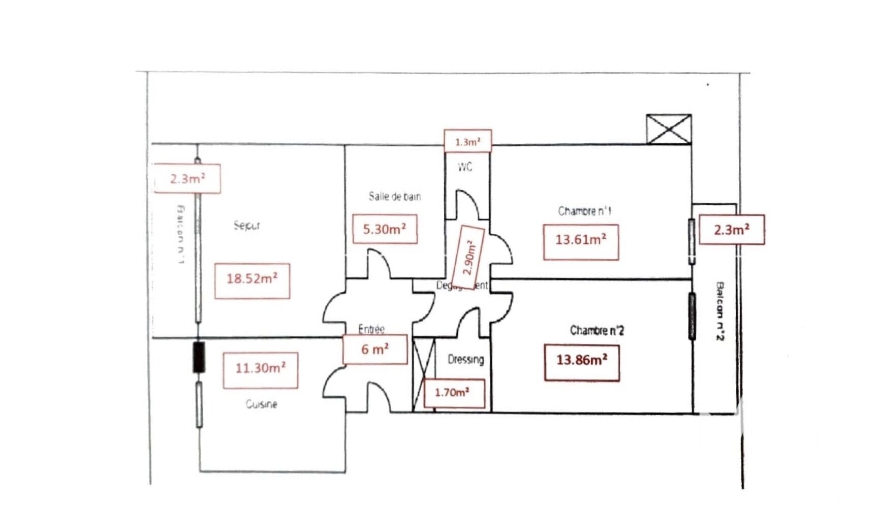
Iad France - Caroline Kuliszczak vous propose : Grand T3 lumineux avec balcons, vue cathédrale, garage et cave – Troyes Situé dans un secteur récemment réhabilité et recherché pour sa proximité immédiate du centre-ville, commerces, écoles et universités, cet appartement Type 3 de 75 m² offre un excellent compromis entre confort, emplacement et valeur patrimoniale. Au 4e étage sans ascenseur, il bénéficie d’une belle luminosité grâce à sa configuration traversante. Il est composé de : une entrée avec placard / penderie un séjour lumineux ouvrant sur balcon, une cuisine séparée équipée et aménagée Un coin nuit avec deux grandes chambres situées dont une avec placard, un dressing / cellier, une salle de douche, WC séparés. Côté technique : fenêtres double-vitrage PVC, oscillo-battantes, chauffage collectif gaz avec répartiteur. Bon état général Atout rare : les chambres disposent d’un balcon avec vue directe sur la cathédrale, offrant un panorama exceptionnel. Prestations complémentaires : ✔ Garage privatif au pied de l’immeuble ✔ Cave Bien idéal pour une résidence principale confortable ou un investissement locatif sécurisé dans un secteur à forte demande. Appelez-moi sans tarder ! La presente annonce immobiliere vise 4 lots situés dans une copropriété de 65 lots au total et ne faisant l'objet d'aucune procédure en cours citée à l'article L. 721-1 du code de la construction et de l'habitation. Montant moyen mensuel de charges déclaré par le vendeur : 260€ par mois (soit 3120 € annuel). Honoraires d'agence à la charge du vendeur. Information d'affichage énergétique sur ce bien : classe ENERGIE D indice 221 et classe CLIMAT D indice 40. Les informations sur les risques auxquels ce bien est exposé, y compris l'obligation légale de débroussaillement, sont disponibles sur le site Géorisques : http://www.georisques.gouv.fr. La présente annonce immobilière a été rédigée sous la responsabilité éditoriale de Mme Caroline Kuliszczak mandataire indépendant en immobilier (sans détention de fonds), agent commercial de la SAS I@D France immatriculé au RSAC de TROYES sous le numéro 842103301, titulaire de la carte de démarchage immobilier pour le compte de la société I@D France SAS.
Cette semaine
Cette annonce est récente
À proximité
Recherche des commodités à proximité...
Détails de l'annonce
Localisation
Ville
Troyes
Pays
FR
Diagnostics / Énergie
Diagnostic DPE
221
Diagnostic GES
40
Surfaces / Pièces / Composition
Nombre d’étages
5
Étage
4
Chauffage et diagnostics
Diagnostic de performance énergétique (DPE)
a
b
c
d
e
f
g
Indice d'émission de gaz à effet de serre (GES)
a
b
c
d
e
f
g
