Type
Bien immobilierTarif
602 841 €Chambres
0Salles de bain
0Vente Loft 4 pièces
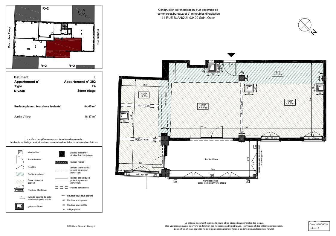
Iad France - Marc Franc (07 80 36 67 20) vous propose : Votre LOFT PRESTIGE - 'TOUR LODS'' à la porte de PARIS. « TOUR LODS» à SAINT OUEN, la finesse contemporaine, harmonie de l'ancien à la signature de Marcel LODS, architecte avant-gardiste des années 30. La réhabilitation de ce bâtiment tertiaire, au style industriel, en logements de prestige, à la conception moderne, aux formes géométriques pures et élégantes, associant briques, verre et métal. LOFT, 84 m² environ, 3ème étage,. orientation Nord / Est,. jardin d'hiver de 18 m² environ,. à aménager à votre signature. À l’exception des fenêtres, portes palières blindées, fibre internet et arrivées d’eau et d’électricité raccordées aux réseaux principaux, votre appartement est livré brut à aménager selon vos envies, vos goûts, votre style plutôt classique ou assurément design. Votre intérieur est à votre signature, unique en tout point. La plupart des lofts dispose d’un privilège supplémentaire, un agréable jardin d’hiver en lieu et place de l’ancien monte-charge. Règlementation Environnementale RT 2012. Livraison prévisionnelle 1er T 2026. Contactez-moi pour en savoir plus ! Honoraires d’agence à la charge du vendeur. Bien non soumis au DPE. Les informations sur les risques auxquels ce bien est exposé sont disponibles sur le site Géorisques : www.georisques.gouv.fr. La présente annonce immobilière a été rédigée sous la responsabilité éditoriale de M. Marc Franc EI (ID 83540), mandataire indépendant en immobilier (sans détention de fonds), agent commercial de la SAS I@D France immatriculé au RSAC de VANNES sous le numéro 931732952, titulaire de la carte de démarchage immobilier pour le compte de la société I@D France SAS. Retrouvez tous nos biens sur notre site internet. www.iadfrance.fr.
À proximité
Recherche des commodités à proximité...
Détails de l'annonce
Localisation
Ville
Saint-Ouen-sur-Seine
Pays
FR
Surfaces / Pièces / Composition
Nombre d’étages
Chauffage et diagnostics
Diagnostic de performance énergétique (DPE)
a
b
c
d
e
f
g
Indice d'émission de gaz à effet de serre (GES)
a
b
c
d
e
f
g
