Type
Bien immobilierTarif
161 200 €Chambres
2Salles de bain
0Vente Appartement 3 pièces
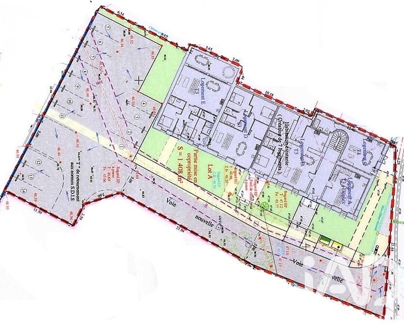
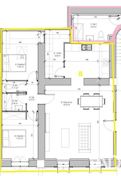
Iad France - Daisy Bernasconi vous propose : APPARTEMENT T3 AVEC JARDIN A AMENAGER – DEMEURE DE CHARME – ST SELVE Au sein d’une demeure de maître du XIXᵉ siècle, découvrez ce plateau brut à aménager, idéal pour créer un appartement T3 sur mesure, dans une petite copropriété de seulement 7 lots. Ce bien de caractère s’adresse aux professionnels du bâtiment, investisseurs ou particuliers amateurs de rénovation, à la recherche d’un projet personnalisé mêlant cachet de l’ancien et liberté architecturale totale. LES BASES DE VOTRE PAGE BLANCHE Plateau brut à rénover et réagencer et pré-viabilisé avec arrivées et évacuations d’eau, compteurs individuels, gaines techniques en attente Surface habitable envisageable en REZ DE CHAUSEE de 74 m² – Lot B 2 places de parking privatives et jardinet Charme authentique de l’ancien : moulures, belles hauteurs sous plafonds à sublimer. CREEZ UN LOGEMENT UNIQUE A VOTRE IMAGE Travaux d’aménagement intérieur à prévoir selon le lot souhaité : Plâtrerie, isolation, installation électrique et chauffage individuel, plomberie, revêtements sols et murs, Cuisine et salle d’eau Travaux complémentaires : Raccordement final (liaison B) et clôture du jardin privatif CADRE DE VIE ET ACCESSIBILITE Entre Bordeaux et Langon à 5 minutes des commodités, écoles et services de la dynamique commune de SAINT SELVE, avec un accès rapide à l’A62 et à la gare de Beautiran Vous n’avez pas peur des travaux et recherchez un bien à fort potentiel et personnalisable à 100% Contactez-moi dès maintenant pour plus d’informations ou pour organiser une visite. La presente annonce immobiliere vise 3 lots situés dans une copropriété de 21 lots au total et ne faisant l'objet d'aucune procédure en cours citée à l'article L. 721-1 du code de la construction et de l'habitation. Montant moyen mensuel de charges déclaré par le vendeur : 100€ par mois (soit 1200 € annuel). Honoraires d'agence à la charge du vendeur. Bien non soumis au DPE. Les informations sur les risques auxquels ce bien est exposé, y compris l'obligation légale de débroussaillement, sont disponibles sur le site Géorisques : http://www.georisques.gouv.fr. La présente annonce immobilière a été rédigée sous la responsabilité éditoriale de Mme Daisy Bernasconi mandataire indépendant en immobilier (sans détention de fonds), agent commercial de la SAS I@D France immatriculé au RSAC de BORDEAUX sous le numéro 885193003, titulaire de la carte de démarchage immobilier pour le compte de la société I@D France SAS.
Ce mois
Cette annonce est récente
À proximité
Recherche des commodités à proximité...
Détails de l'annonce
Localisation
Ville
Saint-Selve
Pays
FR
Chauffage et diagnostics
Diagnostic de performance énergétique (DPE)
a
b
c
d
e
f
g
Indice d'émission de gaz à effet de serre (GES)
a
b
c
d
e
f
g
