Type
Bien immobilierTarif
160 000 €Chambres
1Salles de bain
0Vente Appartement 2 pièces
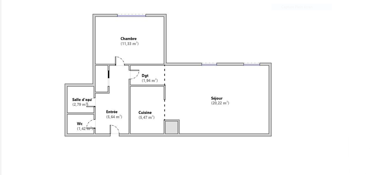
Iad France - Fabienne Valuet vous propose : Appartement de type 2, au sein d'une résidence sécurisée datant de 2001 (vidéo-surveillance), situé en hyper centre ville de DIJON (proche place Wilson). Ce logement en rez-de-jardin, bénéficie d'une surface habitable de 49 m² et d'un jardin privatif de 50 m² environ. Exposition Nord. Le bien se compose de : Une entrée avec placards (5,54 m²), un WC indépendant (1,42 m²), une salle de douche (2,80 m²), une chambre équipée d'une baie coulissante munie d'un volet électrique Somfy (11,33 m² accès à une première terrasse de 8,50 m²), un séjour (22,70 m²) avec ouverture permettant l'accès à une deuxième terrasse de 13 m² et une cuisine équipée ouverte sur le séjour (5,47 m²). Equipements de l'appartement : Fenêtres en PVC double vitrage - Fibre - Interphone - Digic - chaudière au gaz individuel ELM LEBLANC de 2001 - Thermostat mural - DPE en C et GES en C. Aucune anomalie gaz et électricité. Equipements de la résidence : Ascenseurs - Vidéo surveillance - Interphone - Digic - Local poubelles fermé - Local à vélos - Les charges d'un montant de 100€ par mois, comprennent l'eau, l'entretien de la résidence, les poubelles, l'entretien des haies, les ascenseurs et l'entretien annuel de la chaudière gaz. Stationnements des véhicules gratuits et aisés dans la rue. Possibilité de louer ou d'acheter un garage ou une place de stationnement privatif au sein de la résidence. Cet appartement est situé à proximité des transports en commun, des commerces, des écoles et de nombreux espaces verts (parc de la Colombière) et de toutes autres commodités. La presente annonce immobiliere vise 1 lot situé dans une copropriété de 389 lots au total et ne faisant l'objet d'aucune procédure en cours citée à l'article L. 721-1 du code de la construction et de l'habitation. Montant moyen mensuel de charges déclaré par le vendeur : 100€ par mois (soit 1200 € annuel). Honoraires d'agence à la charge du vendeur. Information d'affichage énergétique sur ce bien : classe ENERGIE C indice 125 et classe CLIMAT C indice 24. Les informations sur les risques auxquels ce bien est exposé, y compris l'obligation légale de débroussaillement, sont disponibles sur le site Géorisques : http://www.georisques.gouv.fr. La présente annonce immobilière a été rédigée sous la responsabilité éditoriale de Mme Fabienne Valuet mandataire indépendant en immobilier (sans détention de fonds), agent commercial de la SAS I@D France immatriculé au RSAC de DIJON sous le numéro 813153210, titulaire de la carte de démarchage immobilier pour le compte de la société I@D France SAS.
Ce mois
Cette annonce est récente
À proximité
Recherche des commodités à proximité...
Détails de l'annonce
Localisation
Ville
Dijon
Pays
FR
Diagnostics / Énergie
Diagnostic DPE
125
Diagnostic GES
24
Surfaces / Pièces / Composition
Nombre d’étages
5
Chauffage et diagnostics
Diagnostic de performance énergétique (DPE)
a
b
c
d
e
f
g
Indice d'émission de gaz à effet de serre (GES)
a
b
c
d
e
f
g
