Trouver...

Language: FR

Devise: EUR

Type
Bien immobilier
Tarif
168 000 €
Chambres
1
Salles de bain
0

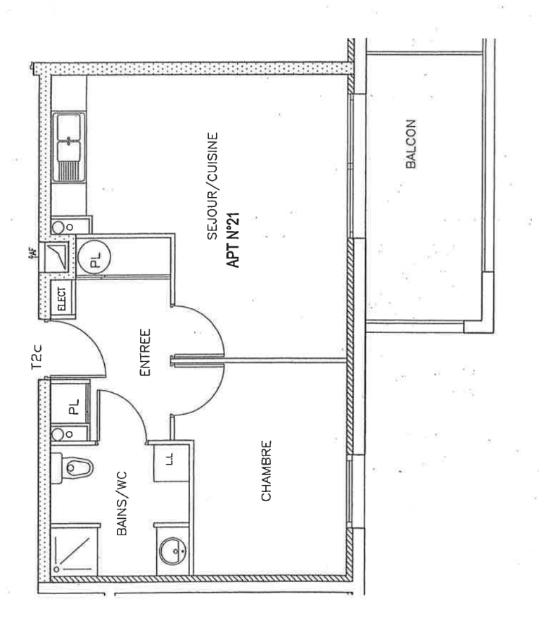
Vente Appartement 2 pièces

Iad France - Alan Carduner vous propose : Vannes Ouest – 40 m² – Balcon – Box fermé – Ascenseur Situé quartier Bernus, à l’ouest de Vannes, cet appartement de 40 m² se trouve au 2ᵉ étage sur 4 d’une résidence de 2005, calme et bien entretenue, avec ascenseur. Un emplacement recherché : Conleau à 10 min à pied, sentiers côtiers à deux pas, et 25 minutes à pied du port. Toutes les commodités et les lignes de bus sont accessibles très rapidement. L’entrée dispose d’un placard, puis on découvre une pièce de vie lumineuse en L avec cuisine ouverte et salon donnant directement sur un balcon de 9 m² exposé sud-est. Il bénéficie également d'une belle chambre, une salle d’eau avec coin buanderie et WC. En complément : - Box fermé de 20 m² en sous-sol Résidence calme, secteur recherché, proche nature et ville. Un appartement lumineux, fonctionnel et bien placé, parfait pour un premier achat, un pied-à-terre ou un investissement locatif. Envie de le visiter ? Contactez-moi ! La presente annonce immobiliere vise 2 lots situés dans une copropriété de 132 lots au total et ne faisant l'objet d'aucune procédure en cours citée à l'article L. 721-1 du code de la construction et de l'habitation. Montant moyen mensuel de charges déclaré par le vendeur : 58.94€ par mois (soit 707.28 € annuel). Honoraires d'agence à la charge du vendeur. Information d'affichage énergétique sur ce bien : classe ENERGIE C indice 161 et classe CLIMAT A indice 4. Les informations sur les risques auxquels ce bien est exposé, y compris l'obligation légale de débroussaillement, sont disponibles sur le site Géorisques : http://www.georisques.gouv.fr. La présente annonce immobilière a été rédigée sous la responsabilité éditoriale de M Alan Carduner mandataire indépendant en immobilier (sans détention de fonds), agent commercial de la SAS I@D France immatriculé au RSAC de Lorient sous le numéro 890860570, titulaire de la carte de démarchage immobilier pour le compte de la société I@D France SAS.

Détails de l'annonce

Localisation

Ville
Vannes
Pays
FR

Diagnostics / Énergie

Diagnostic DPE
161
Diagnostic GES
4

Surfaces / Pièces / Composition

Nombre d’étages
4
Étage
2

Chauffage et diagnostics

Diagnostic de performance énergétique (DPE)
a
b
c
d
e
f
g
Indice d'émission de gaz à effet de serre (GES)
a
b
c
d
e
f
g
Rappelez-moi
Nos partenaires