Type
Bien immobilierTarif
195 000 €Chambres
5Salles de bain
0Vente Maison traditionnelle 8 pièces
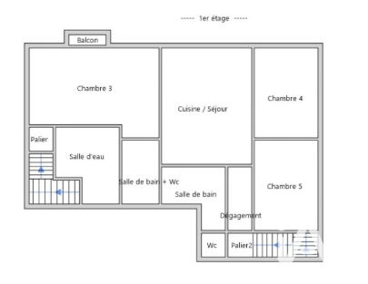
Iad France - Estelle Perriot vous propose : Opportunité à Saisir - Maison traditionnelle avec jardin à Guer. Située à Guer, à 5 minutes du centre-ville, proche des commerces, écoles et axes principaux, cette maison traditionnelle de 194 m² offre de beaux volumes et un fort potentiel, aussi bien pour un projet familial que pour un investissement locatif. Un cadre de vie agréable et pratique pour les familles comme pour les investisseurs. Il est possible d'y créer jusqu'à 3 logements de 3 pièces, de façon simple grâce à sa configuration actuelle, un atout rare pour un projet d'investissement. Cette propriété se compose d'une entrée donnant sur un grand séjour lumineux avec cheminée, de 5 chambres spacieuses, 2 salles d'eau ainsi qu'une salle de bain, 2 cuisines avec de nombreux placards, une chaufferie. Grâce à son exposition plein sud, profite d'un ensoleillement optimal et d'espaces de vie très lumineux. La maison comprend également un jardin d'environ 679 m² entièrement clos avec un abri de jardin. Un garage et une cave complètent le bien, ce qui offre un espace de stockage appréciable. Bien que nécessitant quelques travaux de rénovation, cette maison offre un potentiel exceptionnel pour laisser libre cours à votre créativité et personnaliser chaque espace selon vos goûts. L'emplacement de la maison à Guer est idéal, offrant un cadre de vie tranquille tout en étant proche des commodités essentielles telles que les écoles, les commerces et les transports en commun. Ne manquez pas cette opportunité unique d'acquérir une maison pleine de potentiel à Guer. Contactez-nous dès maintenant pour organiser une visite et laissez-vous séduire par le charme de cette maison traditionnelle. Honoraires d'agence à la charge du vendeur. Information d'affichage énergétique sur ce bien : classe ENERGIE E indice 278 et classe CLIMAT E indice 56. Les informations sur les risques auxquels ce bien est exposé, y compris l'obligation légale de débroussaillement, sont disponibles sur le site Géorisques : http://www.georisques.gouv.fr. La présente annonce immobilière a été rédigée sous la responsabilité éditoriale de Mme Estelle Perriot mandataire indépendant en immobilier (sans détention de fonds), agent commercial de la SAS I@D France immatriculé au RSAC de Nantes sous le numéro 892187816, titulaire de la carte de démarchage immobilier pour le compte de la société I@D France SAS.
À proximité
Recherche des commodités à proximité...
Détails de l'annonce
Localisation
Ville
Guer
Pays
FR
Diagnostics / Énergie
Diagnostic DPE
278
Diagnostic GES
56
Surfaces / Pièces / Composition
Nombre d’étages
2
Chauffage et diagnostics
Diagnostic de performance énergétique (DPE)
a
b
c
d
e
f
g
Indice d'émission de gaz à effet de serre (GES)
a
b
c
d
e
f
g
