Vente Maison de ville 6 pièces
Type
Bien immobilierTarif
445 000 €Chambres
5Salles de bain
0Vente Maison de ville 6 pièces
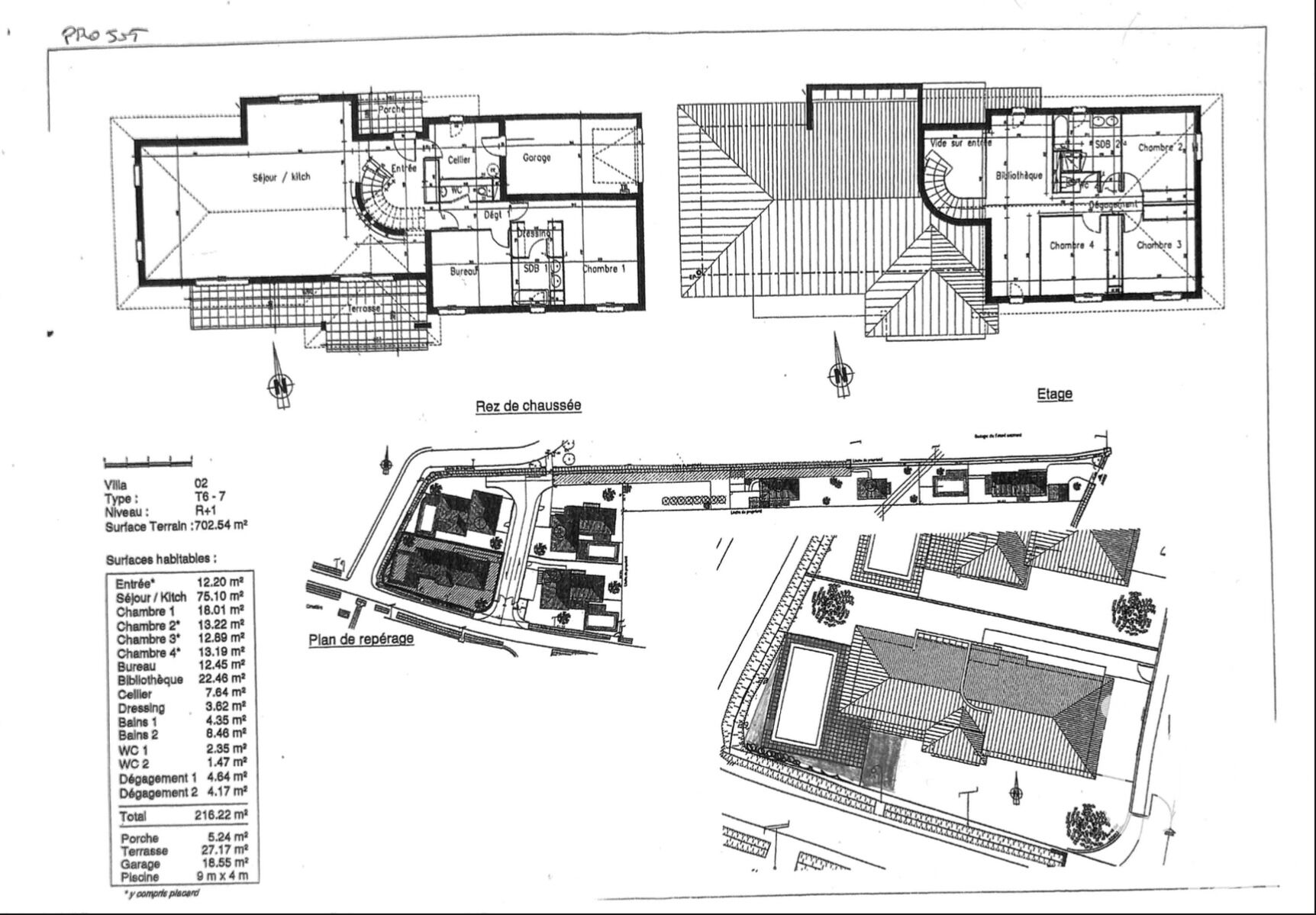
Iad France - Carine Soubie vous propose : EXCLUSIVITÉ – SUPERBE VILLA FAMILIALE DANS RÉSIDENCE SÉCURISÉE À Mondonville, dans une résidence privée et sécurisée, à deux pas du centre du village et des établissements scolaires (futur collège, école maternelle et primaire), cette villa contemporaine de 216 m² habitables, construite en 2008, offre un cadre de vie idéal pour une famille ou toute personne en quête de confort et de beaux volumes. Implantée sur une parcelle paysagée d’environ 730 m², cette maison séduit par ses espaces lumineux, sa fonctionnalité et sa modularité. L’entrée s’ouvre sur une pièce de vie avec cuisine séparée par une verrière, de 75 m², baignée de lumière grâce à de grandes baies vitrées exposées sud-ouest. Celles-ci donnent un accès direct à une terrasse couverte et une piscine 9x4, récemment rénovée. La cuisine ouverte, moderne et entièrement équipée, est sublimée par une verrière qui ajoute du caractère à cet espace convivial et chaleureux. Au rez-de-chaussée, une suite parentale avec salle de bains, double dressing et un bureau indépendant (pouvant devenir une chambre) offrent une vraie vie de plain-pied. À l’étage, un vaste palier laisse libre cours à vos envies : salle de jeux, coin lecture, télétravail ou détente. Trois chambres spacieuses avec rangements et une grande salle de bains (douche + baignoire) complètent l’ensemble. LES ATOUTS QUI FONT LA DIFFÉRENCE Garage fermé Cellier / buanderie Volumes généreux Jardin plat, clos et facile d’entretien Terrasse couverte Piscine 9x4 Climatisation réversible Contacte-moi dès aujourd’hui pour une visite personnalisée. Cette villa est un véritable coup de cOEur qui mérite d’être découverte dans ses moindres détails. La presente annonce immobiliere vise 1 lot situé dans une copropriété de 7 lots au total et ne faisant l'objet d'aucune procédure en cours citée à l'article L. 721-1 du code de la construction et de l'habitation. Montant moyen mensuel de charges déclaré par le vendeur : 68.33€ par mois (soit 820 € annuel). Honoraires d'agence à la charge du vendeur. Information d'affichage énergétique sur ce bien : classe ENERGIE C indice 116 et classe CLIMAT A indice 3. Les informations sur les risques auxquels ce bien est exposé, y compris l'obligation légale de débroussaillement, sont disponibles sur le site Géorisques : http://www.georisques.gouv.fr. La présente annonce immobilière a été rédigée sous la responsabilité éditoriale de Mme Carine Soubie mandataire indépendant en immobilier (sans détention de fonds), agent commercial de la SAS I@D France immatriculé au RSAC de Toulouse sous le numéro 489106443, titulaire de la carte de démarchage immobilier pour le compte de la société I@D France SAS.
Détails de l'annonce
Localisation
Ville
Mondonville
Pays
FR
Diagnostics / Énergie
Diagnostic DPE
116
Diagnostic GES
3
Chauffage et diagnostics
Diagnostic de performance énergétique (DPE)
a
b
c
d
e
f
g
Indice d'émission de gaz à effet de serre (GES)
a
b
c
d
e
f
g
