Type
Bien immobilierTarif
790 000 €Chambres
4Salles de bain
0Vente Maison/villa 8 pièces
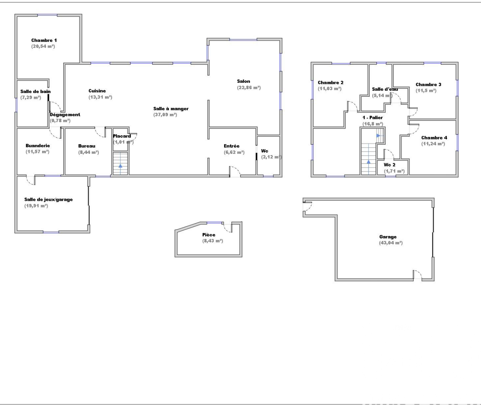
Iad France - Magali Koppe vous propose : CHARLY / PROCHE CENTRE / MAISON 2006 / JARDIN AVEC PISCINE / 4 CHAMBRES POSSIBILITE 7 / SUITE PARENTALE / BEAUX VOLUMES / POMPE A CHALEUR A Charly, proche du centre village, je vous propose cette belle maison familiale de 2006. Au rez-de-chaussée, une entrée accueillante s’ouvre sur un vaste espace de vie de 50 m², composé d’un séjour / salle à manger de 37 m² et d’une cuisine de 13 m². L’ensemble bénéficie de belles ouvertures et d’une atmosphère chaleureuse, propice à la vie de famille comme à la réception. En prolongement, un salon indépendant de 22 m² vient compléter cet espace de vie, offrant une pièce plus intimiste, idéale pour un coin lecture, un salon TV ou un espace de réception supplémentaire. Le rez-de-chaussée accueille également : - Une suite parentale 20 m² avec salle de bains, légèrement en retrait, accessible par quelques marches, - Un bureau de 9 m², parfaitement adapté au télétravail, - Une grande pièce polyvalente de 20 m², aux usages multiples : chambre supplémentaire, salle de jeux, salle de sport ou bureau indépendant, - Une buanderie. À l’étage, la circulation est tout aussi fluide : - Un grand dégagement de 16 m², véritable espace à part entière, facilement aménageable selon les besoins, - Trois chambres de 11 m² chacune, - Une salle d’eau et un WC indépendant. Vous bénéficiez également d'un garage de plus de 40 m² et d'une dépendance prête à aménager. À l’extérieur, la propriété propose deux espaces jardins distincts, dont un jardin principal soigneusement aménagé, avec terrasses et piscine, invitant à la détente et aux moments partagés. Les + de cette propriété : - Proximité du centre - Absence de vis-à-vis - DPE performant et pompe à chaleur récente - Beaux volumes - Bel extérieur intimiste - Pas de travaux à prévoir - De nombreuses pièces à aménager selon votre mode de vie. Honoraires d'agence à la charge du vendeur. Information d'affichage énergétique sur ce bien : classe ENERGIE C indice 128 et classe CLIMAT A indice 4. Les informations sur les risques auxquels ce bien est exposé, y compris l'obligation légale de débroussaillement, sont disponibles sur le site Géorisques : http://www.georisques.gouv.fr. La présente annonce immobilière a été rédigée sous la responsabilité éditoriale de Mme Magali Koppe mandataire indépendant en immobilier (sans détention de fonds), agent commercial de la SAS I@D France immatriculé au RSAC de LYON sous le numéro 831817747, titulaire de la carte de démarchage immobilier pour le compte de la société I@D France SAS.
Ce mois
Cette annonce est récente
À proximité
Recherche des commodités à proximité...
Détails de l'annonce
Localisation
Ville
Charly
Pays
FR
Diagnostics / Énergie
Diagnostic DPE
128
Diagnostic GES
4
Surfaces / Pièces / Composition
Nombre d’étages
2
Chauffage et diagnostics
Diagnostic de performance énergétique (DPE)
a
b
c
d
e
f
g
Indice d'émission de gaz à effet de serre (GES)
a
b
c
d
e
f
g
