Type
Bien immobilierTarif
260 000 €Chambres
2Salles de bain
0Vente Appartement 3 pièces
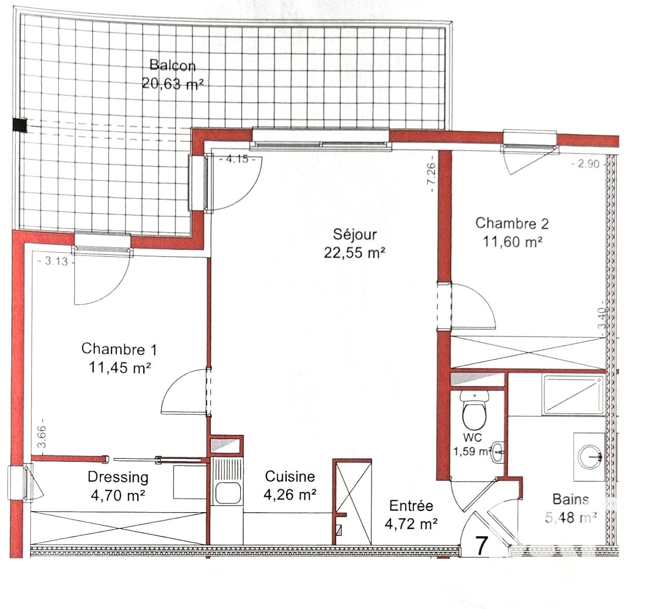
Iad France - Bérengère Gomes vous propose : Situé dans une résidence récente de 2016, sur les hauteurs de Manom, quartier Maison Rouge, très recherché, ce bel appartement de 2 chambres vous séduira par sa distribution fonctionnelle et ses prestations soignées. L’entrée dispose d’un placard intégré, offrant un espace pratique pour vos affaires. La cuisine équipée et aménagée s’ouvre sur un séjour lumineux donnant accès à une belle terrasse en L, idéalement orientée plein sud, parfaite pour profiter des repas en extérieur ou simplement se détendre au soleil. Les deux chambres sont situées de part et d’autre du logement, garantissant intimité et confort. L’une d’elles bénéficie d’une buanderie / dressing pratique. La salle d’eau moderne est équipée d’une grande douche à l’italienne, un sèche serviette et d’un meuble vasque, tandis que le toilette séparé dispose de son point d’eau. Le chauffage et l’eau chaude collectifs offrent un confort optimal et sont inclus dans des charges de copropriété d’environ 200 € par mois. Pour le stationnement, vous disposez d’une place dans un garage collectif couvert et d’une place extérieure. Et pour le stockage, une cave privative est également présente au sous-sol. Situé au 1er étage sans ascenseur, ce bien allie confort, luminosité et praticité dans un quartier recherché. Ne tardez pas ! Contactez moi dès aujourd’hui pour organiser votre visite et découvrir ce très bel appartement. La presente annonce immobiliere vise 3 lots situés dans une copropriété de 39 lots au total et ne faisant l'objet d'aucune procédure en cours citée à l'article L. 721-1 du code de la construction et de l'habitation. Montant moyen mensuel de charges déclaré par le vendeur : 201.21€ par mois (soit 2414.56 € annuel). Honoraires d'agence à la charge du vendeur. Information d'affichage énergétique sur ce bien : classe ENERGIE C indice 95 et classe CLIMAT C indice 17. Les informations sur les risques auxquels ce bien est exposé, y compris l'obligation légale de débroussaillement, sont disponibles sur le site Géorisques : http://www.georisques.gouv.fr. La présente annonce immobilière a été rédigée sous la responsabilité éditoriale de Mme Bérengère Gomes mandataire indépendant en immobilier (sans détention de fonds), agent commercial de la SAS I@D France immatriculé au RSAC de thionville sous le numéro 789584562, titulaire de la carte de démarchage immobilier pour le compte de la société I@D France SAS.
Ce mois
Cette annonce est récente
À proximité
Recherche des commodités à proximité...
Détails de l'annonce
Localisation
Ville
Manom
Pays
FR
Diagnostics / Énergie
Diagnostic DPE
95
Diagnostic GES
17
Surfaces / Pièces / Composition
Nombre d’étages
2
Chauffage et diagnostics
Diagnostic de performance énergétique (DPE)
a
b
c
d
e
f
g
Indice d'émission de gaz à effet de serre (GES)
a
b
c
d
e
f
g
