Type
Bien immobilierTarif
288 000 €Chambres
4Salles de bain
0Vente Maison/villa 6 pièces
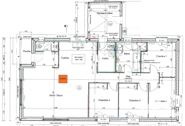
Iad France - Ingrid BARRAT vous propose : Maison achevée en 2023, familiale sans travaux, contemporaine et économique proche de Langon. La maison est exposée principalement sud-est. Vous trouverez le plan joint afin de vous projeter. Entrée avec placard, wc, grand salon / séjour ouvert sur l'espace cuisine meublée et équipée. Cellier, buanderie. Salle de bain avec douche et wc. 4 chambres. Un garage à vélo. L'assainissement est collectif. Le système de chauffage est une pompe à chaleur air / air réversible. Chauffe-eau économique. RT 2012. Terrasses. La parcelle est clôturée est fermée avec un portail électrique. Scolarité : maternelle à CM2. Arrêt de bus scolaire à 500m. Quelques commerces dans le village. Je reste à votre écoute. Honoraires d'agence à la charge de l'acquéreur. Prix honoraires inclus : 288000 euros. Prix hors honoraires : 275000 euros. Honoraires TTC à la charge de l'acquéreur (4,73% du prix du bien hors honoraires) : 13000 euros. Information d'affichage énergétique sur ce bien : classe ENERGIE A indice 37 et classe CLIMAT A indice 1. Les informations sur les risques auxquels ce bien est exposé, y compris l'obligation légale de débroussaillement, sont disponibles sur le site Géorisques : http://www.georisques.gouv.fr. La présente annonce immobilière a été rédigée sous la responsabilité éditoriale de Mme Ingrid BARRAT mandataire indépendant en immobilier (sans détention de fonds), agent commercial de la SAS I@D France immatriculé au RSAC de Bordeaux sous le numéro 834500001, titulaire de la carte de démarchage immobilier pour le compte de la société I@D France SAS.
Cette semaine
Cette annonce est récente
À proximité
Recherche des commodités à proximité...
Détails de l'annonce
Localisation
Ville
Langon
Pays
FR
Diagnostics / Énergie
Diagnostic DPE
37
Chauffage et diagnostics
Diagnostic de performance énergétique (DPE)
a
b
c
d
e
f
g
Indice d'émission de gaz à effet de serre (GES)
a
b
c
d
e
f
g
