Trouver...

Language: FR

Devise: EUR

Vente Appartement 4 pièces

Publié le 17 April 2025
Type
Bien immobilier
Tarif
300 000 €
Chambres
3
Salles de bain
0

Vente Appartement 4 pièces

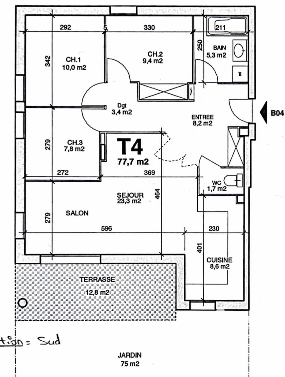
Iad France - Julie Grand vous propose : T4 EN REZ-DE-JARDIN – AU CALME – PROCHE VOIE VERTE. À Vétraz-Monthoux, dans une résidence sécurisée avec portail électrique, venez découvrir ce bel appartement en rez-de-jardin, idéal pour une vie paisible à deux pas des commodités. Il se compose d'une entrée avec rangements, d’une cuisine équipée ouverte sur un séjour, avec accès direct au jardin orienté plein Sud. Il offre 2 chambres, un bureau (ou 3e chambre), une salle de bain, et un WC séparé. L’extérieur, entièrement clos avec une terrasse et un jardin (75 m² de terrain), idéal pour les enfants ou un animal de compagnie. Un portillon permet un accès direct au parking. Inclus : une place de parking, possibilité d’acquérir une deuxième place de parking en supplément. Vous profiterez également d’un local fermé pour motos / scooters, ainsi qu’un local vélos. Copropriété très bien entretenue, majoritairement habitée par des propriétaires. Charges incluant eau chaude, eau froide et adoucisseur d’eau. À proximité immédiate : voie verte, écoles, commerces et mairie. La presente annonce immobiliere vise 3 lots situés dans une copropriété de 60 lots au total et ne faisant l'objet d'aucune procédure en cours citée à l'article L. 721-1 du code de la construction et de l'habitation. Montant moyen mensuel de charges déclaré par le vendeur : 220€ par mois (soit 2640 € annuel). Honoraires d'agence à la charge du vendeur. Information d'affichage énergétique sur ce bien : classe ENERGIE D indice 220 et classe CLIMAT B indice 7. Les informations sur les risques auxquels ce bien est exposé, y compris l'obligation légale de débroussaillement, sont disponibles sur le site Géorisques : http://www.georisques.gouv.fr. La présente annonce immobilière a été rédigée sous la responsabilité éditoriale de Mme Julie Grand mandataire indépendant en immobilier (sans détention de fonds), agent commercial de la SAS I@D France immatriculé au RSAC de ANNECY sous le numéro 853399863, titulaire de la carte de démarchage immobilier pour le compte de la société I@D France SAS.

À proximité

Recherche des commodités à proximité...

Détails de l'annonce

Localisation

Ville
Vétraz-Monthoux
Pays
FR

Diagnostics / Énergie

Diagnostic DPE
220
Diagnostic GES
7

Chauffage et diagnostics

Diagnostic de performance énergétique (DPE)
a
b
c
d
e
f
g
Indice d'émission de gaz à effet de serre (GES)
a
b
c
d
e
f
g
Rappelez-moi