Type
Bien immobilierTarif
242 000 €Chambres
3Salles de bain
0Vente Maison/villa 4 pièces
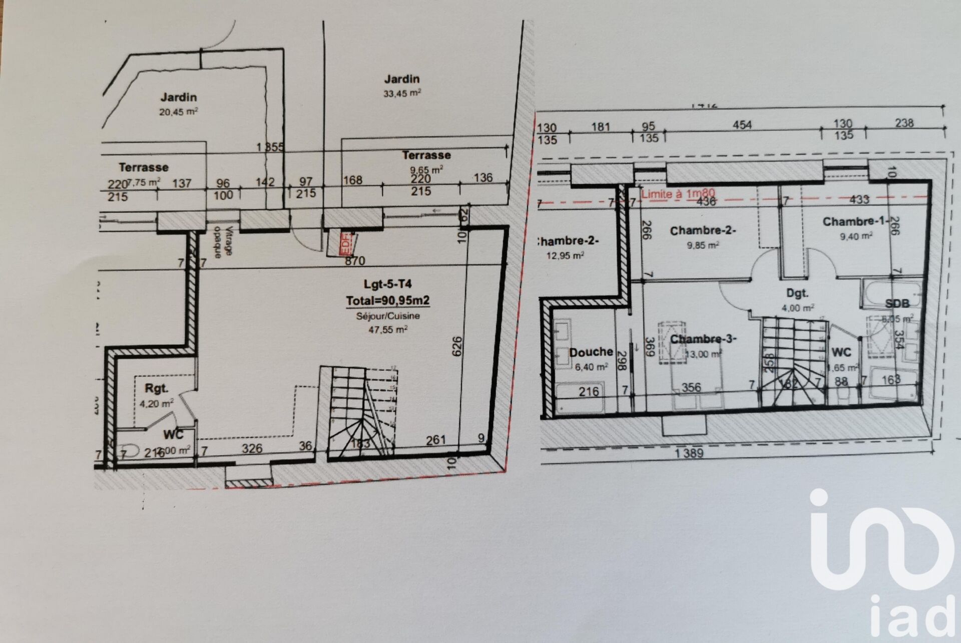
Iad France - Thibault Geldhof vous propose : Neuville-en-Ferrain – Quartier de l’Europe Située dans un environnement calme et recherché, cette maison de 87 m² habitables bâtie sur une parcelle de 172 m² offre un cadre de vie idéal. Au rez-de-chaussée, vous profiterez d’un salon-séjour lumineux avec cheminée à insert, d’une cuisine équipée fonctionnelle, d’un WC indépendant et d’un garage attenant avec espace buanderie. L’étage dessert 3 chambres spacieuses et une salle de bains familiale. À l’extérieur, une grande terrasse en bois ainsi qu'un jardin orienté Nord-Est vous permettront de profiter des beaux jours, complétés par un abri de jardin récent. Huisseries PVC double vitrage, combles isolés récemment, domotique pour les persiennes de façade, adoucisseur d’eau et chauffage mixte bois / électrique viennent renforcer le confort. Selon la nouvelle méthode de calcul du DPE, applicable au 1er Janvier 2026, ce bien actuellement classé D sera reclassé en C. Cette évolution est consultable sur le site officiel de l'ADEME. Proche écoles, transports, cabinets médicaux et centre commercial Promenade de Flandre, avec accès rapide à l’autoroute. À visiter sans tarder ! Honoraires d'agence à la charge du vendeur. Information d'affichage énergétique sur ce bien : classe ENERGIE D indice 193 et classe CLIMAT B indice 6. Les informations sur les risques auxquels ce bien est exposé, y compris l'obligation légale de débroussaillement, sont disponibles sur le site Géorisques : http://www.georisques.gouv.fr. La présente annonce immobilière a été rédigée sous la responsabilité éditoriale de M Thibault Geldhof mandataire indépendant en immobilier (sans détention de fonds), agent commercial de la SAS I@D France immatriculé au RSAC de LILLE METROPOLE sous le numéro 933287419, titulaire de la carte de démarchage immobilier pour le compte de la société I@D France SAS.
À proximité
Recherche des commodités à proximité...
Détails de l'annonce
Localisation
Ville
Neuville-en-Ferrain
Pays
FR
Diagnostics / Énergie
Diagnostic DPE
193
Diagnostic GES
6
Surfaces / Pièces / Composition
Nombre d’étages
2
Chauffage et diagnostics
Diagnostic de performance énergétique (DPE)
a
b
c
d
e
f
g
Indice d'émission de gaz à effet de serre (GES)
a
b
c
d
e
f
g
