Type
Bien immobilierTarif
248 000 €Chambres
3Salles de bain
0Vente Maison traditionnelle 4 pièces
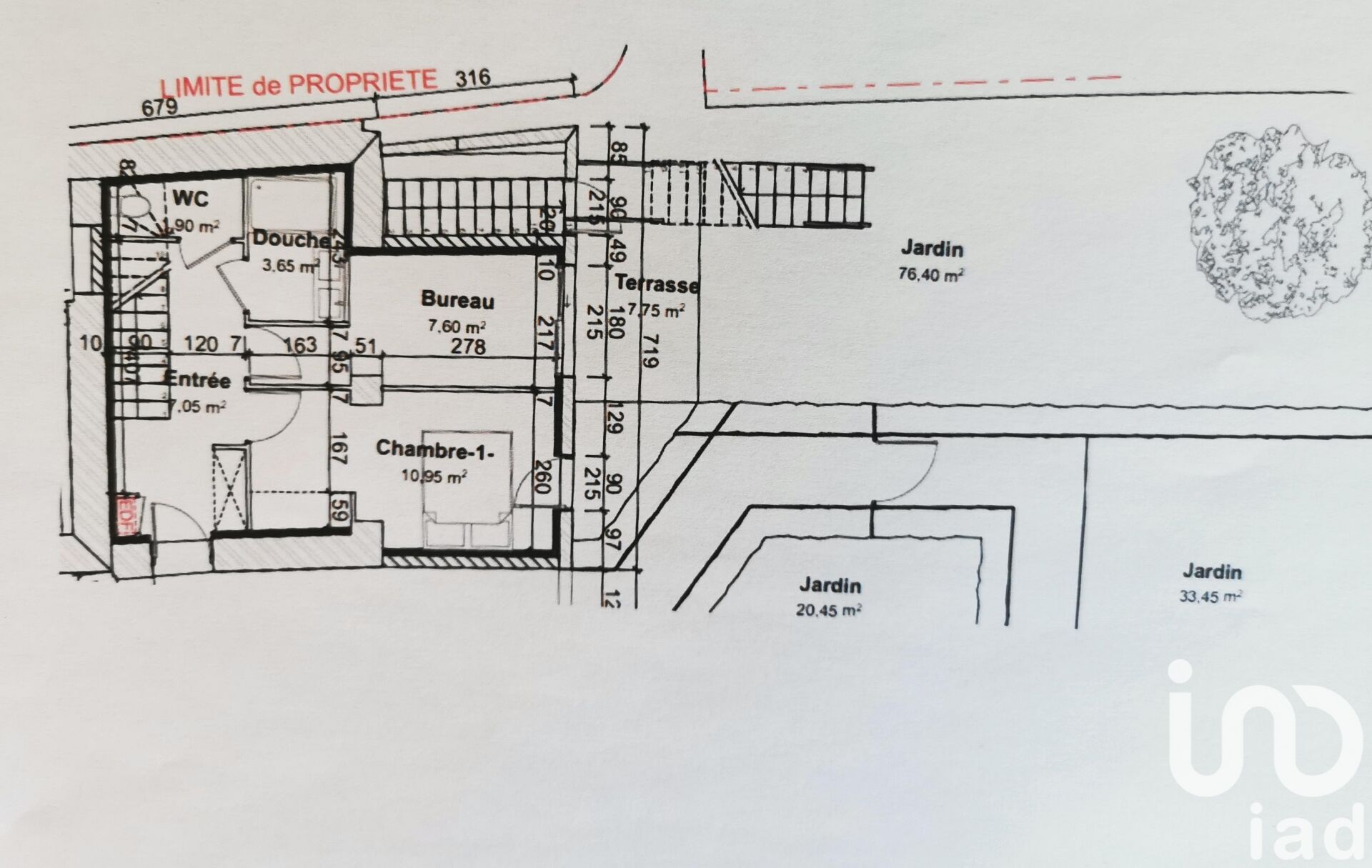
Iad France - Angélique Hallot vous propose : EN EXCLUSIVITE SUR LA COMMUNE DE ST ALBAN DU RHONE ! Venez découvrir cette maison en rénovation complète de 90 m² avec extérieur de 84 m² et stationnement. Elle se compose au rez-de-jardin de 2 chambres de 11 m² environ, d'une salle d'eau et d'un WC. Au premier, une pièce à vivre de 40.50 m², et une grande chambre parentale de 15 m². Au besoin, il est possible de créer une chambre supplémentaire. Pour votre confort, Chauffage climatisation réversible. Une place de stationnement est disponible avec ce lot. Petite copropriété avec faible charge. Vous cherchez un bien avec une vue imprenable sur le Rhône et le Pilat au cOEur du village. Un logement de charme rénové avec goût. Ce projet vous séduira forcement ! CONTACTEZ MOI RAPIDEMENT pour découvrir votre prochain lieu d’épanouissement à la campagne ! Attention : Certaines photos ne sont pas contractuelles. Honoraires d'agence à la charge du vendeur. Information d'affichage énergétique sur ce bien : classe ENERGIE B indice 86 et classe CLIMAT A indice 2. Les informations sur les risques auxquels ce bien est exposé, y compris l'obligation légale de débroussaillement, sont disponibles sur le site Géorisques : http://www.georisques.gouv.fr. La présente annonce immobilière a été rédigée sous la responsabilité éditoriale de Mme Angélique Hallot mandataire indépendant en immobilier (sans détention de fonds), agent commercial de la SAS I@D France immatriculé au RSAC de VIENNE sous le numéro 883253106, titulaire de la carte de démarchage immobilier pour le compte de la société I@D France SAS.
À proximité
Recherche des commodités à proximité...
Détails de l'annonce
Localisation
Ville
Saint-Clair-du-Rhône
Pays
FR
Diagnostics / Énergie
Diagnostic DPE
86
Diagnostic GES
2
Chauffage et diagnostics
Diagnostic de performance énergétique (DPE)
a
b
c
d
e
f
g
Indice d'émission de gaz à effet de serre (GES)
a
b
c
d
e
f
g
