Type
Bien immobilierTarif
260 000 €Chambres
4Salles de bain
0Vente Pavillon 6 pièces
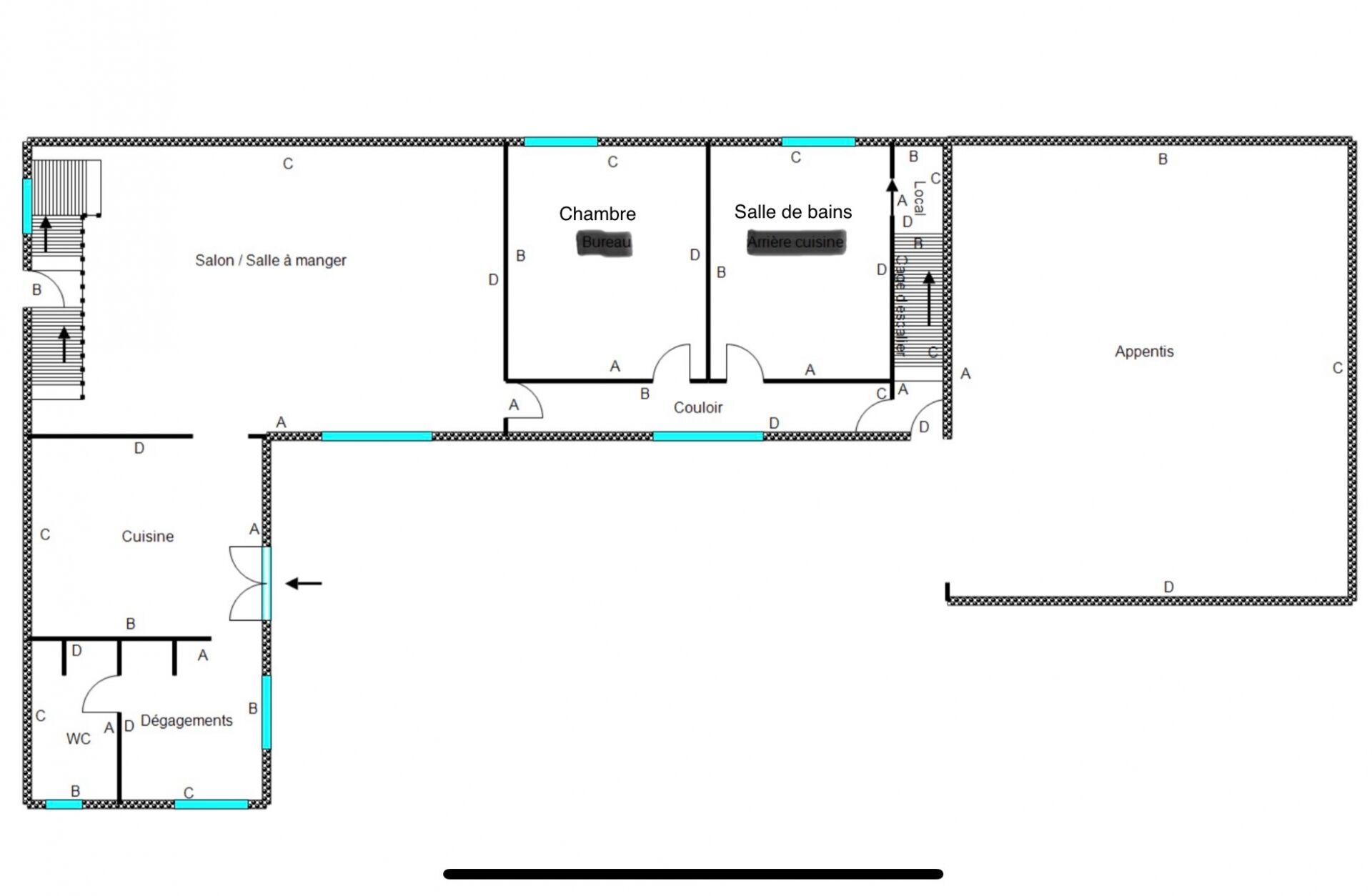
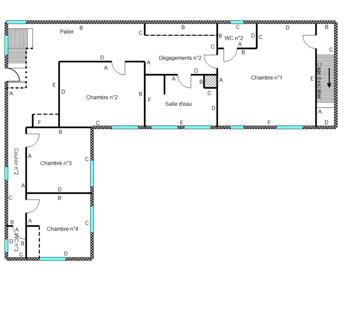
Iad France - Cindy Berthe vous propose : Pavillon, habitable de plain pied offrant de très belles prestations et de beaux volumes. Rez-de chaussée : - séjour lumineux de 30 m² offrant la possibilité de créer aisément un espace salon et salle à manger distincts et spacieux, cette pièce de vie peut être prolongée par la véranda chauffée de 18 m² donnant sur le jardin - cuisine moderne et équipée donnant elle même sur la véranda - Suite parentale avec douche et baie vitrée. -wc indépendant Al'étage : un palier dessert 3 belles chambres, une salle d’eau moderne (baignoire + douche + double vasque) et un toilette. Confort & économies : -Chauffage : panneaux solaires 16 panneaux photovoltaïques (orientation Sud, garantie), pompe à chaleur et insert. -PVC double vitrage - DPE C / GES A (Suite à la Modification de la méthode de calcul des DPE applicable à partir du 1er janvier 2026 le DPE passera en B) Extérieur sans vis-à-vis : Le ravalement vient d'etre refait ainsi que les gouttières. terrasse de 14 m², une pergola de 4x4, un chalet et dépendance bois avec billard et SPA. - Sous-sol total en partie aménagée idéal pour en faire une salle de sport ou de réception. -Garage traversant pour deux véhicules de 35 m². Maison complète, moderne et fonctionnelle, sans travaux, rare sur le secteur ! Vous n'aurez rien à faire si ce n'est poser vos valises. Honoraires d'agence à la charge du vendeur. Information d'affichage énergétique sur ce bien : classe ENERGIE B indice 109 et classe CLIMAT A indice 4. Les informations sur les risques auxquels ce bien est exposé, y compris l'obligation légale de débroussaillement, sont disponibles sur le site Géorisques : http://www.georisques.gouv.fr. La présente annonce immobilière a été rédigée sous la responsabilité éditoriale de Mme Cindy Berthe mandataire indépendant en immobilier (sans détention de fonds), agent commercial de la SAS I@D France immatriculé au RSAC de AMIENS sous le numéro 949654354, titulaire de la carte de démarchage immobilier pour le compte de la société I@D France SAS.
À proximité
Recherche des commodités à proximité...
Détails de l'annonce
Localisation
Ville
Breteuil
Pays
FR
Diagnostics / Énergie
Diagnostic DPE
109
Diagnostic GES
4
Surfaces / Pièces / Composition
Nombre d’étages
2
Chauffage et diagnostics
Diagnostic de performance énergétique (DPE)
a
b
c
d
e
f
g
Indice d'émission de gaz à effet de serre (GES)
a
b
c
d
e
f
g
