Type
Bien immobilierTarif
430 000 €Chambres
0Salles de bain
0Vente Immeuble 180 m²
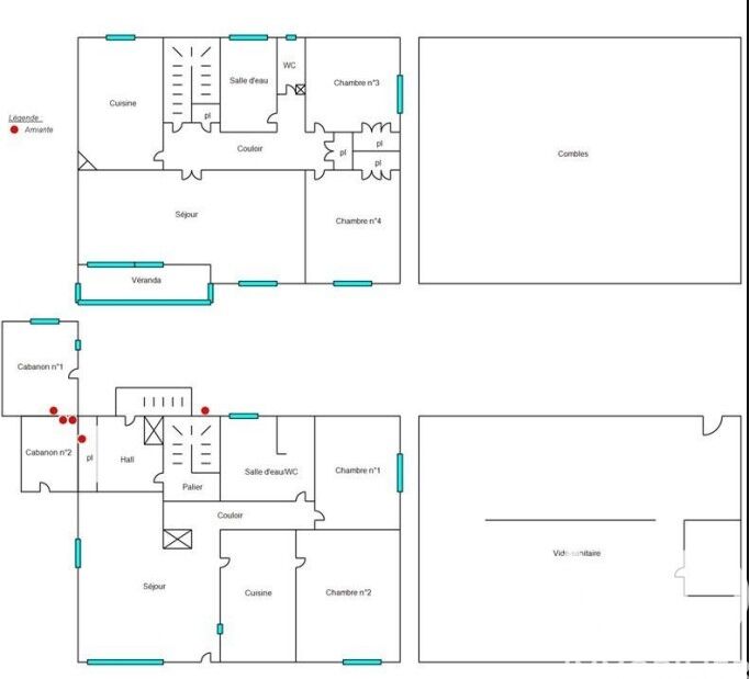
Iad France - Valérie Bazillier vous propose : 430 000€ MAISON 2x T3 Immeuble de rapport 4 faces à Le Soler (66270) 180 m²environ avec dépendances sur Terrain de 612 m² vue dégagée RARE Immeuble 2 x T3-Le Soler-Idéal investisseur ! un loué, un libre au RDC-aucun travaux-terrain piscinable et possibilité construction beau garage * Rez-de-chaussée : -entrée salon séjour très lumineux avec 1 porte-fenêtre coulissante, porte vitrée et fenêtre basculante sud et sud-ouest -cuisine équipée communicante salon / séjour -couloir de desserte partie nuit et la salle d'eau + WC - chambre 1 (12,4 m²) -chambre 2 (14.20 m²) -1 salle d'eau + WC -1 cabanon à l'extérieur -1 grande terrasse en Lauze catalane accès PMR et jardin clos paysagé avec deux portails-5 places de parking possibles * 1ier étage : loué 706€ / mois -chemin d'accès et escalier indépendant -salon avec cheminée / séjour très lumineux plein sud avec véranda et vue sur le canigou -grande chambre avec placard (14.20 m²) -chambre avec placard (10.80 m²) -1 cuisine équipée indépendante -1 salle d'eau à l'italienne -1 WC indépendant -1 hall - couloir avec placard SES ATOUTS : Situé dans un secteur résidentiel calme et rechercher du Soler, à seulement 2 minutes à pied des transports en commun et des commodités. Crèche, Ecole maternelle, primaire et collège à deux pas. Cet immeuble de rapport 4 faces offre toutes les possibilités de 2 T3 dont l'un est déjà loué au 1ier étage, et la possibilité de louer le RDC en T3 ou en local commercial. Possibilité de rétablir un accès direct (cloisons modifiables avec carrelage de liaison complet sous cloison) du rez-de-chaussée vers l'étage pour un projet familial. Ce bien représente une opportunité d'investissement solide, alliant rentabilité immédiate (appartement loué) et d'occupation personnelle (appartement libre au RDC). Aucun travaux majeurs n'est à prévoir, l'ensemble est en parfait état d'entretien. L'emplacement, la configuration aux portes de Perpignan et le bon niveau de prestations confèrent à cet immeuble une valeur patrimoniale stable et durable dans le contexte du marché du Soler. Caractéristiques : Chauffage clim réversible avec split au RDC et chauffage gainable réversible au 1ier étage. Equipement fenêtres double vitrage et volets roulants automatiques. Plomberie, Isolation, électricité refaite. Toiture et façades en bon état. Sous-sol-vide sanitaire de 90 m² permettant du stockage. Détails du prix : Prix de vente : 430 000€ soit Prix au m² 2388€ / m² Prix honoraires : Honoraires TTC à la charge du vendeur : 17 200€ (soit 4%) Performances énergétiques (DPE) C Indice d'émission de gaz à effet de serre (GES) A Honoraires d'agence à la charge du vendeur. Information d'affichage énergétique sur ce bien : classe ENERGIE C indice 113 et classe CLIMAT A indice 4. Les informations sur les risques auxquels ce bien est exposé, y compris l'obligation légale de débroussaillement, sont disponibles sur le site Géorisques : http://www.georisques.gouv.fr. La présente annonce immobilière a été rédigée sous la responsabilité éditoriale de Mme Valérie Bazillier mandataire indépendant en immobilier (sans détention de fonds), agent commercial de la SAS I@D France immatriculé au RSAC de Perpignan sous le numéro 488926338, titulaire de la carte de démarchage immobilier pour le compte de la société I@D France SAS.
Cette semaine
Cette annonce est récente
À proximité
Recherche des commodités à proximité...
Détails de l'annonce
Localisation
Ville
Le Soler
Pays
FR
Diagnostics / Énergie
Diagnostic DPE
113
Diagnostic GES
4
Chauffage et diagnostics
Diagnostic de performance énergétique (DPE)
a
b
c
d
e
f
g
Indice d'émission de gaz à effet de serre (GES)
a
b
c
d
e
f
g
