Trouver...

Language: FR

Devise: EUR

Vente Garage mecanique à Louvignies-Quesnoy 240 000 €

Publié le 3 September 2025
Type
Bien immobilier
Tarif
240 000 €
Chambres
0
Salles de bain
0

Vente Garage mecanique à Louvignies-Quesnoy 240 000 €

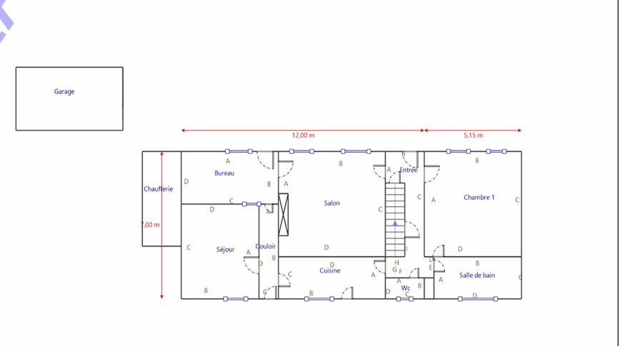
Immeuble de rapport – Atelier automobile + habitation Surface terrain : 2 400 m² Bâti : Atelier de réparation automobile (activité en place) Longères de 130 m² habitables Locataire en place depuis 2013, bail pérenne avec loyers réguliers Revenus locatifs : 1 200 € / mois, soit 14 400 € / an (meme prix depuis 2013) Loyer à indexer, offrant une marge de progression Rentabilité brute : 6 % sur la base d’un prix de vente de 240 000 € Atouts : Locataire sérieux et fiable Ensemble immobilier mixte (professionnel + habitation) Investissement pérenne, rendement immédiat et potentiel d’optimisation 👉 Une opportunité d’investissement solide, combinant sécurité locative et bonne rentabilité. https://errial.georisques.gouv.fr / #/ Annonce rédigée sous la responsabilité de Jean-Marie RICHE E. I enregistré sous le N°823153556 – RSAC de Valenciennes Agent commercial indépendant agissant pour le compte de l’agence DLCFRANCEIMMO carte professionnelle CPI 59072024000000003 en tant qu’entreprise indépendante. Contactez-moi : Tél : 06 67 99 09 62 jmrichedlc@gmail.com Honoraire à la charge : vendeur.

À proximité

Recherche des commodités à proximité...

Détails de l'annonce

Localisation

Ville
Louvignies-Quesnoy
Pays
FR

Diagnostics / Énergie

Diagnostic DPE
414
Diagnostic GES
80

Surfaces / Pièces / Composition

Nombre d’étages

Chauffage et diagnostics

Diagnostic de performance énergétique (DPE)
a
b
c
d
e
f
g
Indice d'émission de gaz à effet de serre (GES)
a
b
c
d
e
f
g
Rappelez-moi