Trouver...

Language: FR

Devise: EUR

Vente Appartement 4 pièces

Publié le 10 October 2025
Type
Bien immobilier
Tarif
700 000 €
Chambres
3
Salles de bain
0

Vente Appartement 4 pièces

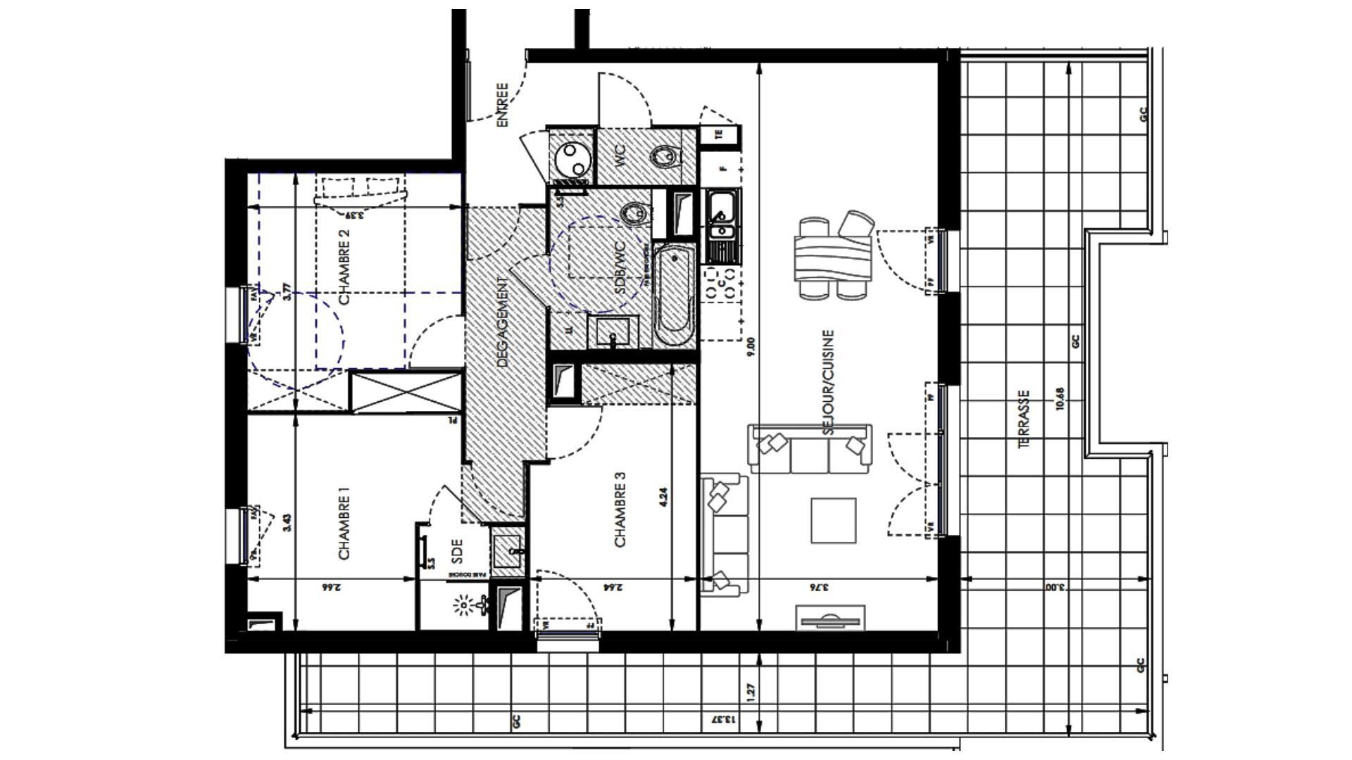
Iad France - Sarah Rozière (06 99 86 19 42) vous propose : Appartement T4 avec terrasse à La Ciotat. Située avenue de la Marine à La Ciotat, la résidence La Carmele allie charme provençal et architecture contemporaine. Entre Méditerranée et collines du Parc national des Calanques, cette adresse offre un cadre de vie rare, calme et ensoleillé, à proximité du centre-ville et des plages. Disponible 2027. Un appartement raffiné : Situé au 3 ème étage, cet appartement T4 de 88 m² environ habitables se prolonge par une terrasse de 42 m² environ. - Séjour / cuisine de 34 m² environ. - Trois chambres confortables. - Salle de bains moderne et WC séparé. - Annexe incluse : deux parkings. De belles prestations : - Chauffage des séjours par pompe à chaleur monosplit. - Chauffage électrique par panneaux rayonnants dans les chambres. - Volets roulants motorisés et menuiseries PVC gris clair. - Résidence sécurisée avec ascenseur et stationnements en sous-sol. L’art de vivre à La Ciotat : - À 5 minutes des plages et du vieux port. - Commerces, écoles et services accessibles à pied. - À proximité du Parc du Mugel et des Calanques de Figuerolles. - Accès rapide à l’A50 vers Marseille et Toulon. - Quartier résidentiel calme et verdoyant, idéal pour une résidence principale ou un pied-à-terre. N’hésitez pas à me contacter pour plus d’informations ou pour un accompagnement sur mesure. Honoraires d’agence à la charge du vendeur. Bien non soumis au DPE. Les informations sur les risques auxquels ce bien est exposé sont disponibles sur le site Géorisques : www.georisques.gouv.fr. La présente annonce immobilière a été rédigée sous la responsabilité éditoriale de Mlle Sarah Rozière EI (ID 83696), mandataire indépendant en immobilier (sans détention de fonds), agent commercial de la SAS I@D France immatriculé au RSAC de Clermont-Ferrand sous le numéro 978616993, titulaire de la carte de démarchage immobilier pour le compte de la société I@D France SAS. Retrouvez tous nos biens sur notre site internet. www.iadfrance.fr.

À proximité

Recherche des commodités à proximité...

Détails de l'annonce

Localisation

Ville
La Ciotat
Pays
FR

Surfaces / Pièces / Composition

Nombre d’étages
3
Étage
3

Chauffage et diagnostics

Diagnostic de performance énergétique (DPE)
a
b
c
d
e
f
g
Indice d'émission de gaz à effet de serre (GES)
a
b
c
d
e
f
g
Rappelez-moi