Type
Bien immobilierTarif
245 000 €Chambres
2Salles de bain
0Vente Appartement 4 pièces
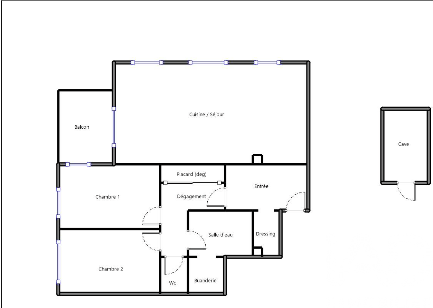
Iad France - Odile Movrel vous propose : RESIDENCE SECURISEE AVEC GARDIEN - 4 PIECES - 2 CHAMBRES - CAVE - PARKING PRIVATIF EXTERIEUR - PROCHE COMMODITE - AXE AUTOROUTIER - GARE. FRANCONVILLE / LE PLESSIS BOUCHARD (Ligne H, RER C) Appartement de 4 pièces, 3ème étage avec ascenseur, comprenant une entrée avec dressing, un espace de vie de 40 m² réunissant séjour et cuisine ouverte, avec accès direct au balcon. Un dégagement avec placards dessert l'espace nuit de 2 Chambres, une salle de bain et buanderie, un wc séparé. Une balcon, une cave, un parking complètent l'ensemble. À proximité immédiate des écoles, des commerces, Gare de Franconville / Le Plessis Bouchard à 10 minutes. La presente annonce immobiliere vise 3 lots situés dans une copropriété de 1173 lots au total et ne faisant l'objet d'aucune procédure en cours citée à l'article L. 721-1 du code de la construction et de l'habitation. Montant moyen mensuel de charges déclaré par le vendeur : 313.78€ par mois (soit 3765.36 € annuel). Honoraires d'agence à la charge du vendeur. Information d'affichage énergétique sur ce bien : classe ENERGIE E indice 233 et classe CLIMAT E indice 50. Les informations sur les risques auxquels ce bien est exposé, y compris l'obligation légale de débroussaillement, sont disponibles sur le site Géorisques : http://www.georisques.gouv.fr. La présente annonce immobilière a été rédigée sous la responsabilité éditoriale de M Odile Movrel mandataire indépendant en immobilier (sans détention de fonds), agent commercial de la SAS I@D France immatriculé au RSAC de PONTOISE sous le numéro 879555720, titulaire de la carte de démarchage immobilier pour le compte de la société I@D France SAS.
Cette semaine
Cette annonce est récente
À proximité
Recherche des commodités à proximité...
Détails de l'annonce
Localisation
Ville
Le Plessis-Bouchard
Pays
FR
Diagnostics / Énergie
Diagnostic DPE
233
Diagnostic GES
50
Surfaces / Pièces / Composition
Nombre d’étages
8
Étage
3
Chauffage et diagnostics
Diagnostic de performance énergétique (DPE)
a
b
c
d
e
f
g
Indice d'émission de gaz à effet de serre (GES)
a
b
c
d
e
f
g
