Type
Bien immobilierTarif
299 900 €Chambres
2Salles de bain
0Vente Appartement 3 pièces
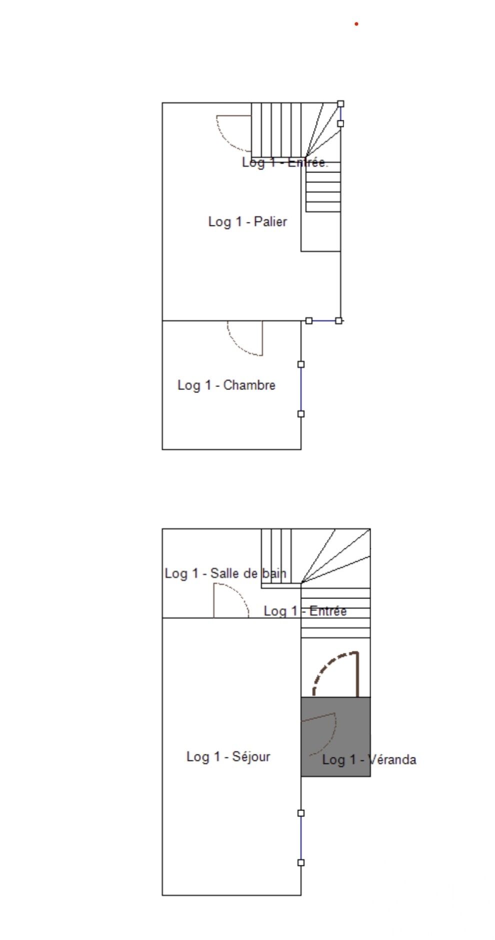
Iad France - Nadia Hadjami vous propose : Venez visiter ce bel appartement lumineux, situé en rez-de-chaussée dans une résidence fermée et sécurisée. Il se compose de : - Un séjour lumineux avec cuisine ouverte et aménagée, - Deux chambres confortables, - Une salle de bain, - Un toilette indépendant, - Un espace bureau, idéal pour le télétravail ou les études, - Une cave pour plus de rangement, - Et une place de parking extérieure. Appartement fonctionnel et agréable à vivre, idéal pour un premier achat ou un jeune couple. Ne tardez pas à venir le découvrir, il saura vous séduire par sa luminosité et son agencement ! La presente annonce immobiliere vise 3 lots situés dans une copropriété de 326 lots au total et ne faisant l'objet d'aucune procédure en cours citée à l'article L. 721-1 du code de la construction et de l'habitation. Montant moyen mensuel de charges déclaré par le vendeur : 100€ par mois (soit 1200 € annuel). Honoraires d'agence à la charge du vendeur. Information d'affichage énergétique sur ce bien : classe ENERGIE D indice 155 et classe CLIMAT D indice 33. Les informations sur les risques auxquels ce bien est exposé, y compris l'obligation légale de débroussaillement, sont disponibles sur le site Géorisques : http://www.georisques.gouv.fr. La présente annonce immobilière a été rédigée sous la responsabilité éditoriale de Mme Nadia Hadjami mandataire indépendant en immobilier (sans détention de fonds), agent commercial de la SAS I@D France immatriculé au RSAC de MELUN sous le numéro 797670155, titulaire de la carte de démarchage immobilier pour le compte de la société I@D France SAS.
À proximité
Recherche des commodités à proximité...
Détails de l'annonce
Localisation
Ville
Bièvres
Pays
FR
Diagnostics / Énergie
Diagnostic DPE
155
Diagnostic GES
33
Surfaces / Pièces / Composition
Nombre d’étages
4
Chauffage et diagnostics
Diagnostic de performance énergétique (DPE)
a
b
c
d
e
f
g
Indice d'émission de gaz à effet de serre (GES)
a
b
c
d
e
f
g
