Type
Bien immobilierTarif
325 000 €Chambres
3Salles de bain
1Appartement
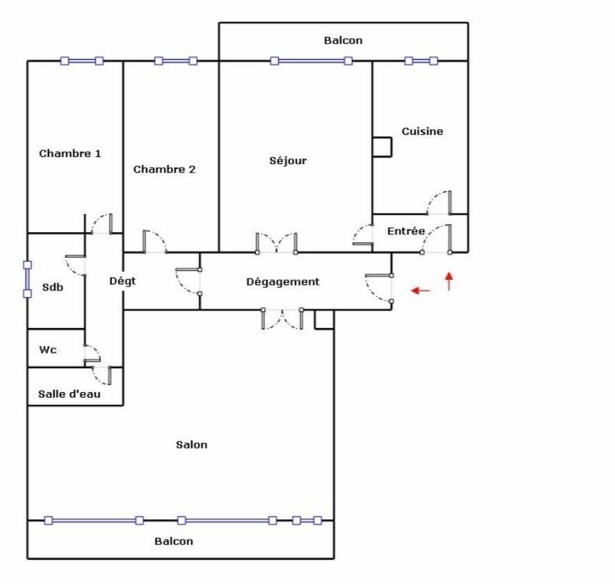
13830 ROQUEFORT-LA-BEDOULE - CENTRE VILLE - ENTIEREMENT REFAIT - APPARTEMENT DUPLEX 4 PIECES - 3 CHAMBRES - 100.0M² - TERRASSE 45.0M² EXPOSER PLEIN SUD - A SAISIR RAPIDEMENT
effiCity, l'agence qui estime votre bien en ligne, vous propose ce superbe appartement situé au cœur du centre-ville de Roquefort-la-Bédoule.
Venez découvrir ce charmant appartement de 100.0m² au 1er et dernier étage, offrant un cadre de vie unique et chaleureux. Dès l'entrée, vous serez séduit par le caractère authentique de ce bien. Sa pièce de vie spacieuse, ouverte sur une cuisine équipée, vous disposer de 2 chambres avec placard de rangement, 1 wc indépendant, une salle de bain avec DOUCHE ET BAIGNOIRE, BOUBLE VASQUE. A l'étage une magnifique SUITE PARENTALE AVEC DOUCHE ET DRESSING.
Pour compléter ce superbe bien une terrasse de 45.0m². Parfait pour profiter des journées ensoleillées en extérieur.
L'appartement est entièrement rénover ELECTRICITE - CLIMATISATION DANS TOUTES LES PIECES - VOLETS ROULANTS - DOUBLE VITRAGE - CUISINE ENTIEREMENT EQUIPEE - TERRASSE DE 45M² - TOITURE ET FACADE REFAITE.
Vous n'avez plus qu'à poser vos meubles. (photos meublés virtuellement, mais les volumes, matériaux sont identiques).
Ne manquez pas cette opportunité rare d'acquérir un appartement d'exception à Roquefort-la-Bédoule, offrant confort, espace et tranquillité. Contactez-moi dès maintenant pour organiser une visite et laissez-vous charmer par ce bien unique. N'hésitez pas à me contacter pour plus d'informations. Jessica IMPAGNATIELLO 06 24 05 08 81 ou par mail: jimpagnatiello@efficity.com
Les informations sur les risques auxquels ce bien est exposé sont disponibles sur le site Georisque : georisques. gouv. fr
Jessica Impagnatiello - EI - est Agent Commercial mandataire en immobilier, immatriculé au Registre Spécial des Agents Commerciaux du Tribunal de Commerce de Marseille sous le n°877878397.
Siège social du mandant : effiCity, 48 avenue de Villiers - 75017 PARIS - Société par Actions Simplifiée, société au capital de 132 373,05 euros, immatriculée au RCS Paris 497 617 746 et titulaire de la Carte professionnelle CPI 7501 2015 000 002 025 - CCI Paris IDF - Caisse de Garantie : GALIAN Assurances 89 rue de la Boétie 75008 Paris
Ce mois
Cette annonce est récente
À proximité
Recherche des commodités à proximité...
Détails de l'annonce
Finances / Mandat / Références
Charges
€
Localisation
Ville
Roquefort La Bedoule
Pays
France
Surfaces / Pièces / Composition
Surface habitable
100 m²
Nombre de pièces
4
Nombre de chambres
3
Nombre de balcons
Caractéristiques / Équipements
Ascenseur
Digicode
Interphone
Piscine
Cave
Gardien
Aménagement handicapés
Diagnostics / Énergie
Diagnostic DPE
B
Diagnostic GES
A
Chauffage / Énergie
Type de chauffage
Type : individuel - Énergie : électricité - Mécanisme : Climatisation réversible
Chauffage et diagnostics
Diagnostic de performance énergétique (DPE)
a
b
c
d
e
f
g
Indice d'émission de gaz à effet de serre (GES)
a
b
c
d
e
f
g
