Trouver...

Language: FR

Devise: EUR

Type
Bien immobilier
Tarif
345 000 €
Chambres
3
Salles de bain
0

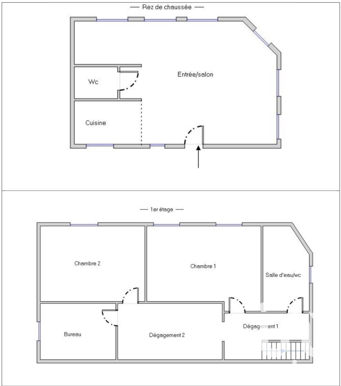
Vente Maison/villa 5 pièces

Iad France - Myriam Dao vous propose : * Maison de 108 m² / 3 chambres / Combles aménageables / Terrain de 173 m² * Au cOEur du village de Piscop, niché dans un écrin de verdure, venez découvrir cette agréable maison entièrement rénovée et parfaitement agencée, celle-ci vous offre : - Au rez-de-chaussée : Un vaste séjour de 47 m² avec la possibilité de créer une 4ème chambre, une cuisine ménagée et WC séparés. - A l'étage : palier desservant deux chambres spacieuses, un bureau ou chambre d'enfant, une salle d'eau avec WC. -Combles aménageables en une grande chambre ! * Les atouts de la maison : son agencement, sa vaste pièce de vie de 47 m², ravalement et isolation récents, cave, combles aménageables Fenêtres en double vitrage PVC, DPE : D * . Honoraires d'agence à la charge du vendeur. Information d'affichage énergétique sur ce bien : classe ENERGIE D indice 189 et classe CLIMAT D indice 39. Les informations sur les risques auxquels ce bien est exposé, y compris l'obligation légale de débroussaillement, sont disponibles sur le site Géorisques : http://www.georisques.gouv.fr. La présente annonce immobilière a été rédigée sous la responsabilité éditoriale de Mme Myriam Dao mandataire indépendant en immobilier (sans détention de fonds), agent commercial de la SAS I@D France immatriculé au RSAC de Pontoise sous le numéro 909919896, titulaire de la carte de démarchage immobilier pour le compte de la société I@D France SAS.

Détails de l'annonce

Localisation

Ville
Piscop
Pays
FR

Diagnostics / Énergie

Diagnostic DPE
189
Diagnostic GES
39

Chauffage et diagnostics

Diagnostic de performance énergétique (DPE)
a
b
c
d
e
f
g
Indice d'émission de gaz à effet de serre (GES)
a
b
c
d
e
f
g
Rappelez-moi
Nos partenaires