Type
Bien immobilierTarif
540 000 €Chambres
3Salles de bain
0Vente Duplex 4 pièces
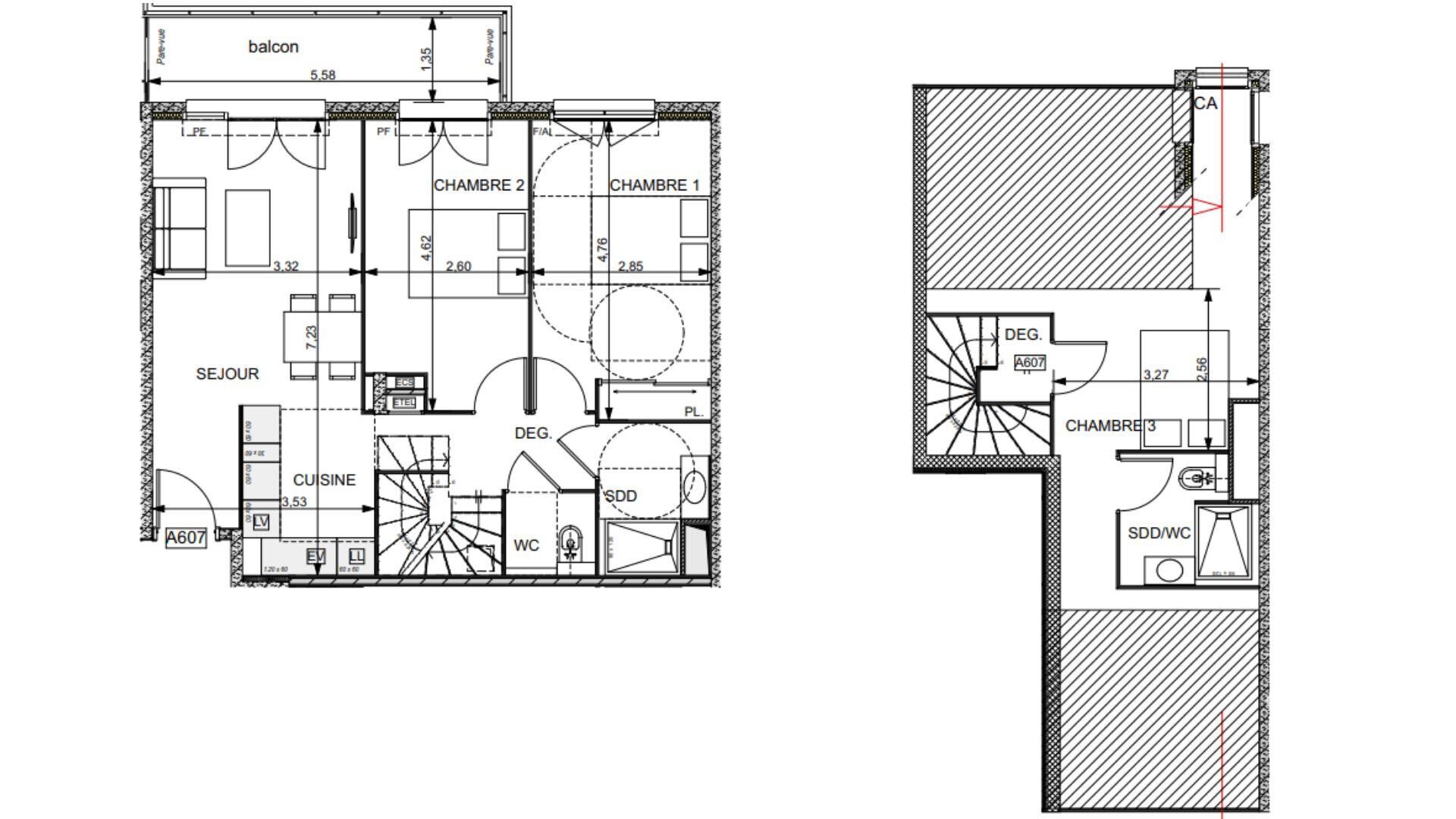
Iad France - Pierre Magerand (06 37 21 92 42) vous propose : Duplex 4 pièces avec balcon à Nice. Située rue du Docteur Ardoin à Nice, la résidence Nissa’Nova s’intègre dans un quartier central en pleine évolution. À proximité immédiate des commerces, des transports et du centre-ville, cette adresse offre un cadre de vie pratique et agréable, à quelques minutes du port et des plages. Disponible 2026. Un appartement raffiné : Situé au 6 ème étage, cet appartement 4 pièces en duplex de 78 m² environ habitables se prolonge par un balcon de 8 m² environ. - Séjour / cuisine de 23 m² environ. - Trois chambres confortables. - Deux salles d’eau modernes. - Annexe incluse : un parking intérieur. De belles prestations : - Chauffage individuel électrique avec thermostat programmable. - Volets roulants motorisés et menuiseries PVC double vitrage. - Résidence sécurisée avec digicode, visiophone et ascenseur. L’art de vivre à Nice : - Gare Nice-Riquier et tramway accessibles à pied. - Commerces, écoles et services à proximité immédiate. - À quelques minutes du port, de la place du Pin et du Vieux-Nice. N’hésitez pas à me contacter pour plus d’informations ou pour un accompagnement sur mesure. Honoraires d’agence à la charge du vendeur. Bien non soumis au DPE. Les informations sur les risques auxquels ce bien est exposé sont disponibles sur le site Géorisques : www.georisques.gouv.fr. La présente annonce immobilière a été rédigée sous la responsabilité éditoriale de M. Pierre Magerand EI (ID 86098), mandataire indépendant en immobilier (sans détention de fonds), agent commercial de la SAS I@D France immatriculé au RSAC de Cusset sous le numéro 938729175, titulaire de la carte de démarchage immobilier pour le compte de la société I@D France SAS. Retrouvez tous nos biens sur notre site internet. www.iadfrance.fr.
À proximité
Recherche des commodités à proximité...
Détails de l'annonce
Localisation
Ville
Nice
Pays
FR
Surfaces / Pièces / Composition
Nombre d’étages
6
Étage
6
Chauffage et diagnostics
Diagnostic de performance énergétique (DPE)
a
b
c
d
e
f
g
Indice d'émission de gaz à effet de serre (GES)
a
b
c
d
e
f
g
