Dans Provins maison 3 chambres
Type
Bien immobilierTarif
115 000 €Chambres
3Salles de bain
1Dans Provins maison 3 chambres
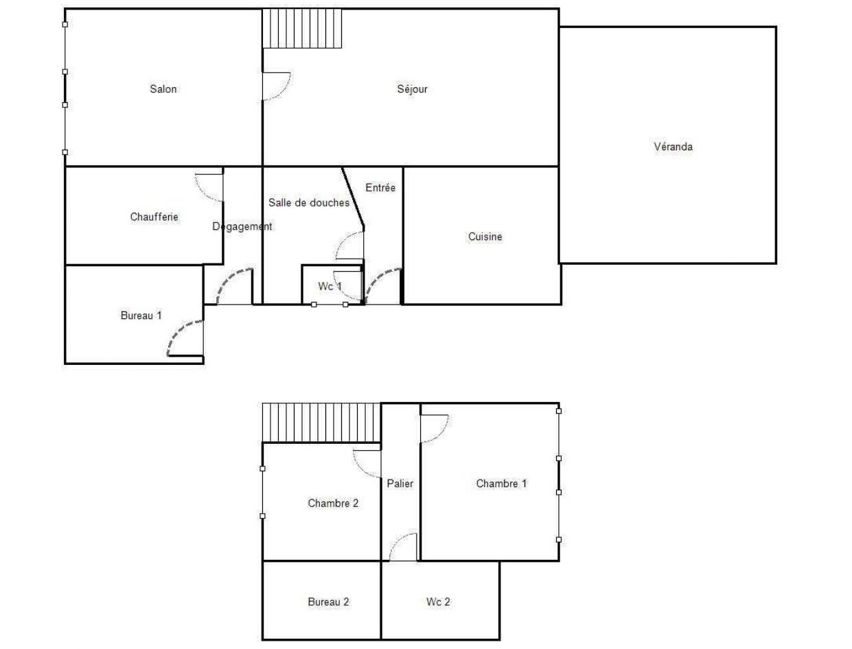
Dans Provins , quartier calme, maison de ville orientée plein sud comprenant entrée, cuisine équipée ouverte sur séjour, salle de bains, wc et à l'étage 3 chambres, salle d'eau, wc. Grande cave voutée carrelée pouvant servir de deuxième séjour, de bureau ou salle de cinéma. Isolation extérieur refaite. Double vitrage, Tout à l'égout, Idéale première acquisition, ou investissement locatif. Pour le prix d'un appartement offrez vous une jolie maison.
Annonce publiée par Franck Astesana (EI) votre agent commercial en immobilier LF immo à Provins, 77160 immatriculé au RSAC de MELUN sous le n°422 911 248 000 33. Consultez nos tarifs sur le site LF immo.
Les informations sur les risques auxquels ce bien est exposé sont disponibles sur le site Géorisques : www.georisques.gouv.fr.
Annonce publiée par Franck Astesana (EI) votre agent commercial en immobilier LF immo à Provins, 77160 immatriculé au RSAC de MELUN sous le n°422 911 248 000 33. Consultez nos tarifs sur le site LF immo.
Les informations sur les risques auxquels ce bien est exposé sont disponibles sur le site Géorisques : www.georisques.gouv.fr.
À proximité
Recherche des commodités à proximité...
Détails de l'annonce
Caractéristiques / Équipements
Mandat exclusif
Oui
Localisation
Ville
Provins
Pays
France
Diagnostics / Énergie
Diagnostic DPE
D
Diagnostic GES
B
Consommation en énergie (kWh/m²/an)
214
Émissions de GES
8
Version du DPE
DPE version 07-2021
DPE coût min. estimé
1150.0
DPE coût max. estimé
1800.0
DPE année de référence conso
01/01/2023
Finances / Mandat / Références
Honoraires vendeur
€
Date du mandat
Astesana
Identifiant agence
LFIMMO
Prénom mandataire
Franck
Raison sociale mandataire
Auto-entrepreneur
CP mandataire
77160
Ville mandataire
Provins
Téléphone mandataire
0622316960
Code négociateur
116054
Identifiant technique (code)
fr076080
Honoraires à la charge de
2 €
Prix hors honoraires acquéreur
115000.0 €
Surfaces / Pièces / Composition
Surface terrain (m²)
m²
Chauffage / Énergie
Type de chauffage
électrique
Cuisine
Type de cuisine
coin cuisine équipé
Photos / Médias / Visites
Contact à afficher
Franck Astesana
Chauffage et diagnostics
Diagnostic de performance énergétique (DPE)
a
b
c
d
e
f
g
Indice d'émission de gaz à effet de serre (GES)
a
b
c
d
e
f
g
