Type
Bien immobilierTarif
395 000 €Chambres
6Salles de bain
3Maison
86170 NEUVILLE-DE-POITOU – SECTEUR BELLEFOIS – SECTEUR CALME ET SANS VIS-À-VIS – MAISON D'UNE SURFACE HABITABLE DE 209 M² – 4 CHAMBRES DONT 1 ESPACE PARENTAL – SÉJOUR 46 M² + CUISINE SÉPARÉE 46 M² – DEUX POÊLES À BOIS – ANNEXE TRANSFORMÉE EN SECOND LOGEMENT – TERRASSE EXTÉRIEURE – DIVERSES DÉPENDANCES DONT GRANGE AVEC DEUX MEZZANINES – CAVE – TERRAIN 1 045 M² CLOS.
****** Cette propriété dispose d'une annexe aménagée en second logement, idéale pour de la location saisonnière ou de courte durée. ******
EffiCity, l'agence qui estime votre bien en ligne, vous propose sur la commune de Neuville-de-Poitou, secteur de Bellefois, une maison d'une surface habitable de 209 m² comprend 4 chambres dont un espace parental. Vous trouverez un séjour de 46 m² et une cuisine séparée de 31 m² et chacune avec son poêle à bois. Cette maison possède en extérieur une annexe aménagée en second logement avec deux chambres supplémentaires. Vous trouverez également en extérieurs diverses dépendances dont une grange avec deux mezzanines. Le terrain de 1 045 m² est clos.
Des travaux ont été effectués sur cette maison récemment :
- 2016 : Toiture annexe.
- 2017 : Chaudière gaz.
- 2018 : Toiture maison.
- 2023 : Mur de clôture extérieur.
- 2023 : Enduits murs extérieurs.
- 2025 : Aménagement de l'extérieur.
- 2025 : Remplacement de volets roulants.
La maison se compose de la manière suivante :
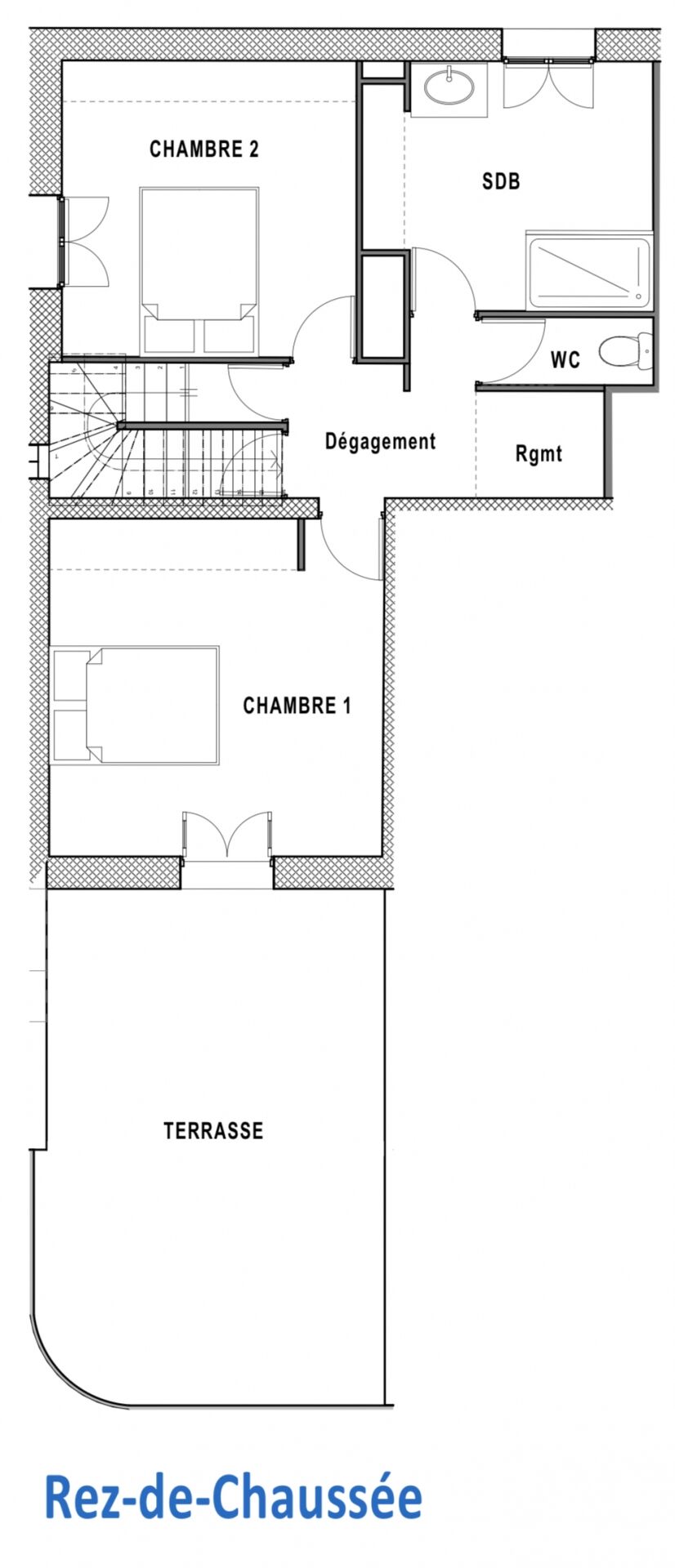
Au rez-de-chaussée :
- Une entrée n°1 (6 m²) avec l'escalier permettant l'accès à l'étage. Vous y trouverez des espaces de rangements.
- Une salle d'eau (8 m²) comprenant un meuble vasque, une douche, un sèche-serviettes et des toilettes sanibroyeur.
- Un dégagement (8 m²) où se trouve le poêle à bois qui donne sur la cuisine.
- Une première chambre (10,5 m²).
- Une cuisine (31 m²) aménagée et équipée. Vous y trouverez un accès sur l'extérieur.
- Des WC indépendants.
- Une buanderie (5 m²) qui était autrefois une salle d'eau.
- Un couloir/entrée n°2 (15 m²) avec accès sur l'extérieur et comprenant des espaces de rangements.
- Un séjour (46 m²) avec l'escalier permettant l'accès à l'espace parental. Vous y trouverez différents accès sur l'extérieur dont celui sur la terrasse.
À l'étage (côté entrée n°1) :
- Une seconde chambre (12 m²).
- Une troisième chambre (19 m²).
À l'étage (côté séjour) : Il s'agit de l'espace parental.
- Un palier (11,5 m²) aménagé en bureau.
- Des WC indépendants.
- Une salle d'eau (10,5 m²) comprenant un meuble double vasque, une douche et un sèche-serviettes.
- Une quatrième chambre (23,5 m²) avec un espace dressing.
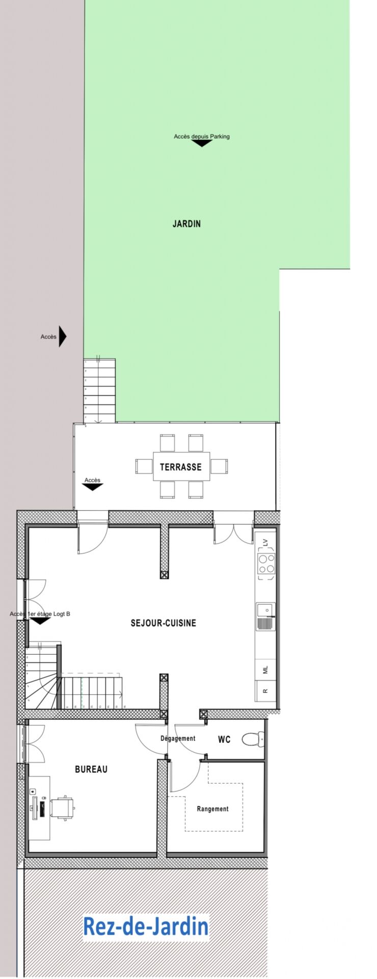
Concernant l'extérieur :
- Une annexe (68,5 m²) aménagée en second logement comprenant séjour, cuisine, deux chambres, salle d'eau et toilettes.
- Une cave.
- Une terrasse extérieure.
- Une grange (67,5 m²) avec deux mezzanines (60 m²)
- Un local de stockage (21 m²) pour le bois.
- Une buanderie (7 m²).
Informations complémentaires :
- Le système de chauffage est assuré par une chaudière gaz de ville. Vous trouverez deux poêles à bois (séjour + cuisine). Vous trouverez des radiateurs électriques en complément.
- Concernant le logement annexe, celui-ci est chauffé par un poêle à granulés et des radiateurs électriques.
- L'eau chaude est assurée par une chaudière gaz de ville.
- Les fenêtres sont en double vitrage et équipées de volets roulants et de volets battants.
- Le bien est raccordé à la fibre optique.
- Le bien est équipé d'un adoucisseur d'eau.
- Le bien est raccordé au système collectif des eaux usées.
Cadre calme et agréable, idéalement situé à Neuville-de-Poitou. À visiter rapidement.
Contactez LOUIS-EUGÈNE Morgan.
Les informations sur les risques auxquels ce bien est exposé sont disponibles sur le site Georisque : georisques. gouv. fr
Morgan Louis-Eugene - EI - est Agent Commercial mandataire en immobilier, immatriculé au Registre Spécial des Agents Commerciaux du Tribunal de Commerce de Poitiers sous le n°910697812.
Siège social du mandant : effiCity, 48 avenue de Villiers - 75017 PARIS - Société par Actions Simplifiée, société au capital de 132 373,05 euros, immatriculée au RCS Paris 497 617 746 et titulaire de la Carte professionnelle CPI 7501 2015 000 002 025 - CCI Paris IDF - Caisse de Garantie : GALIAN Assurances 89 rue de la Boétie 75008 Paris
Cette semaine
Cette annonce est récente
À proximité
Recherche des commodités à proximité...
Détails de l'annonce
Finances / Mandat / Références
Charges
€
Localisation
Ville
Neuville De Poitou
Pays
France
Surfaces / Pièces / Composition
Surface habitable
209 m²
Nombre de pièces
8
Nombre de chambres
6
Nombre de balcons
Caractéristiques / Équipements
Ascenseur
Digicode
Interphone
Piscine
Gardien
Diagnostics / Énergie
Diagnostic DPE
D
Diagnostic GES
D
Orientations
Orientation (simple)
ouest
Chauffage / Énergie
Type de chauffage
Type : individuel - Énergie : gaz - Mécanisme : radiateur
Photos / Médias / Visites
URL visite virtuelle
https://my.matterport.com/show/?m=1E9mjTXhGUP
Chauffage et diagnostics
Diagnostic de performance énergétique (DPE)
a
b
c
d
e
f
g
Indice d'émission de gaz à effet de serre (GES)
a
b
c
d
e
f
g
