Type
Bien immobilierTarif
385 000 €Chambres
3Salles de bain
0Vente Appartement 5 pièces
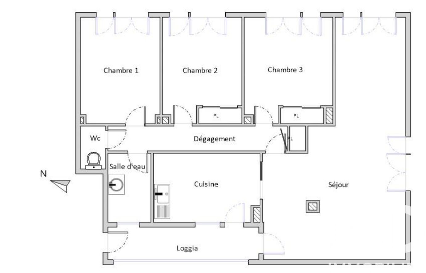
Iad France - Palma Belotti vous propose : Perché au 10ème et dernier étage du Belvédère 'immeuble dont l'altitude dépasse celle de Fourvière', cet appartement offre une vue panoramique absolument imprenable sur toute la ville. Au cOEur du très prisé Lyon Vᵉ, découvrez ce magnifique appartement de plus 92 m² entièrement rénové, alliant élégance, confort et luminosité à 5 minutes à pieds des écoles- Saint Marc et La Favorite- Ce bien rare offre trois chambres spacieuses, idéales pour une famille ou un espace de travail, ainsi qu’un double séjour traversant Est–Ouest qui baigne la pièce de vie de lumière du matin au soir offrant une vue panoramique exceptionnelle sur Lyon. La cuisine indépendante moderne et fonctionnelle, permet un espace de vie harmonieux et préservé. L’appartement dispose également d’une salle de douche à l'italienne et d’un toilette séparé. Les atouts supplémentaires : Une loggia, une cave pour plus de rangements, un parking privatif en sous sol sécurisé, pas de travaux futur de ravalement qui a été fait en 2019, un DPE C Son cadre, sa rénovation soignée et sa vue époustouflante font de ce bien une véritable opportunité dans le secteur. Appartement vendu clés en main, À découvrir sans tarder ! La presente annonce immobiliere vise 3 lots situés dans une copropriété de 3 lots au total et ne faisant l'objet d'aucune procédure en cours citée à l'article L. 721-1 du code de la construction et de l'habitation. Montant moyen mensuel de charges déclaré par le vendeur : 280€ par mois (soit 3360 € annuel). Honoraires d'agence à la charge du vendeur. Information d'affichage énergétique sur ce bien : classe ENERGIE C indice 147 et classe CLIMAT C indice 20. Les informations sur les risques auxquels ce bien est exposé, y compris l'obligation légale de débroussaillement, sont disponibles sur le site Géorisques : http://www.georisques.gouv.fr. La présente annonce immobilière a été rédigée sous la responsabilité éditoriale de Mme Palma Belotti mandataire indépendant en immobilier (sans détention de fonds), agent commercial de la SAS I@D France immatriculé au RSAC de VILLEFRANCHE SUR SOANE sous le numéro 484288014, titulaire de la carte de démarchage immobilier pour le compte de la société I@D France SAS.
À proximité
Recherche des commodités à proximité...
Détails de l'annonce
Localisation
Ville
Lyon
Pays
FR
Diagnostics / Énergie
Diagnostic DPE
147
Diagnostic GES
20
Surfaces / Pièces / Composition
Nombre d’étages
10
Étage
10
Chauffage et diagnostics
Diagnostic de performance énergétique (DPE)
a
b
c
d
e
f
g
Indice d'émission de gaz à effet de serre (GES)
a
b
c
d
e
f
g
