Type
Bien immobilierTarif
109 000 €Chambres
2Salles de bain
0Appartement ancien
22200 - GUINGAMP - CENTRE-VILLE - 3 PIÈCES - 75.0 m² - APPARTEMENT CHARME de l' ANCIEN - AVEC LOCATAIRE - BAIL COMMERCIAL en cours
effiCity, l'agence qui estime votre bien en ligne, vous propose cet appartement de caractère situé au cœur de Guingamp dans un immeuble en PIERRE de l'hyper centre.
Cet appartement au 2ème étage sans ascenseur saura séduire les INVESTISSEURS à la recherche d'un bien déjà LOUÉ.
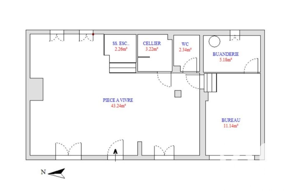
L'appartement se compose d'un spacieux SÉJOUR de 28.0 m², de deux CHAMBRES ou BUREAUX, d'une CUISINE et de WC séparés.Situé dans un secteur recherché, à proximité des commerces et des commodités, cet appartement bénéficie d'une localisation idéale pour profiter pleinement de la vie en centre-ville tout en préservant le calme et l'authenticité.
Dans ce bien chargé d'histoire à Guingamp, vous disposerez en plus d'un vaste GRENIER offrant un potentiel supplémentaire d'aménagement et de rentabilité future.
CONDITIONS de LOCATION:
BAIL COMMERCIAL
Début: 01/07/2024
Fin: 30/06/2033
Loyer: 650 €/mois hors charge
Prorata de taxe foncière et charges: 1117 €/an charge locataire
Dépôt de garantie: 650 €
Révision annuelle: ILC
Contactez-nous dès maintenant pour organiser une visite et laissez-vous charmer par le potentiel de cet ensemble immobilier.
Les informations sur les risques auxquels ce bien est exposé sont disponibles sur le site Georisque : georisques. gouv. fr
Jean-Bernard Gautron - EI - est Agent Commercial mandataire en immobilier, immatriculé au Registre Spécial des Agents Commerciaux du Tribunal de Commerce de Rennes sous le n°753518919.
Siège social du mandant : effiCity, 48 avenue de Villiers - 75017 PARIS - Société par Actions Simplifiée, société au capital de 132 373,05 euros, immatriculée au RCS Paris 497 617 746 et titulaire de la Carte professionnelle CPI 7501 2015 000 002 025 - CCI Paris IDF - Caisse de Garantie : GALIAN Assurances 89 rue de la Boétie 75008 Paris
Cette semaine
Cette annonce est récente
À proximité
Recherche des commodités à proximité...
Détails de l'annonce
Finances / Mandat / Références
Charges
€
Localisation
Ville
Guingamp
Pays
France
Surfaces / Pièces / Composition
Surface habitable
75 m²
Étage
2
Nombre d’étages
2
Nombre de pièces
3
Nombre de chambres
2
Nombre de balcons
Caractéristiques / Équipements
Ascenseur
Digicode
Interphone
Terrasse
Piscine
Cave
Gardien
Aménagement handicapés
Diagnostics / Énergie
Diagnostic DPE
E
Diagnostic GES
C
Orientations
Orientation (simple)
sud
Chauffage / Énergie
Type de chauffage
Type : individuel - Énergie : électricité - Mécanisme : Convecteur
Chauffage et diagnostics
Diagnostic de performance énergétique (DPE)
a
b
c
d
e
f
g
Indice d'émission de gaz à effet de serre (GES)
a
b
c
d
e
f
g
