Location Appartement 5 pièces
Type
Bien immobilierTarif
1 900 € /moisChambres
3Salles de bain
0Location Appartement 5 pièces
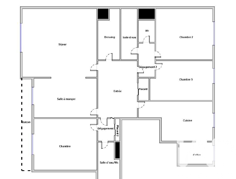
Iad France - Charlotte Prevost vous propose : Pour postuler merci d'envoyer un dossier complet via DOSSIERFACILE. LOGEMENT. GOUV par email avec noté en Objet candidat locataire. VISITE SUR DOSSIER SI COMPLET ET VALIDE (liste des documents à fournir en photos). Situé 54-70 Rue Marc Vieville vous pourrez bénéficier de ce superbe appartement rénové avec des matériaux de qualité et aux prestations de standing, avec balcon, cave et parking. Au 2ème étage sans ascenseur, accueillie par une spacieuse entrée avec 2 dressings, celle-ci offre une distribution en étoile des pièces suivantes : un séjour avec salle à manger donnant sur un balcon côté jardin, une suite parentale avec rangement et salle de douche avec WC, une cuisine aménagée avec cellier, un espace nuit dont un dégagement distribue 2 chambres, une salle de douche et un WC individuel. Dépôt de garantie réglementaire d'un mois de loyer hors charges : 1791 euros. SI l'annonce est visible sur la plateforme iad France ou Leboncoin, alors le bien est encore disponible. Information d'affichage énergétique sur ce bien : classe ENERGIE C indice 130 et classe CLIMAT C indice 27. Les informations sur les risques auxquels ce bien est exposé, y compris l'obligation légale de débroussaillement, sont disponibles sur le site Géorisques : http://www.georisques.gouv.fr. La présente annonce immobilière a été rédigée sous la responsabilité éditoriale de Mme Charlotte Prevost mandataire indépendant en immobilier (sans détention de fonds), agent commercial de la SAS I@D France immatriculé au RSAC de BOBIGNY sous le numéro 800139974, titulaire de la carte de démarchage immobilier pour le compte de la société I@D France SAS. Location non meublée. Montant du loyer mensuel charges comprises : 1900.00 euros / mois. Provision mensuelle avec récupération annuelle : 109.00 euros / mois. Zone soumise à encadrement : non. Dépôt de garantie : 1791 euros. Honoraires TTC à la charge du locataire : 448 euros (soit 4€ / m²).
Détails de l'annonce
Localisation
Ville
Villemomble
Pays
FR
Diagnostics / Énergie
Diagnostic DPE
130
Diagnostic GES
27
Finances / Mandat / Références
Honoraires
448 €
Charges
109 €
Surfaces / Pièces / Composition
Nombre d’étages
4
Chauffage et diagnostics
Diagnostic de performance énergétique (DPE)
a
b
c
d
e
f
g
Indice d'émission de gaz à effet de serre (GES)
a
b
c
d
e
f
g
