Trouver...

Language: FR

Devise: EUR

Vente Appartement 3 pièces

Publié le 19 January 2026
Type
Bien immobilier
Tarif
498 000 €
Chambres
0
Salles de bain
0

Vente Appartement 3 pièces

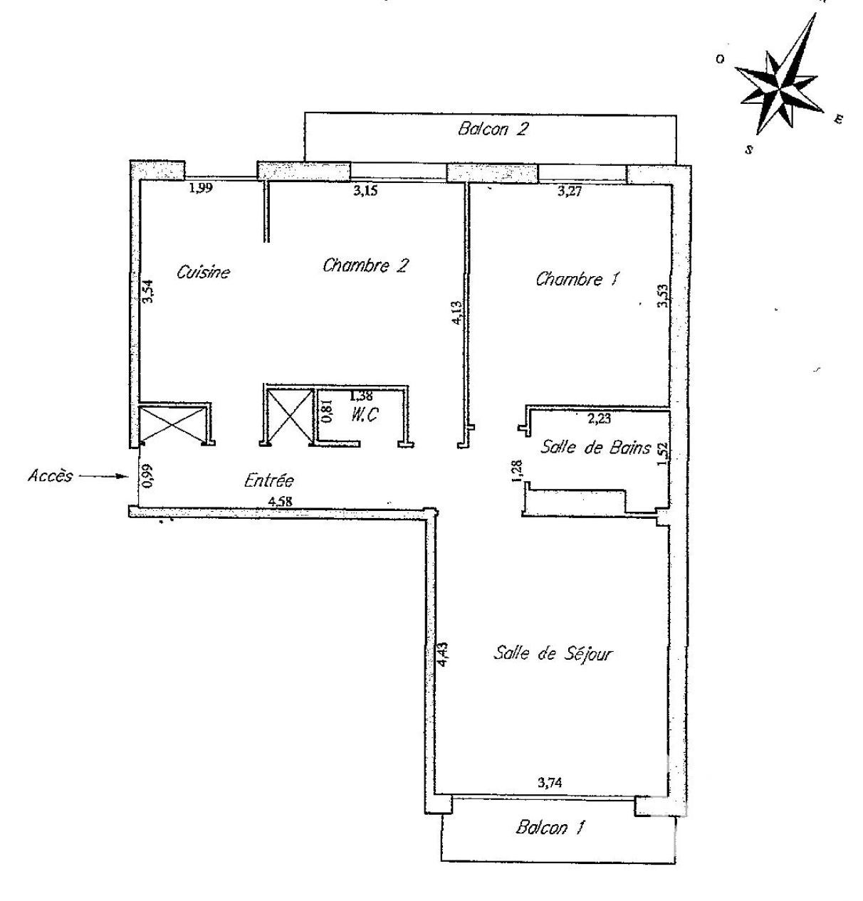
Iad France - Richard LAMBRUN vous propose : LEVALLOIS QUARTIER COLLANGE FRONT DE SEINE Proche des bords de Seine, bel appartement de trois pièces en parfait état, 57,36 m² loi Carrez, situé au 3ème étage avec ascenseur d'un immeuble de 1963 très bien entretenu, comprenant : un hall d'entrée couloir de 6,38 m² desservant une cuisine équipée de 7,56 m² ouverte sur une salle à manger de 10,82 m² communiquant avec un balcon de 5,03 m², une chambre de 11,76 m², un grand salon de 16,54 m² exposé plein sud ouvrant sur un autre balcon de 2,77 m², un dressing, une salle d'eau de 2,64 m² et un wc séparé. Une grande cave ainsi qu'une place de parking en sous-sol complètent ce bien. Un local sécurisé à vélo est à la disposition des habitants de la copropriété. Cet appartement vous séduira par son emplacement idéal, proche des commerces, à seulement 6 mn de la station de métro Pont de Levallois ligne 3 et 12mn de la gare Clichy-Levallois. La presente annonce immobiliere vise 3 lots situés dans une copropriété de 445 lots au total et ne faisant l'objet d'aucune procédure en cours citée à l'article L. 721-1 du code de la construction et de l'habitation. Montant moyen mensuel de charges déclaré par le vendeur : 253.67€ par mois (soit 3044 € annuel). Honoraires d'agence à la charge de l'acquéreur. Prix honoraires inclus : 498000 euros. Prix hors honoraires : 481000 euros. Honoraires TTC à la charge de l'acquéreur (3,53% du prix du bien hors honoraires) : 17000 euros. Information d'affichage énergétique sur ce bien : classe ENERGIE D indice 173 et classe CLIMAT D indice 34. Les informations sur les risques auxquels ce bien est exposé, y compris l'obligation légale de débroussaillement, sont disponibles sur le site Géorisques : http://www.georisques.gouv.fr. La présente annonce immobilière a été rédigée sous la responsabilité éditoriale de M Richard LAMBRUN mandataire indépendant en immobilier (sans détention de fonds), agent commercial de la SAS I@D France immatriculé au RSAC de nanterre sous le numéro 507508182, titulaire de la carte de démarchage immobilier pour le compte de la société I@D France SAS.
Ce mois Cette annonce est récente

À proximité

Recherche des commodités à proximité...

Détails de l'annonce

Localisation

Ville
Levallois-Perret
Pays
FR

Diagnostics / Énergie

Diagnostic DPE
173
Diagnostic GES
34

Surfaces / Pièces / Composition

Nombre d’étages
7
Étage
3

Chauffage et diagnostics

Diagnostic de performance énergétique (DPE)
a
b
c
d
e
f
g
Indice d'émission de gaz à effet de serre (GES)
a
b
c
d
e
f
g
Rappelez-moi