Type
Bien immobilierTarif
496 000 €Chambres
0Salles de bain
0Vente Appartement 2 pièces
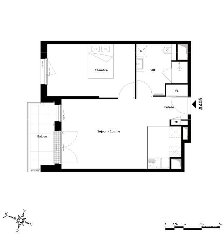
Iad France - Franck Layrē-Cassou (06 37 54 35 66) vous propose : Première acquisition, investissement immobilier, Frais de notaire OFFERTS, 5000€ de réduction par pièce à l'achat, ce bien rare situé dans un quartier résidentiel d'Issy-les-Moulineaux est fait pour vous ! Cet appartement de 47 m² environ vous offrira tout le confort et les avantages d'un appartement neuf. Disponible en 2027.1 très grand séjour avec cuisine ouverte, 1 belles chambre, 1 salle d'eau avec toilettes. 1 balcon et 1 place de parking complètent ce bien d'exception ! Un arrêt de bus se trouve au pied de la résidence, la gare d’Issy (RER C) est à 5 min à pied de la résidence, et la station Mairie d’Issy (M12) est à 2 arrêts en bus. Parfait équilibre entre qualité de vie et accessibilité, devenez propriétaire à Issy-les-Moulineaux ! Honoraires d’agence à la charge du vendeur. Bien non soumis au DPE. Les informations sur les risques auxquels ce bien est exposé sont disponibles sur le site Géorisques : www.georisques.gouv.fr. La présente annonce immobilière a été rédigée sous la responsabilité éditoriale de M. Franck Layrē-Cassou EI (ID 86893), mandataire indépendant en immobilier (sans détention de fonds), agent commercial de la SAS I@D France immatriculé au RSAC de Paris sous le numéro 509064499, titulaire de la carte de démarchage immobilier pour le compte de la société I@D France SAS. Retrouvez tous nos biens sur notre site internet. www.iadfrance.fr.
À proximité
Recherche des commodités à proximité...
Détails de l'annonce
Localisation
Ville
Issy-les-Moulineaux
Pays
FR
Surfaces / Pièces / Composition
Nombre d’étages
7
Chauffage et diagnostics
Diagnostic de performance énergétique (DPE)
a
b
c
d
e
f
g
Indice d'émission de gaz à effet de serre (GES)
a
b
c
d
e
f
g
