Type
Bien immobilierTarif
104 900 €Chambres
0Salles de bain
0Vente Appartement 2 pièces
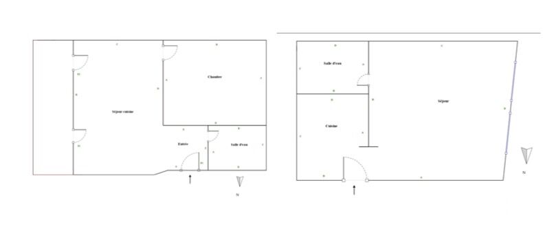
Iad France - Virginie Texier vous propose : Nouveau-Cauterets-Centre ville Découvrez cet appartement, situé au cOEur de la station thermale et de montagne de Cauterets. Idéalement situé, cet appartement de 31 m² vous offre un espace de vie confortable avec : Une entrée, un WC indépendant, une salle de bain, une chambre et une pièce de vie avec salon et cuisine (en place). Au 3-ème étage d'un immeuble qui sera entièrement rénové : façades, communs, menuiseries, eau et électricité. Cave commune au rez-de-chaussée. Programme de réhabilitation comprenant 14 appartements allant du studio au T3 bis. Contactez moi dès maintenant pour plus d'informations et pour organiser une visite. Attention, certaines photos sont des projections virtuelles, non contractuelles. La presente annonce immobiliere vise 1 lot situé dans une copropriété de 15 lots au total et ne faisant l'objet d'aucune procédure en cours citée à l'article L. 721-1 du code de la construction et de l'habitation. Montant moyen mensuel de charges déclaré par le vendeur : 0€ par mois (soit 0 € annuel). Honoraires d'agence à la charge du vendeur. Bien non soumis au DPE. Les informations sur les risques auxquels ce bien est exposé, y compris l'obligation légale de débroussaillement, sont disponibles sur le site Géorisques : http://www.georisques.gouv.fr. La présente annonce immobilière a été rédigée sous la responsabilité éditoriale de Mme Virginie Texier mandataire indépendant en immobilier (sans détention de fonds), agent commercial de la SAS I@D France immatriculé au RSAC de Tarbes sous le numéro 978913903, titulaire de la carte de démarchage immobilier pour le compte de la société I@D France SAS.
À proximité
Recherche des commodités à proximité...
Détails de l'annonce
Localisation
Ville
Cauterets
Pays
FR
Surfaces / Pièces / Composition
Nombre d’étages
4
Étage
3
Chauffage et diagnostics
Diagnostic de performance énergétique (DPE)
a
b
c
d
e
f
g
Indice d'émission de gaz à effet de serre (GES)
a
b
c
d
e
f
g
