Type
Bien immobilierTarif
85 000 €Chambres
4Salles de bain
0Vente Maison de ville 5 pièces
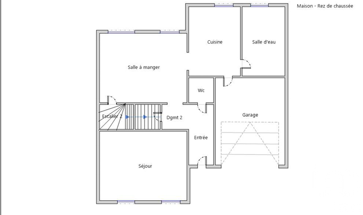
Iad France - Nelly Furlan vous propose : QUARTIER GARE / GARAGE / TERRASSE / CAVE * IDÉAL PRIMO-ACCÉDANT OU INVESTISSEUR * Maison d'avant 1949, d'une superficie habitable d'environ 95 m² sur une parcelle de 152 m² sur 2 niveaux, agencée telle que : au rez-de-chaussée : une entrée donnant accès au salon, une salle à manger, une cuisine équipée, un WC séparé, une salle d'eau et un accès au garage, au 1er étage : 2 chambres, au 2ème étage : combles aménagés en 2 pièces (pouvant servir de bureau, de dressing, d'espace de jeux ou d'espace de nuit supplémentaire), au sous-sol : 2 caves, à l'extérieur : une cour et 2 cabanons complètent ce bien. La maison nécessite quelques travaux énergétique (remplacement de la chaudière et isolation ectérieur) ainsi qu'une remise au goût du jour ! Contactez-moi pour recevoir une fiche technique complète et convenir d'un créneau de visite de ce bien ! Honoraires d'agence à la charge du vendeur. Information d'affichage énergétique sur ce bien : classe ENERGIE F indice 379 et classe CLIMAT E indice 68. Les informations sur les risques auxquels ce bien est exposé, y compris l'obligation légale de débroussaillement, sont disponibles sur le site Géorisques : http://www.georisques.gouv.fr. La présente annonce immobilière a été rédigée sous la responsabilité éditoriale de Mme Nelly Furlan mandataire indépendant en immobilier (sans détention de fonds), agent commercial de la SAS I@D France immatriculé au RSAC de VAL DE BRIEY sous le numéro 904371507, titulaire de la carte de démarchage immobilier pour le compte de la société I@D France SAS.
À proximité
Recherche des commodités à proximité...
Détails de l'annonce
Localisation
Ville
Homécourt
Pays
FR
Diagnostics / Énergie
Diagnostic DPE
379
Diagnostic GES
68
Surfaces / Pièces / Composition
Nombre d’étages
3
Chauffage et diagnostics
Diagnostic de performance énergétique (DPE)
a
b
c
d
e
f
g
Indice d'émission de gaz à effet de serre (GES)
a
b
c
d
e
f
g
