Type
Bien immobilierTarif
396 100 €Chambres
2Salles de bain
0Vente Appartement 3 pièces
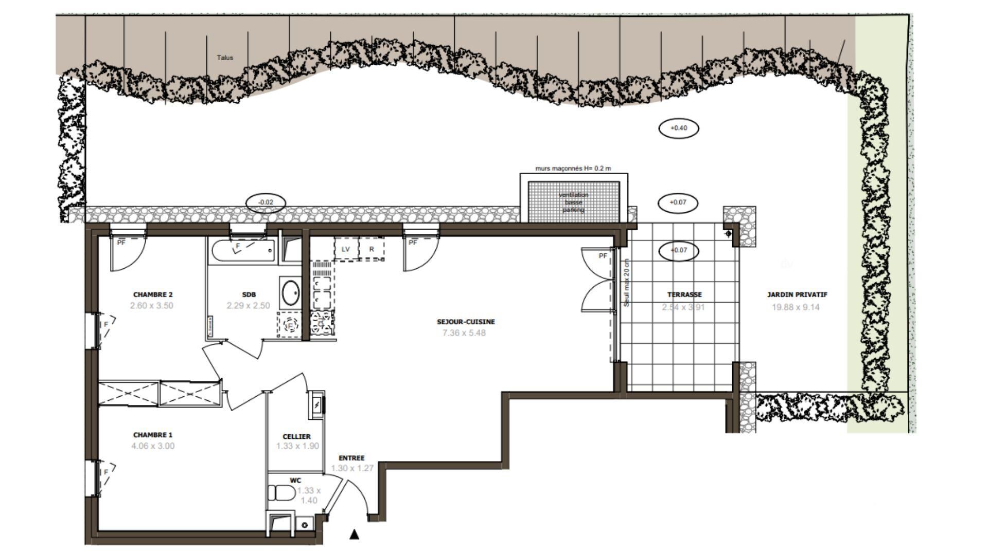
Iad France - Sarah Rozière (06 99 86 19 42) vous propose : Appartement T3 avec jardin à Thonon-les-Bains. Au cOEur de la résidence contemporaine Les Jardins du Lac, située avenue Jules Ferry, découvrez une adresse élégante qui associe qualité architecturale, confort et art de vivre. À seulement quelques minutes du centre-ville et des rives du Léman, cette résidence intimiste offre un cadre verdoyant et apaisé, idéal pour conjuguer sérénité et dynamisme urbain. Situé au rez-de-jardin, cet appartement T3 de 72 m² environ habitables se prolonge par de beaux espaces extérieurs privatifs : - Terrasse de 10 m² environ. - Jardin privatif de 102 m² environ. L’agencement intérieur a été pensé pour allier luminosité et confort : - Séjour / cuisine de 38 m² environ, ouvert sur l’extérieur. - Deux chambres. - Une salle de bains moderne. - Annexe incluse : un parking en sous-sol. Des belles prestations : - Volets roulants électriques centralisés. - Thermostat d’ambiance. - Résidence sécurisée (digicode, visiophone, Vigik, ascenseurs sécurisés). Un cadre de vie unique à Thonon : - Commerces, services, écoles et crèches accessibles à pied. - Gare et Léman Express à quelques minutes (connexion rapide vers Genève et Lausanne). - Accès aux rives du Léman, au port de Rives et aux espaces naturels pour les loisirs nautiques et les balades. - Stations de ski proches pour les amateurs de montagne. N’hésitez pas à me contacter pour plus d’informations ou pour un accompagnement sur mesure. Honoraires d’agence à la charge du vendeur. Bien non soumis au DPE. Les informations sur les risques auxquels ce bien est exposé sont disponibles sur le site Géorisques : www.georisques.gouv.fr. La présente annonce immobilière a été rédigée sous la responsabilité éditoriale de Mlle Sarah Rozière EI (ID 83696), mandataire indépendant en immobilier (sans détention de fonds), agent commercial de la SAS I@D France immatriculé au RSAC de Clermont-Ferrand sous le numéro 978616993, titulaire de la carte de démarchage immobilier pour le compte de la société I@D France SAS. Retrouvez tous nos biens sur notre site internet. www.iadfrance.fr.
À proximité
Recherche des commodités à proximité...
Détails de l'annonce
Localisation
Ville
Thonon-les-Bains
Pays
FR
Surfaces / Pièces / Composition
Nombre d’étages
3
Chauffage et diagnostics
Diagnostic de performance énergétique (DPE)
a
b
c
d
e
f
g
Indice d'émission de gaz à effet de serre (GES)
a
b
c
d
e
f
g
