Trouver...

Language: FR

Devise: EUR

Location Bureaux 70 m²

Publié le 22 September 2025
Type
Bien immobilier
Tarif
2 300 € /mois
Chambres
0
Salles de bain
0

Location Bureaux 70 m²

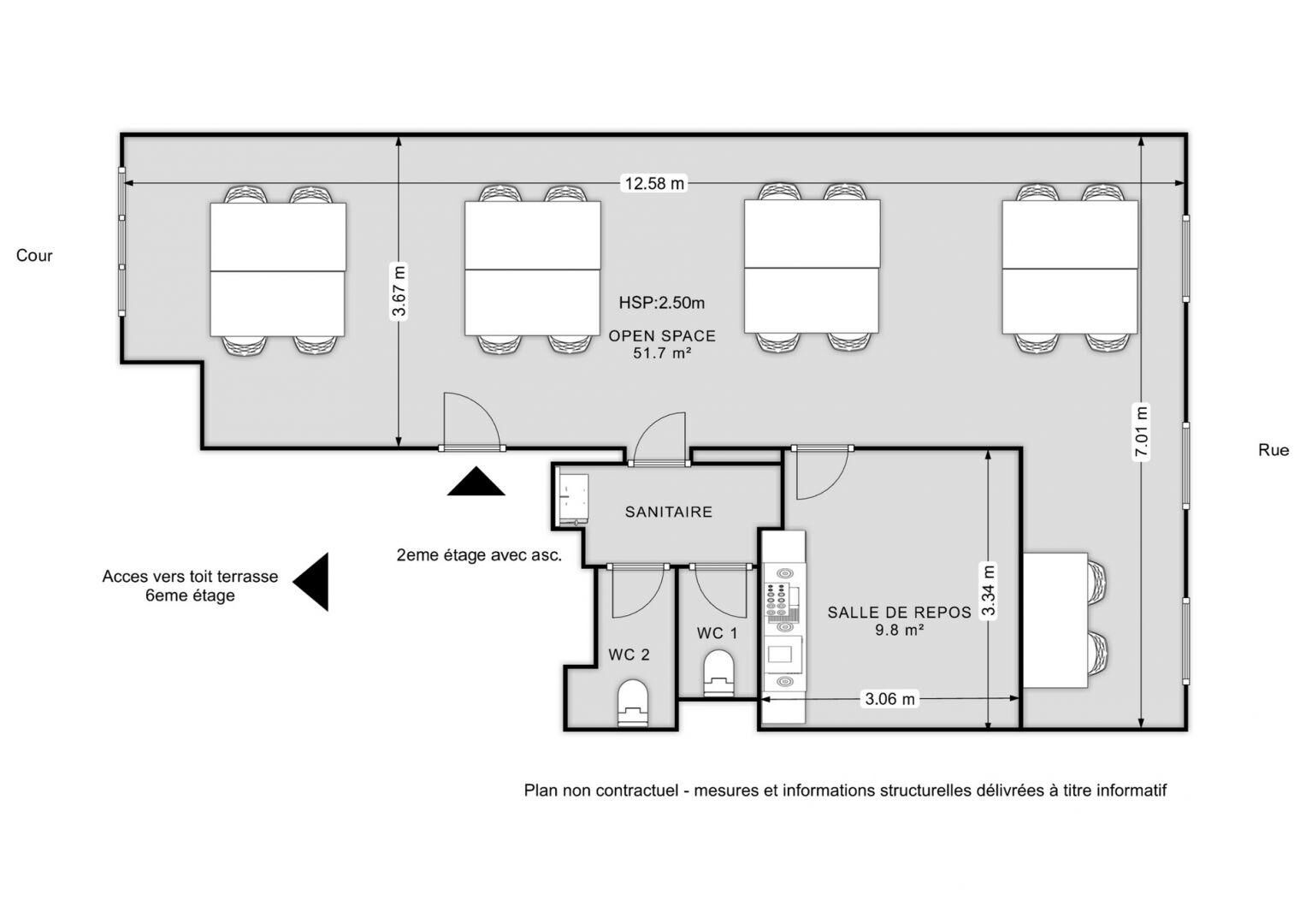
Iad France - Arnaud Porcheron (06 18 68 38 65) vous propose : BUREAUX 70 m² environ - PARIS 11e - RUE NEUVE DES BOULETS À louer, bureaux de 70 m² environ au 2eme étage d’un immeuble de bureaux, bien entretenu, situé rue Neuve des Boulets, Paris 11e. Idéalement placés entre les métros Charonne et Rue des Boulets (ligne 9), à deux pas de la rue de Charonne. Disponibles immédiatement, ces bureaux bénéficient d’un roof top partagé, de double vitrage, d’une fibre optique en place et d’un environnement dynamique. Loyer annuel : 24 000€ / an HT HC (2 000€ / mois HT HC) Charges collectives : 300€ / mois HT Dépôt de garantie : 6 000€ Honoraires : 3 600€ HT Bail : 3/6 / 9 Taxes annuelles : foncière 1 675€ HT, bureau 1 447€ HT Une belle opportunité dans un secteur recherché. Contactez-nous pour visiter. Information d'affichage énergétique sur le bien associé à cette annonce : DPE NS indice 0 et GES NS indice 0. La présente annonce immobilière a été rédigée sous la responsabilité éditoriale de M. Arnaud Porcheron (ID 65742), Agent Commercial mandataire en immobilier immatriculé au Registre Spécial des Agents Commerciaux (RSAC) du Tribunal de Commerce de PARIS sous le numéro 820581007 Retrouvez tous nos biens sur notre site internet. www.iadfrance.fr.

À proximité

Recherche des commodités à proximité...

Détails de l'annonce

Localisation

Ville
Paris
Pays
FR

Finances / Mandat / Références

Honoraires
3 €
Charges
300 €

Surfaces / Pièces / Composition

Nombre d’étages

Chauffage et diagnostics

Diagnostic de performance énergétique (DPE)
a
b
c
d
e
f
g
Indice d'émission de gaz à effet de serre (GES)
a
b
c
d
e
f
g
Rappelez-moi