Trouver...

Language: FR

Devise: EUR

Location Appartement 3 pièces

Publié le 21 January 2026
Type
Bien immobilier
Tarif
1 322 € /mois
Chambres
2
Salles de bain
0

Location Appartement 3 pièces

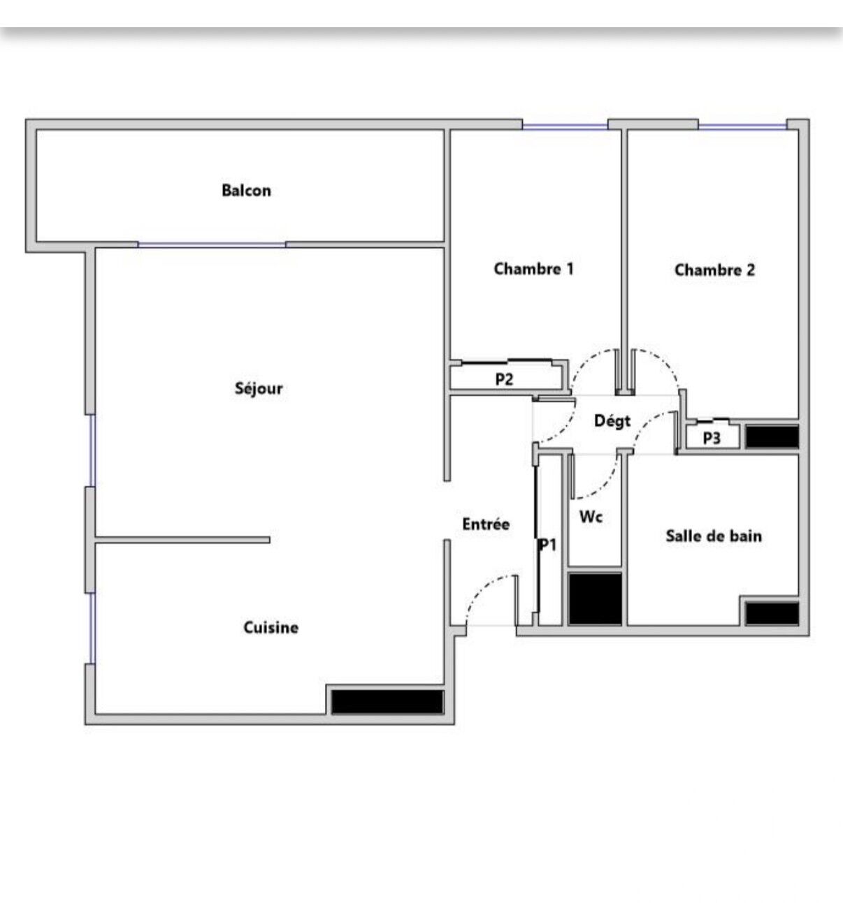
Iad France - Hassina DIFALLAH vous propose : Appartement moderne de 3 pièces, lumineux et très calme, avec balcon, vue sur lac et sans vis à vis, à Guyancourt. Découvrez ce superbe appartement de 3 pièces, situé à Guyancourt dans un quartier résidentiel, offrant un espace de vie confortable et fonctionnel. La résidence, construite en 1997, est bien entretenue. L'appartement, situé au 3ème étage sur 4, bénéficie d'une exposition ouest qui apporte une belle luminosité naturelle tout au long de la journée et au calme absolu. il est sans vis à vis et à une splendide vue sur le lac. Il se compose, : d'une entée avec dressing, d'une cuisine aménagée et équipée ouverte sur un séjour (34 m² environ au total) et d'un agréable et grand balcon pour profiter des beaux jours, d'un dégagement menant à de 2 chambres spacieuses (11 et 12 m² environ) avec placards, à une salle de bain avec espace buanderie et un WC séparé, La résidence offre un ensemble d'équipements pour un confort de vie optimal. Vous pourrez profiter de la fibre optique pour une connexion internet rapide, d'un ascenseur pour un accès facile à l'appartement, d'un interphone et d'un système de chauffage individuel au gaz pour un confort thermique toute l'année. Un emplacement de parking privatif est inclus avec l'appartement pour garer votre véhicule en toute sécurité. De plus, la résidence se trouve dans un environnement calme et verdoyant, proche des commodités, des écoles et des transports en commun. Si vous à la recherche d'un nouveau logement. cet appartement à Guyancourt représente une opportunité à saisir. Ne manquez pas cette occasion, contactez nous pour organiser une visite dès aujourd'hui ! Information d'affichage énergétique sur ce bien : classe ENERGIE C indice 130 et classe CLIMAT C indice 25. Les informations sur les risques auxquels ce bien est exposé, y compris l'obligation légale de débroussaillement, sont disponibles sur le site Géorisques : http://www.georisques.gouv.fr. La présente annonce immobilière a été rédigée sous la responsabilité éditoriale de Mme Hassina DIFALLAH mandataire indépendant en immobilier (sans détention de fonds), agent commercial de la SAS I@D France immatriculé au RSAC de PARIS sous le numéro 894618354, titulaire de la carte de démarchage immobilier pour le compte de la société I@D France SAS. Location non meublée. Montant du loyer mensuel charges comprises : 1322.00 euros / mois. Provision mensuelle avec récupération annuelle : 150.00 euros / mois. Zone soumise à encadrement : non. Dépôt de garantie : 1172 euros. Honoraires TTC à la charge du locataire : 487 euros (soit 7€ / m²).
Ce mois Cette annonce est récente

À proximité

Recherche des commodités à proximité...

Détails de l'annonce

Localisation

Ville
Guyancourt
Pays
FR

Diagnostics / Énergie

Diagnostic DPE
130
Diagnostic GES
25

Finances / Mandat / Références

Honoraires
487 €
Charges
150 €

Surfaces / Pièces / Composition

Nombre d’étages
4
Étage
3

Chauffage et diagnostics

Diagnostic de performance énergétique (DPE)
a
b
c
d
e
f
g
Indice d'émission de gaz à effet de serre (GES)
a
b
c
d
e
f
g
Rappelez-moi