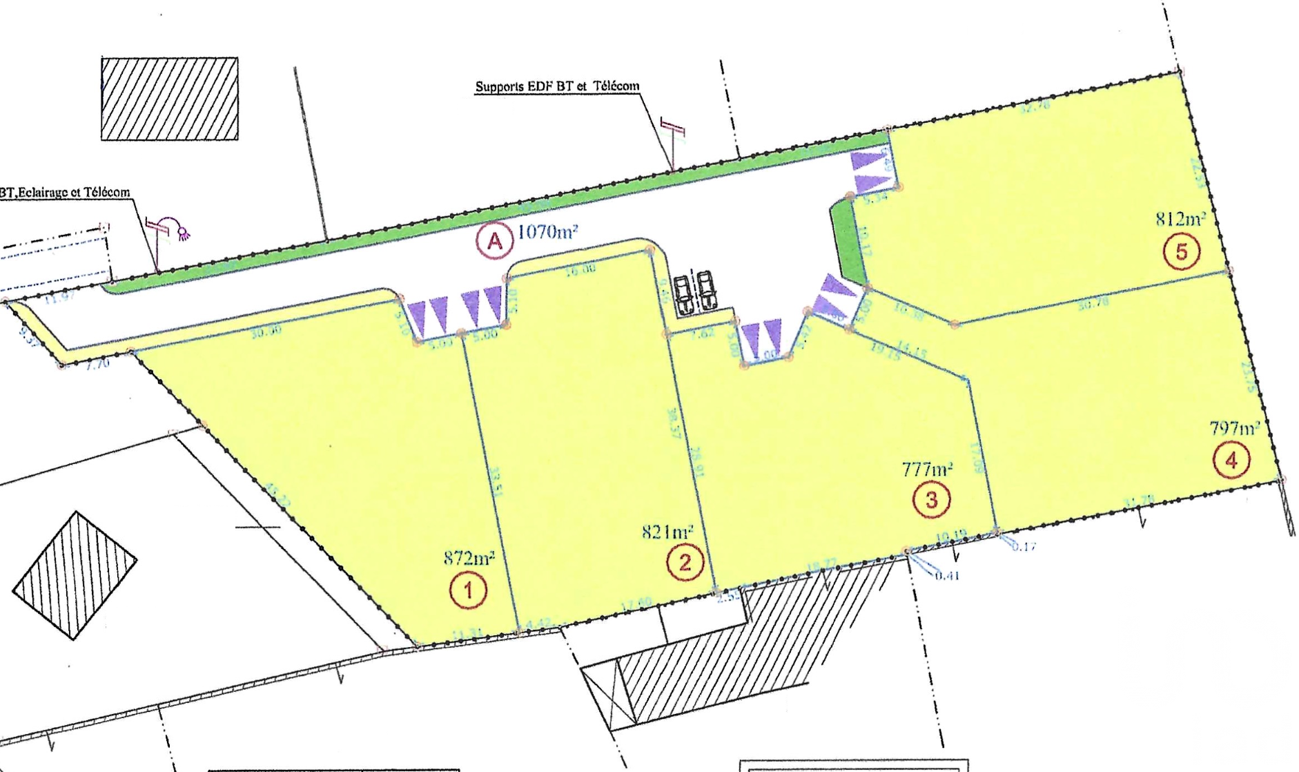
Vente Terrain à bâtir 797 m²
Type
Bien immobilierTarif
24 519 €Chambres
0Salles de bain
0Vente Terrain à bâtir 797 m²
Iad France - Elisa Roquet vous propose : Situé sur la commune de Fontclaireau, un terrain de 797 m² environ s'offre à vous ! Viabilisé, il vous propose une surface constructible au sol de 279 m² environ. D'autres lots sont disponibles. Contactez moi pour plus d'informations ! Honoraires d'agence à la charge du vendeur. Bien non soumis au DPE. Les informations sur les risques auxquels ce bien est exposé, y compris l'obligation légale de débroussaillement, sont disponibles sur le site Géorisques : http://www.georisques.gouv.fr. La présente annonce immobilière a été rédigée sous la responsabilité éditoriale de Mme Elisa Roquet mandataire indépendant en immobilier (sans détention de fonds), agent commercial de la SAS I@D France immatriculé au RSAC de NIORT sous le numéro 842412017, titulaire de la carte de démarchage immobilier pour le compte de la société I@D France SAS.
Détails de l'annonce
Localisation
Ville
Mansle-les-Fontaines
Pays
FR
Surfaces / Pièces / Composition
Nombre d’étages
Chauffage et diagnostics
Diagnostic de performance énergétique (DPE)
a
b
c
d
e
f
g
Indice d'émission de gaz à effet de serre (GES)
a
b
c
d
e
f
g
